El proyecto de Atelier Matteo Arnone para Quinta do Álamo representa un diálogo entre pasado y presente, entre la memoria de la tradición vitivinícola y la modernidad de una casa diseñada para dos DJs
Ubicada en Carnota, en el municipio de Alenquer, a tan solo 40 minutos de Lisboa, la Quinta está rodeada de viñedos que narran una larga historia de producción de vino, ofreciendo un entorno natural y cultural único.
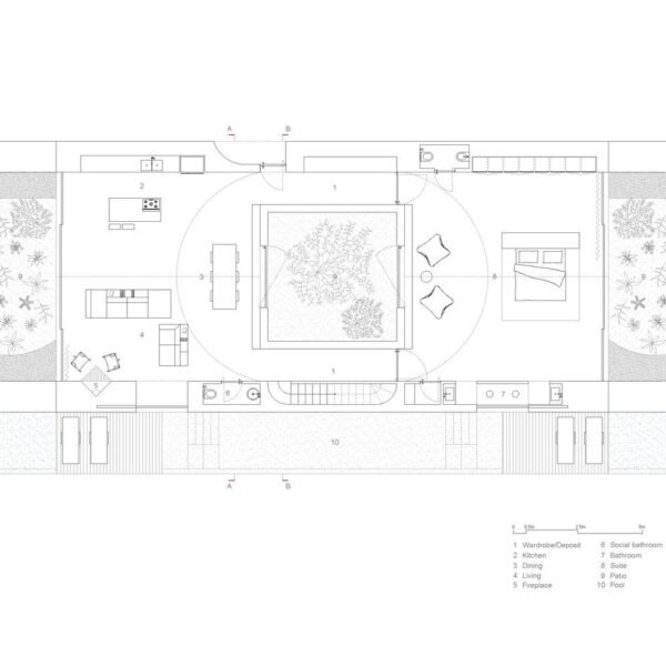
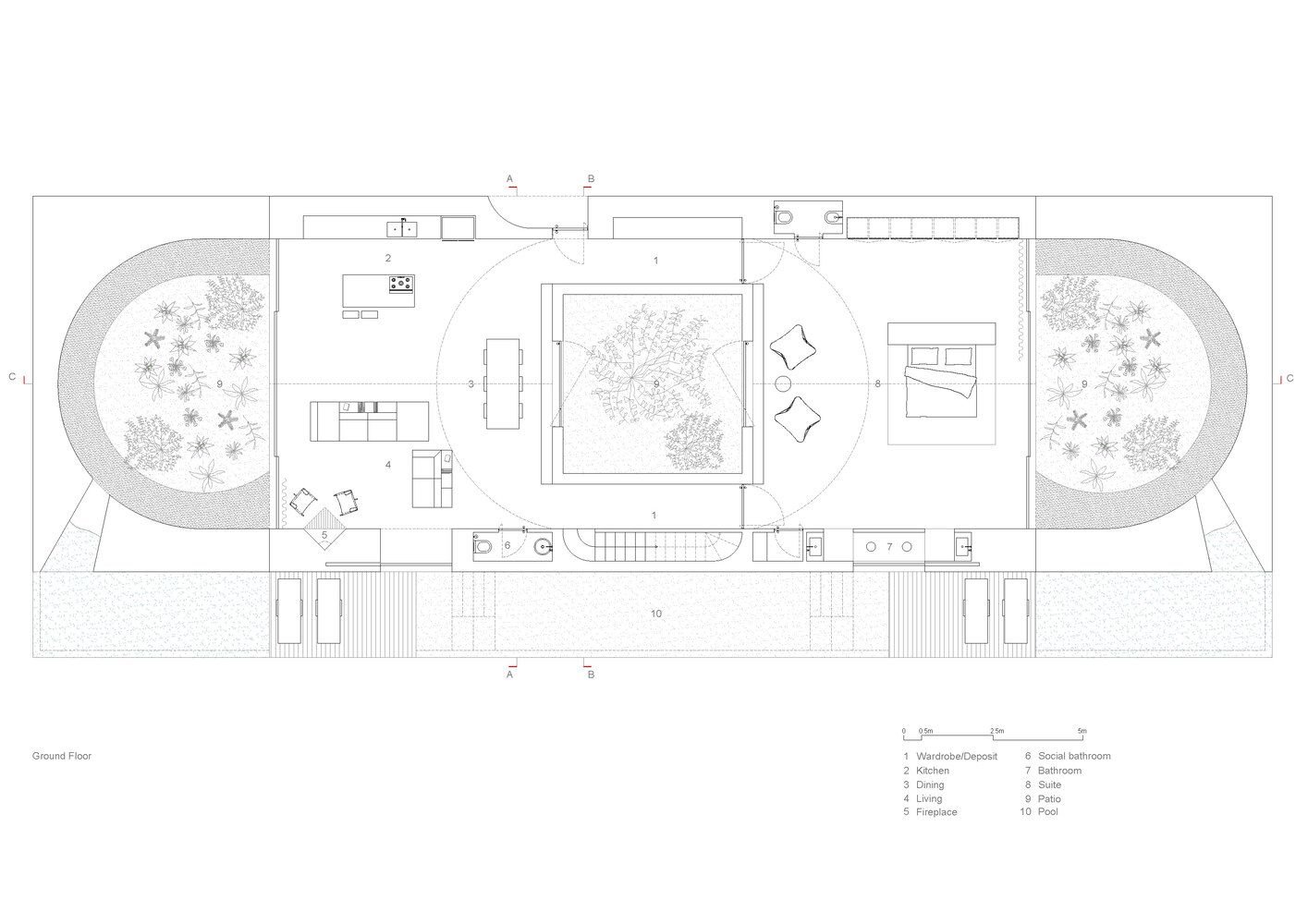
La arquitectura de la Quinta cobra vida gracias a la renovación de una ruina preexistente: una antigua bodega originalmente destinada al almacenamiento de grandes barricas de vino. El proyecto transforma este vestigio histórico en una vivienda contemporánea, caracterizada por una planta perfectamente simétrica y una fuerte conexión entre los espacios interiores y exteriores. En la planta baja, las principales estancias —un salón-cocina y un dormitorio— se disponen simétricamente, abriéndose cada una a un patio semicircular que envuelve el espacio.
Estos patios no solo definen el límite entre el interior y el exterior, sino que transforman este umbral en un elemento estético y armonioso. Su forma curva elimina las esquinas pronunciadas, fomentando una continuidad fluida que disuelve la separación física y crea rincones privados bañados de luz natural.
Un tercer patio, ubicado entre el dormitorio y la zona de salón-cocina, introduce una dimensión aún más íntima: no solo ilumina los estudios de grabación en la planta superior, sino que también establece una delicada conexión visual entre los espacios habitables.
La solución arquitectónica destaca por el uso de gruesos muros perimetrales, que incorporan elementos funcionales esenciales de la vivienda. Estos muros no solo cumplen una función estructural, sino que integran elementos como la escalera que conduce a los estudios de la planta superior, así como espacios de almacenamiento y mobiliario empotrado. Esta elección garantiza una estética minimalista y ordenada, optimizando la organización general de la construcción.
Los estudios de grabación de la planta superior, con su forma circular, reflejan el alma creativa de la casa, diseñados para satisfacer las necesidades profesionales de sus propietarios
Responsable: Arquitectura en Blanco – César Jiménez González. Finalidad: gestionar el envío de nuestra newsletter. Legitimación: tu consentimiento. Destinatarios: Brevo (plataforma de email marketing, acogida a las garantías adecuadas). Derechos: puedes acceder, rectificar y suprimir tus datos, así como otros derechos en este enlace. Más información en nuestra Política de Privacidad.












































