Dos hermanas. Dos casas. Una construcción. Una familia que quiso permanecer unida creando la intimidad de cada una.
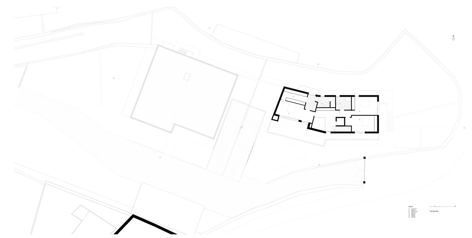
La limitación normativa a una sola edificación convierte el proyecto en un encargo particular: crear dos viviendas autónomas dentro de una misma construcción, en un terreno contiguo a la casa donde viven los padres y donde ambas crecieron. Las dos con hijos, las dos con la necesidad de espacio para que la vida ocurra —dentro y fuera de casa—. La proximidad era deseada y el reto consistía en generarla sin que resultara limitante.

El terreno presentaba condiciones exigentes: una superficie edificable reducida, una acusada diferencia de cotas y una roca de gran dimensión al oeste, imposible de ignorar.
El proyecto incorporó estos condicionantes y la roca se convirtió en inspiración. La piedra, presente en el paisaje y en la memoria del lugar, pasó a ser el material estructurador de la identidad de la obra: desde el basamento común que genera una plataforma nivelada y alberga garajes y áreas técnicas, hasta los elementos puntuales que salpican las fachadas blancas y se prolongan en los interiores. Lo que era una limitación se convirtió en identidad.




En el interior, los espacios son generosos y fluidos, con una relación cuidada con el exterior. La piedra y la madera dialogan con la luz natural, que realza la belleza de los materiales. Los detalles son decisiones: enmarcan vistas, marcan transiciones e integran objetos con significado.

El mismo cuidado se extiende al exterior, definiendo espacios cubiertos integrados en la propia volumetría de las casas, que generan áreas protegidas donde la vida con los niños puede desarrollarse —protegen con libertad, no condicionan—. El exterior no es lo que sobra, sino una parte esencial del proyecto.
El resultado son dos casas muy diferentes entre sí, que comparten un origen, un lenguaje y la conexión con el suelo, al igual que las dos hermanas que las habitan.











































































