Casa Bobadilla se plantea como un proyecto territorial que trasciende la escala doméstica para convertirse en una reflexión arquitectónica sobre el paisaje, la historia y las formas de vida contemporáneas.

Ubicada en el borde difuso donde la ciudad progresivamente se disuelve en el territorio agrícola, la casa asume una posición estratégica y simbólica.
Este lugar de transición –ni completamente urbano ni estrictamente rural– condensa muchas de las tensiones que han definido la evolución reciente de Granada y su llanura: la expansión urbana, la fragmentación del suelo productivo y la pérdida de continuidad paisajística. Frente a esto, Casa Bobadilla propone una arquitectura que no se impone, sino que dialoga, interpreta e integra.




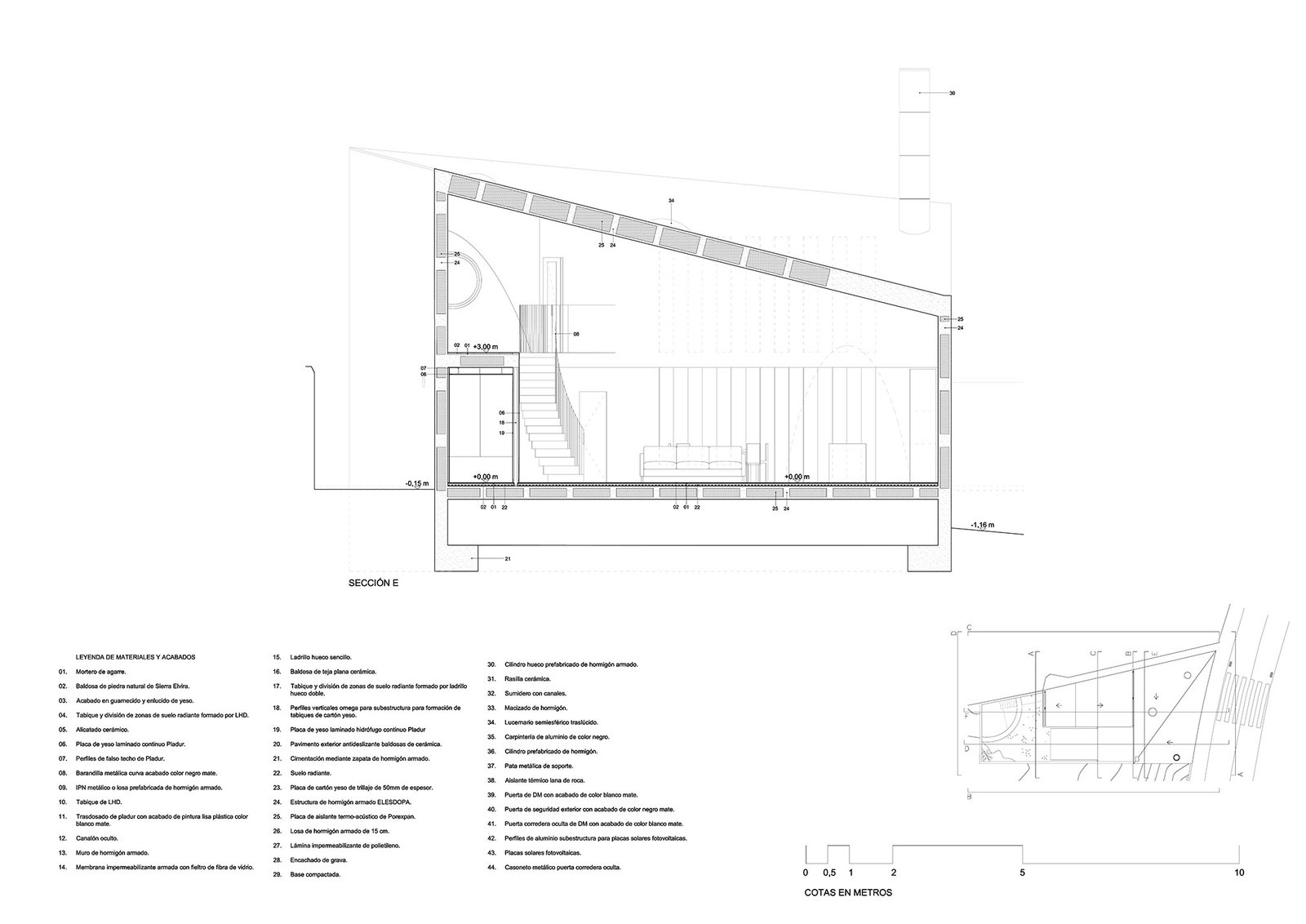
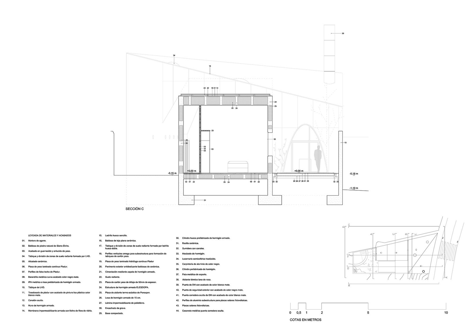
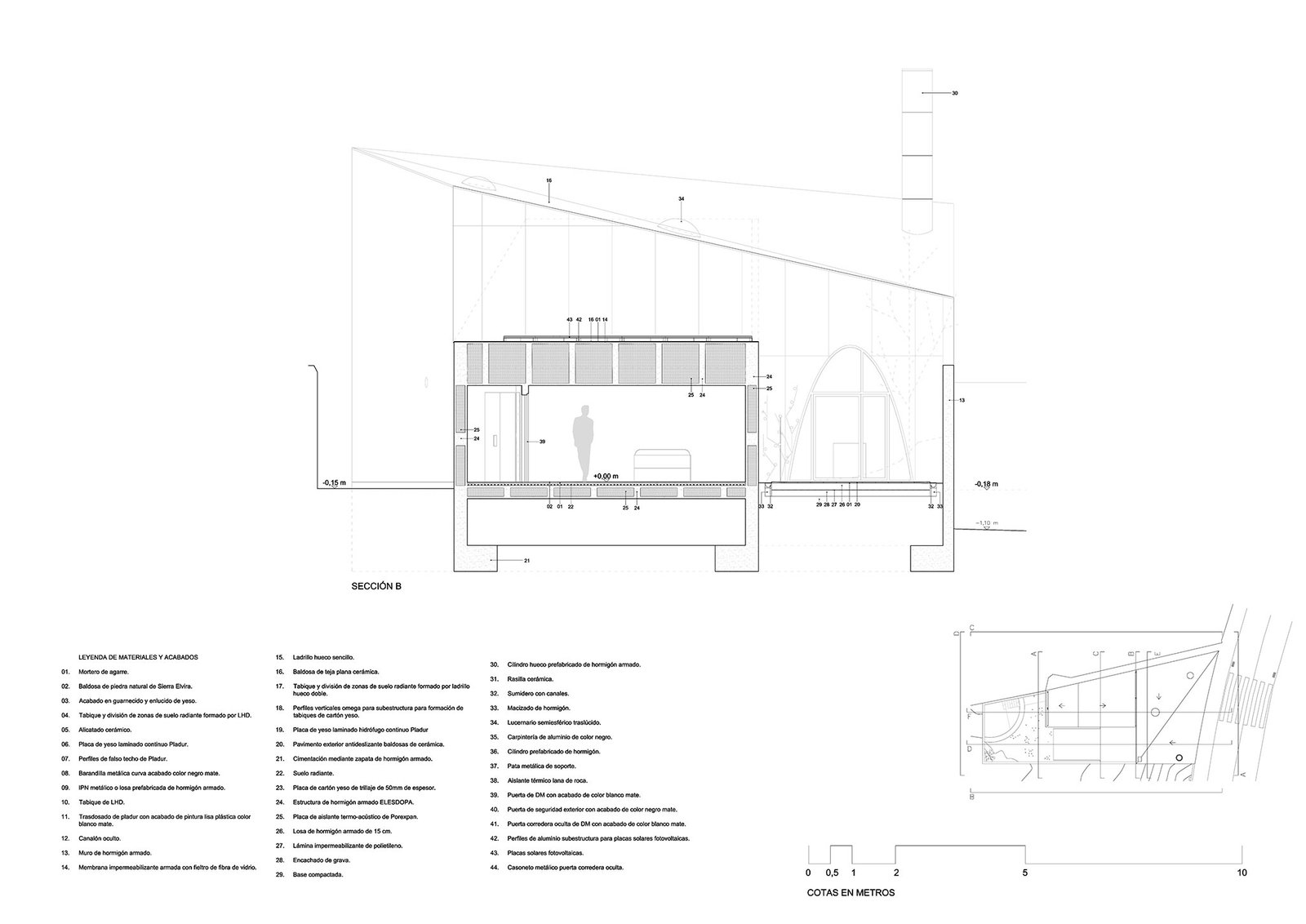
El proyecto busca mimetizarse con su entorno a través de referencias precisas y profundamente arraigadas. Hacia el este, la imponente presencia de Sierra Nevada define una reconocible línea de horizonte, cuya geometría inclinada y perfil quebrado se traducen en la volumetría de la vivienda. Las cubiertas reinterpretan la tradición de la teja cerámica a través de planos inclinados que evocan picos nevados, mientras que el color blanco dominante remite tanto a la arquitectura vernácula como a la luminosidad de la montaña.

Hacia el oeste, la influencia de la Vega de Granada se hace visible en múltiples capas del proyecto. La arquitectura de los secaderos de tabaco –estructuras funcionales, permeables y adaptadas al clima– inspira las perforaciones de la fachada, diseñadas para optimizar la ventilación cruzada y la entrada de luz natural. Estas aperturas no sólo responden a criterios bioclimáticos, sino que también reinterpretan un lenguaje constructivo tradicional desde una sensibilidad contemporánea.
Asimismo, la casa incorpora elementos propios del paisaje agrícola, como el chopo característico de la dehesa, integrando vegetación que actúa como filtro climático y visual. La presencia de huertas y espacios productivos entre la fachada y la parcela recupera la lógica histórica de la dehesa como sistema metabólico ligado a la vida cotidiana.

El contexto histórico y cultural amplifica el significado del proyecto. Desde la trama es posible establecer relaciones visuales y simbólicas con hitos del territorio como la Alhambra o las antiguas fábricas industriales de azúcar, como San Isidro o el Ingenio de San Juan, vestigios de una memoria productiva que marcó el desarrollo económico de la región.
En términos constructivos, Casa Bobadilla apuesta por la honestidad y durabilidad de los materiales. El uso del hormigón visto responde tanto a criterios económicos –reduciendo la necesidad de acabados adicionales– como a un deseo de permanencia: una arquitectura diseñada para envejecer dignamente, resistente al paso del tiempo y ajena a las modas efímeras. Esta elección refuerza la idea de la vivienda como elemento estable dentro de un territorio en constante transformación.

La sostenibilidad se integra activamente mediante la incorporación de paneles solares, que permiten avanzar hacia la autosuficiencia energética y reducir la dependencia de fuentes fósiles. Esta estrategia no se presenta como una adición tecnológica, sino como una extensión coherente de la relación entre arquitectura y entorno.
Otro elemento significativo es el acceso a la vivienda, resuelto a través de un gran portón que remite a los tradicionales cortijos y casonas granadinas. Sin embargo, su diseño ha sido reinterpretado desde una lógica contemporánea, convirtiéndose en un umbral que articula memoria e innovación.

La relación con el tejido construido del barrio de Bobadilla también es fundamental. En este entorno híbrido, donde conviven viviendas y estructuras agroindustriales, la casa se inserta respetando las escalas, materiales y tipologías existentes, evitando rupturas formales innecesarias. De este modo, el proyecto no solo dialoga con el paisaje natural, sino también con el construido.
En un contexto donde la Vega de Granada ha sido progresivamente fragmentada por dinámicas urbanísticas agresivas, Casa Bobadilla se posiciona como una alternativa crítica. Propone una forma de habitar que reconoce el valor del territorio productivo, que recupera vínculos históricos entre ciudad y paisaje, y que plantea una domesticidad arraigada en lo local sin renunciar a la contemporaneidad.

En definitiva, más que una vivienda, Casa Bobadilla es una pieza de mediación entre dos mundos. Un proyecto que entiende la arquitectura como herramienta para reconectar con el entorno, reinterpretar la tradición y proyectar nuevas formas de convivencia entre lo urbano y lo agrícola.















































