Se trata de un proyecto de vivienda de obra nueva, adosada entre medianeras, situada en la ciudad de Albacete.
El barrio en el que se ubica, nace en los años 50, está formado por varias hileras paralelas de viviendas adosadas, y unidas con otras viviendas de forma simétrica, accediendo a éstas por una serie de pasajes que se encuentran comunicados mediantes arcos con las calles aledañas.
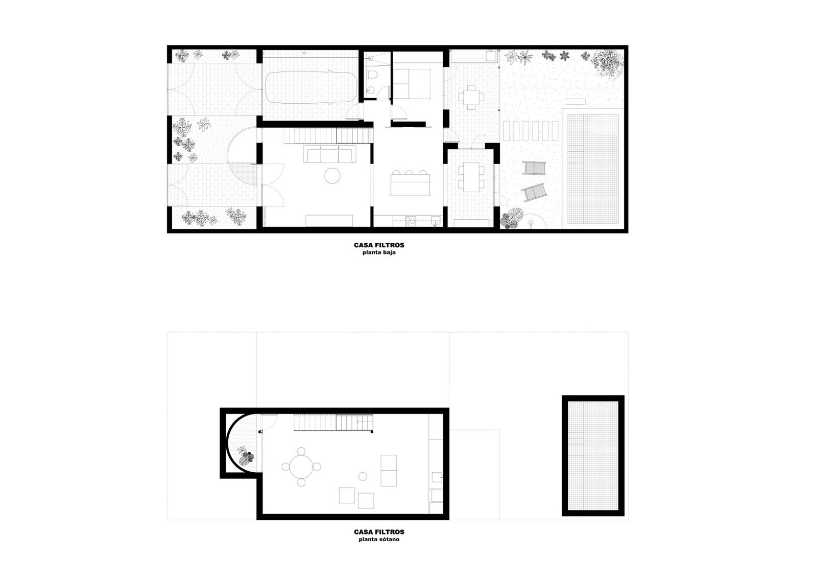
La parcela en la ubica la vivienda es de geometría rectangular, con poco frente y mucho fondo.Dicha vivienda está compuesta por dos volúmenes unidos: un primer volumen a dos aguas, de dos alturas y sótano, que sustituye al volumen original y que se ajusta a las viviendas entre las que se inserta.
Un segundo volumen unido al primero, de una altura y también a dos aguas pero en sentido perpendicular, mitad abierto. El volumen total nace entre un patio trasero y un patio delantero del que, a su vez, surge un patio inglés semicircular.

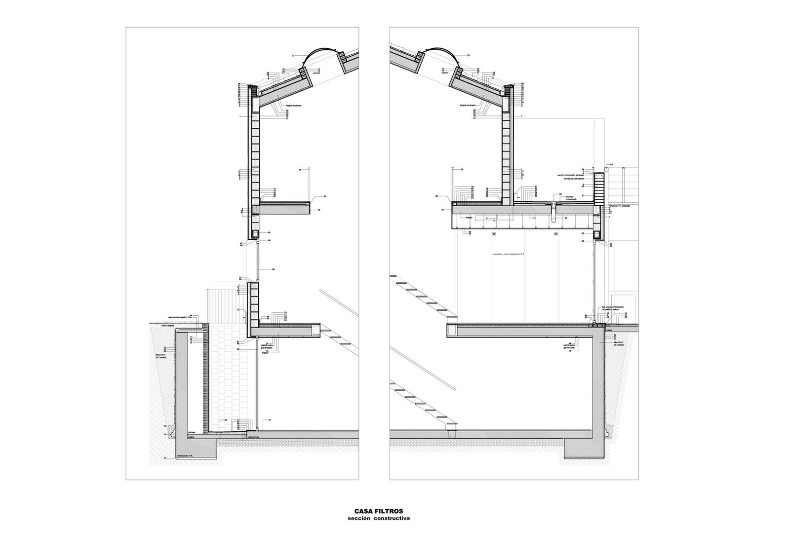
En relación a la envolvente: tanto las fachadas, revestidas de mortero blanco, como la cubierta, revestida en teja cerámica, poseen un serie de huecos de diferente geometría que iluminan y abren los espacios interiores con diferentes miradas, según la orientación. l límite de la vivienda con la calle se establece mediante dos grandes puertas blancas entre la que surge una celosía de ladrillo que permite entrever dos patios y un segundo volumen, también blanco.
Los materiales que definen el proyecto son: barro, madera, terrazo y mortero blanco.
La estructura se resuelve mediantes muros de carga de fábrica de ladrillo, lo que permite diseñar los espacios sin resaltes, de forma limpia.




El concepto principal de la vivienda se basa en una serie de “filtros” que atraviesan la vivienda desde la entrada desde la calle hasta el patio trasero. Estos huecos de 2,20mx2,20m comunican los diferentes espacios visualmente a la vez que introducen la luz, produciendo una perspectiva lineal continua: calle-patio -salón-cocina-comedor-patio.
Un gran vacio diáfano donde cada espacio limita con el siguiente, sin pasillos con transiciones continuas. Una habitación de invitados que será despacho o quién sabe, se abre y cierra hacia el patio-porche y a la cocina, que a la vez se conecta al resto de espacios. La escalera lineal de un solo tramo, se sitúa en el centro de la planta, deja pasar la luz cenital a través de sus peldaños.
La planta baja está formado por un plano horizontal continuo de terrazo pulido que, a modo de espejo, refleja el mobiliario color terracota y madera que va apareciendo, y que van definiendo los usos de la vivienda. Este plano horizontal se tiñe de terracota, antes de su contacto con el patio trasero, plegándose hacia la pared en ambos lados. Los planos verticales se tiñen de color blanco mediante diferentes texturas: ladrillo, yeso rastrillado y liso, varillas metálicas, pintura blanca lisa.

La planta primera, bajo una cubierta inclinada, está compuesta por un gran espacio que contiene la escalera y distruye a las diferentes habitaciones y baños.
Este espacio central tiene un lucernario circular en la cubierta, al igual que en la fachada, así como conductos de climatización blancos flotando. El suelo de toda la planta, así como los armarios, se tiñen de madera de roble, y los huecos de 2,20×2,20m se convierten en ventanas de las dos fachadas.
La planta sótano es un gran espacio diáfano, en bruto, donde hacer bricolaje y trabajar con la madera mientras tomas un descanso en un patio semicircular de azulejos blanco brillantes.
Una vivienda donde la luz y el aire se mueven de forma libre en el espacio.




































