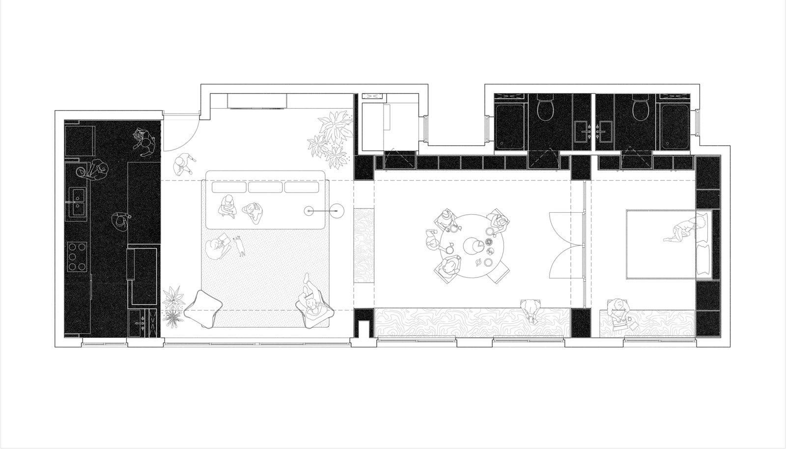
Proyecto de interiores para un apartamento de aproximadamente 90 m² en un condominio nuevo, originalmente compartimentado en dos dormitorios y una suite.
Sin embargo, desde la primera visita quedó claro que los clientes tenían otros planes: contar con una vivienda fluida, amplia, abierta e integrada.

Se demolieron los muros originales, eliminando los espacios segmentados y el pasillo. Surge una planta en enfilade, en una disposición que proporciona una relación directa entre los espacios sociales de la vivienda.




Se crea un cielo raso curvo para aportar fluidez y ritmo a la transición entre los sectores de la vivienda. La curva, al dirigir la mirada a lo largo de los ejes visuales, refuerza la idea de enfilade, amplificando la percepción de profundidad y la conexión entre los espacios, de forma análoga a la disposición de los vagones de un tren. Al fondo, la suite funciona como una cabina privada: se instala una divisoria de madera y vidrio, con cortinas blackout, que se cierran para garantizar la privacidad de los ocupantes.

Se materializa el proyecto: el piso de tecnocemento garantiza la continuidad entre los espacios, extendiéndose por las áreas secas y húmedas. La paleta de colores claros presente en los muros, el cielo raso y el piso contrasta con el tono oscuro de las láminas de madera natural de la carpintería, creando distintos planos de fondo para albergar y organizar las cerámicas de la cliente, los objetos decorativos de la pareja y el mobiliario de diseño de autor.

Los tonos claros también ayudan a realzar la iluminación natural proveniente de las ventanas orientadas al oeste, evidenciando las variaciones en el comportamiento de la luz a lo largo del día














































