La casa busca crear un espacio propio en las afueras de Romeira , en Santarém. Construye un lugar existencial, humanizado y concreto, habitado y estructurado con significado y propósito.
Se organiza potenciando las alineaciones visuales sobre el territorio, desde una perspectiva urbana y paisajística, asumiendo simultáneamente su papel como posible referencia visual.

Su acceso no es directo ni inmediato desde la vía pública, sino que está oculto. Rodeando la pequeña colina donde se asienta la casa, se asciende hasta un pequeño bosquecillo de encinas que se ha conservado íntegramente.
Esto crea una distancia intencionada que proporciona privacidad para el uso diario y obliga a realizar un recorrido de aproximación. Permite apreciar visualmente el edificio antes de llegar a la entrada.




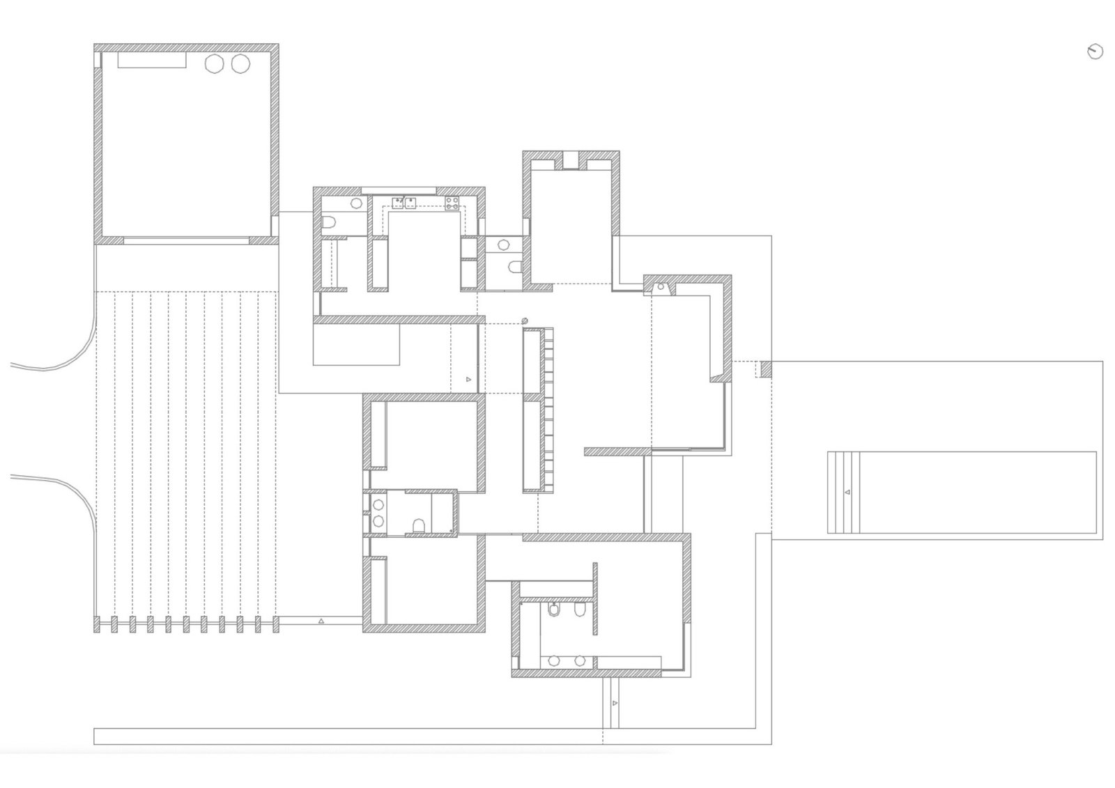
Se diseña la agregación de múltiples espacios contenidos en volúmenes. Cada uno posee su propia identidad y función programática, definida por sus diferentes atributos topológicos. La idea de fragmentación del conjunto se desarrolla en una suma de espacios autónomos o interconectados, integrando aspectos estéticos y constructivos contemporáneos.
El volumen resultante parece disminuir, aparentemente, debido a la desmaterialización de la masa total del edificio en diferentes elementos de menor volumen.

Se valora el legado de algunos temas formales inspirados en el paisaje rural portugués, en particular los edificios conocidos como «montes», erigidos en lugares dominantes del paisaje y formados por conjuntos de volúmenes dispuestos de manera informal.




















































