El objeto de la intervención es el Bairro do Boneco, perteneciente al conjunto de Bairros Ferroviários, cuyos orígenes se remontan aproximadamente a 1920.
Con un patio rectangular, similar al de los pueblos obreros populares, cuenta con un total de 18 casas, divididas en dos bloques consecutivos. Al norte, un bloque de dos plantas independientes, y al sur, casas de una sola planta sobre rasante.
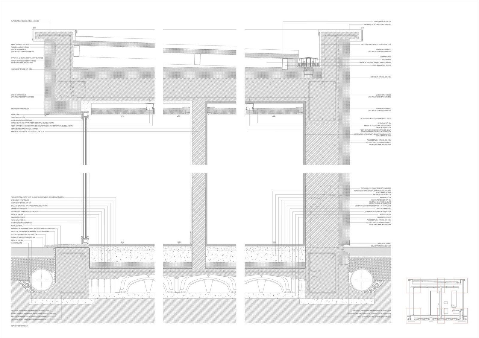
El edificio, de dos plantas, cuenta con 12 apartamentos distribuidos en las plantas. Cada apartamento consta de 4 celdas de igual tamaño, interconectadas, y un baño exterior, con una superficie total de aproximadamente 52,60 m² por apartamento.
Cada apartamento dispone además de un pequeño espacio exterior, un patio trasero, con acceso independiente. El acceso a la planta superior se realiza mediante escaleras y galerías exteriores de aproximadamente 1,00 m de ancho.

La propuesta incluye la creación del Centro Nacional de Documentación Ferroviaria, Centro Museístico y Centro de Ciencias, convergiendo así un Barrio Residencial que no cumple los requisitos de buena habitabilidad y salubridad en un Barrio Cultural adecuado que incluya la rehabilitación y puesta en valor del conjunto edificado que constituye el patrimonio histórico de la ciudad.
En su conjunto, el barrio está formado por dos edificios contiguos separados por un patio rectangular, con un panel de azulejos diseñado por el arquitecto Álvaro Siza que cuenta la historia de Entroncamento y Bairro do Boneco.




Un edificio de dos plantas albergará el Centro Nacional de Documentación Ferroviaria en la planta baja y una sala de exposiciones/galería en la planta superior. En el edificio de una sola planta sobre rasante se ubicará un Centro de Ciencias.
El Centro Nacional de Documentación Ferroviaria se construirá en la planta baja, creando un volumen de apoyo que ocupará parte de los espacios traseros entre el Museo Nacional del Ferrocarril y el edificio de dos plantas. El objetivo es establecer una simbiosis entre el Centro Nacional de Documentación Ferroviaria y el Museo Nacional del Ferrocarril, lo que también permitirá el acceso al Centro de Documentación a través del Museo.

Los principios de intervención buscaron adaptar y compatibilizar el conjunto con los requerimientos programáticos físicos y funcionales y la legislación aplicable exigida para un conjunto de servicios construidos.
También se buscó incluir elementos de valor patrimonial y preservar las características morfológicas y arquitectónicas que lo caracterizan.




















































































