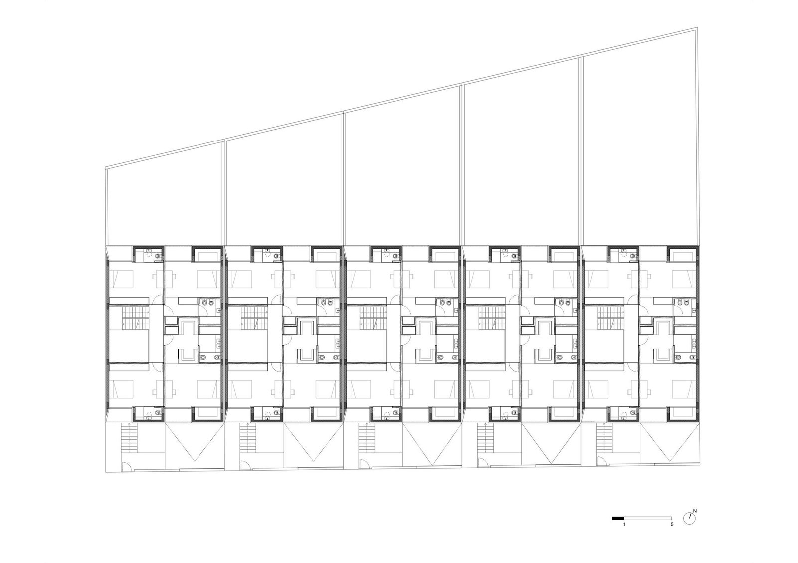
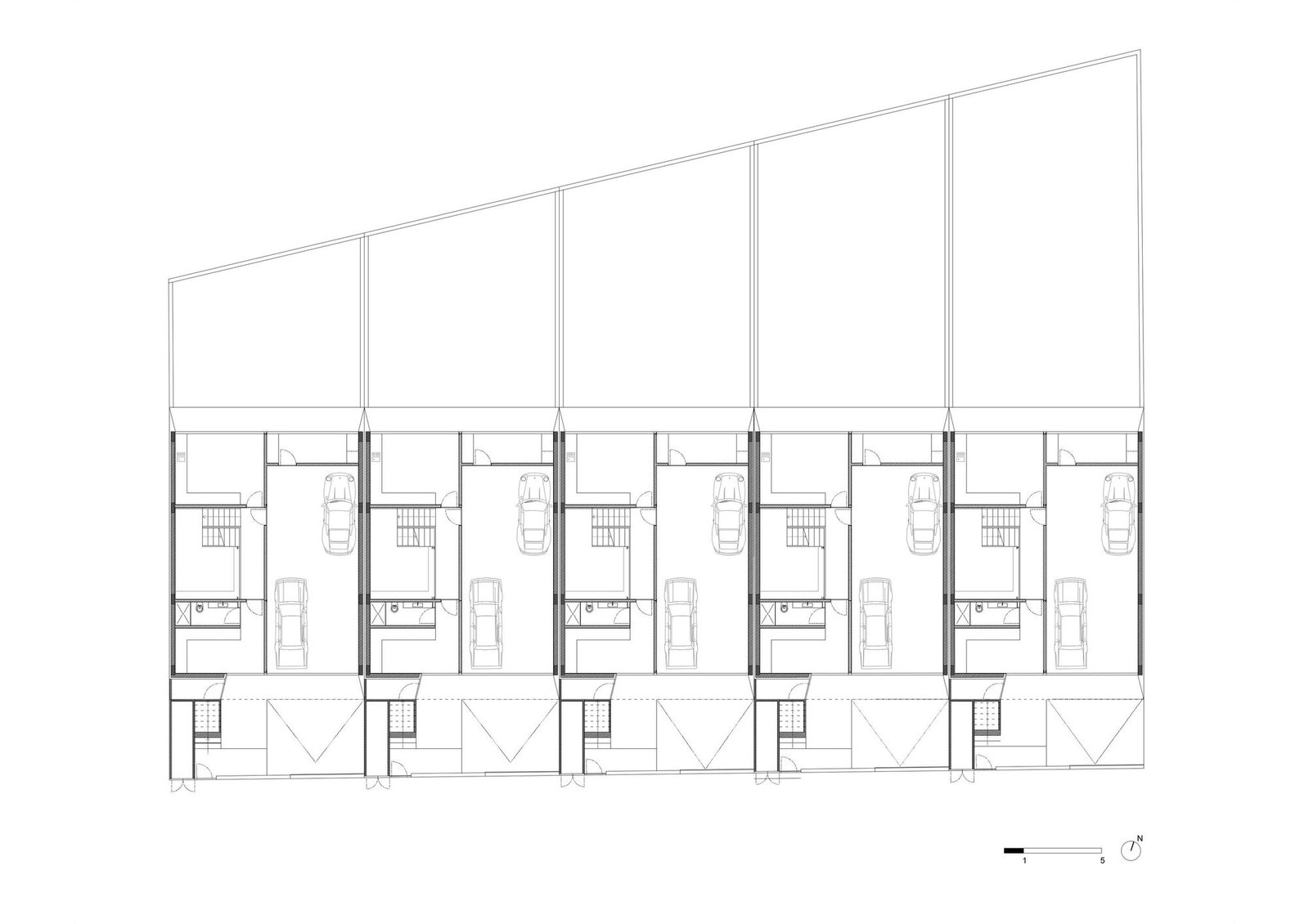
El desafío fue generar un conjunto de 5 casas adosadas de lujo modernas y con la más alta calidad arquitectónica y constructiva. Deberían estar cuidadosamente ubicados en una subdivisión en Matosinhos junto al mar. El concepto de estas viviendas es fruto de un diseño: crear un hogar en el que el espacio y la naturaleza sea en sí mismo un elemento de confort y refinamiento.

Creamos un proyecto que establece amplias relaciones entre las diferentes áreas de la casa, incluso cuando están ubicadas en diferentes plantas. El jardín de invierno con toda su naturaleza es el elemento unificador de todos estos elementos.




Los conceptos que más trabajamos y que resumen la propuesta son:
– Lujo
– Diferencia
– Naturaleza
– Amplitud
– Ligereza
Al visitar cada casa o relajarnos en cualquiera de sus espacios interiores o exteriores, nos daremos cuenta de la importancia de esa fluidez y de la propia ligereza de las formas.





































