El Hotel canino y felino se encuentra en Parada, Vila do Conde y el programa principal consiste en alojamiento temporal para perros y gatos, un hotel donde los animales permanecen durante unos días, durante las vacaciones o viajes profesionales de sus dueños.
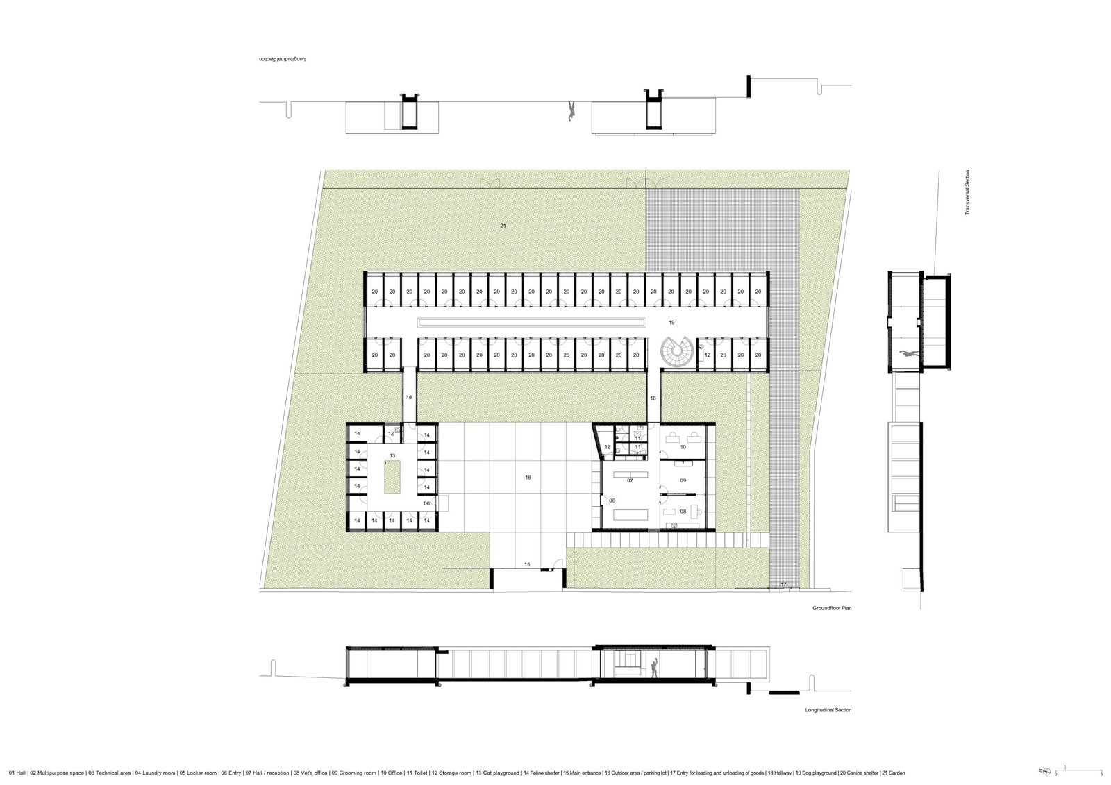
El programa restante es un complemento de la actividad del espacio, con una oficina veterinaria, una sala de aseo, áreas de entrenamiento al aire libre y una piscina para mascotas. El programa se distribuye en tres edificios que están interconectados, lo que permite crear tres áreas diferentes. De esta forma conseguimos separar la zona del gato de la zona del perro, evitando la reunión de ambos y reduciendo los ruidos de los animales. En otro edificio encontramos todos los espacios de servicio público. En combinación con las necesidades de diseño programático, los tres volúmenes fueron diseñados para reducir el impacto del área de construcción a fin de mejorar su integración con el paisaje.


El primer volumen, con un solo piso, corresponde al área de recepción y soporte, con mesa de servicio, una pequeña tienda, almacenamiento, las instalaciones sanitarias, una oficina, una oficina de veterinaria y una sala de aseo. El segundo volumen es el más grande y aprovecha la topografía existente para la creación de dos pisos, que funciona como un enlace entre la parte más alta del terreno (el área de entrada) y la parte inferior (el patio de recreo para los animales).
Arriba tenemos cuarenta y un refugios para perros separados por el corredor central con un pequeño jardín para obstruir el contacto visual de los animales uno frente al otro. En el piso inferior, con un acceso de escalera de caracol, tenemos un espacio de usos múltiples, una sala técnica, una sala de lavandería y un vestuario y baño para empleados.




El tercer volumen corresponde al refugio para gatos, es el más pequeño y tiene doce espacios de alojamiento independientes, con un espacio central de circulación alrededor de un jardín interior que sirve como área de juegos para gatos y está iluminado por una gran claraboya.
Sobre el acabado del edificio, las paredes y techos exteriores están cubiertos por un sistema de aislamiento térmico por el exterior de color gris claro y aislamiento térmico en todas las superficies. En el techo se utilizan membranas de lámina de betún, aislamiento térmico y protección con piedra natural. En los balcones y en el área de estacionamiento de los visitantes se utilizan pisos de concreto gris oscuro.

En la ruta de acceso al piso del sótano (servicios de carga y descarga) se utiliza el granito de la región. En el interior, el piso de todos los espacios es continuo e impermeable, con la aplicación de piso epoxi autonivelante. En las paredes de los baños, en los vestuarios, en las escaleras y en el jardín interior del edificio para perros se utiliza un único revestimiento de microcemento gris claro.
Las carpinterías de puertas y armarios están realizadas con MDF lacado blanco. Afuera, las paredes de piedra de granito se limpiaron y conservaron, manteniendo el mismo método de construcción. En la cerca de los campos de adiestramiento canino se utilizan postes de granito para asegurar las redes de la cerca. Estos postes de granito ya existían en el suelo y se usaban en el viñedo cerca de las paredes del campo de plantación.








































