En un terreno marcado por limitaciones urbanas desfavorables, el edificio de 24 viviendas sociales en el barrio de Les Comes de Igualada propone una arquitectura que se resiste a las limitaciones normativas o programáticas.
El proyecto se concibe como una pieza de transición entre un complejo residencial existente y un parque urbano adyacente, explorando nuevas relaciones entre la vivienda colectiva, el espacio público, la sostenibilidad y la vida comunitaria.

Más allá de abordar un encargo residencial, el edificio actúa como infraestructura urbana, capaz de dinamizar su entorno, promover la movilidad sostenible y probar estrategias de economía circular aplicadas a la vivienda pública.
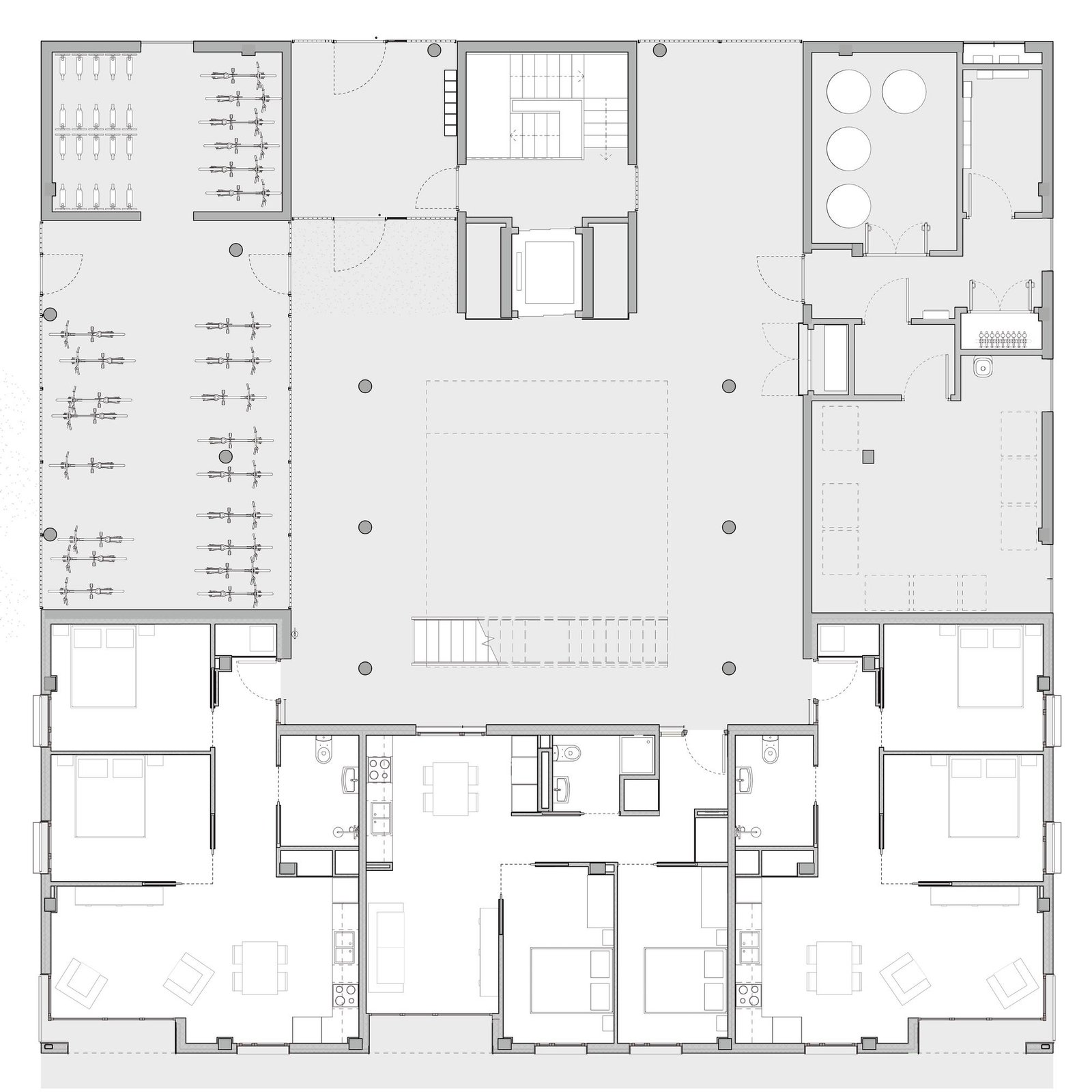
El volumen completa la fachada existente a la vez que se abre hacia el parque, reforzando la continuidad del espacio público. Un patio central abierto y con ventilación natural organiza el conjunto y permite que el espacio urbano penetre en el corazón del edificio, elevándose visualmente desde la planta baja hasta la cubierta. Este vacío funciona como mediador climático, espacial y social, estableciendo un diálogo directo entre el interior y el exterior.



La planta baja se libera deliberadamente para convertirse en el verdadero corazón del proyecto. En lugar de adoptar una distribución convencional, este nivel concentra puntos de acceso, espacios técnicos, zonas comunes y un amplio aparcamiento de bicicletas, configurando un espacio colectivo conectado tanto con el parque como con el barrio. Para ello, se replanteó la tipología de las viviendas: de las seis viviendas inicialmente previstas por planta se aumentaron a siete en las plantas tipo, mientras que la planta baja alberga solo tres unidades, priorizando el espacio compartido sobre la eficiencia estrictamente cuantitativa.
En este contexto, la bicicleta adquiere un papel protagonista. En un barrio históricamente separado del centro de la ciudad por zonas industriales, el proyecto incorpora un amplio aparcamiento de bicicletas, concebido no como un servicio residual, sino como una infraestructura estratégica que promueve la movilidad activa y fortalece las conexiones cotidianas con la ciudad. Frente al parque, este elemento actúa como bisagra, filtrando y mediando entre la escala doméstica y el espacio verde.

Las viviendas resultantes son compactas, pero buscan trascender las limitaciones dimensionales mediante estrategias espaciales precisas. El enfoque de «esquina destruida» rompe los límites visuales convencionales, amplía las perspectivas interiores y potencia la continuidad espacial, generando viviendas luminosas y flexibles a pesar de su limitada superficie.
La identidad arquitectónica del edificio surge de una reinterpretación contemporánea del pasado industrial de Igualada. La carpintería metálica vista, los sistemas prefabricados y los métodos de construcción en seco dialogan con una estética tecnológica que evoca la imaginación de la alta tecnología de los años setenta y ochenta. Este carácter industrial se equilibra con la calidez doméstica de materiales como el OSB reciclado, utilizado en las zonas comunes para reforzar el carácter colectivo y habitable del conjunto.

La sostenibilidad es la base de cada decisión del proyecto. La reducción de la demanda energética se logra mediante una envolvente de alto rendimiento con valores de transmitancia térmica muy bajos, aislamiento avanzado, protección solar pasiva, acristalamiento de baja emisividad y ventilación cruzada, todo ello apoyado por el patio central. El edificio elimina por completo los sistemas térmicos basados en combustibles fósiles.
La cubierta se concibe como un plano activo: una pérgola fotovoltaica y un gran lucernario central coronan el edificio y definen su silueta, haciendo visible la dimensión energética del proyecto. La instalación alcanza una producción anual de 11.153 kWh, suficiente para cubrir toda la demanda energética comunitaria.

La gestión del agua sigue una lógica circular, incorporando un sistema de reutilización de aguas grises que recoge el agua de las duchas y lavadoras para abastecer las cisternas de los inodoros, junto con un pavimento exterior permeable y una red de drenaje separada preparada para futuras estrategias de reutilización de agua de lluvia a escala urbana.
El proceso de construcción adopta los principios de la industrialización y la economía circular: sistemas secos, aberturas modulares, carpintería metálica fabricada en taller y grandes componentes de acero cortados con láser reducen el tiempo de construcción, minimizan los residuos y facilitan la adaptación futura. Más del 70 % de los residuos no peligrosos generados se recuperan, lo que refuerza un enfoque responsable del ciclo de vida.

Lejos de simplemente cumplir con un programa de vivienda pública, el proyecto propone una arquitectura capaz de contribuir a la ciudad, dinamizar el espacio público y ofrecer una vivienda de alta calidad. Donde antes había un terreno difícil, ahora se alza un edificio que entiende la vivienda social como una oportunidad para construir comunidad, paisaje y sostenibilidad



































