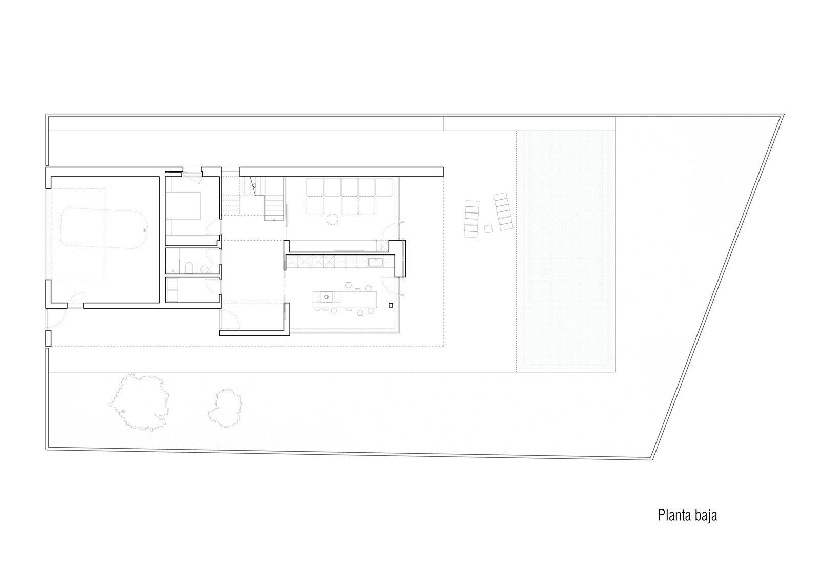
Una parcela alargada situada en el límite del suelo urbano, junto a la rambla del río Almanzora, condiciona la forma y la organización del proyecto.

La vivienda se orienta hacia el sur, aprovechando al máximo la luz natural y las vistas abiertas hacia la sierra. Un amplio porche envuelve la planta principal, generando un espacio intermedio que protege del sol durante los meses de verano.




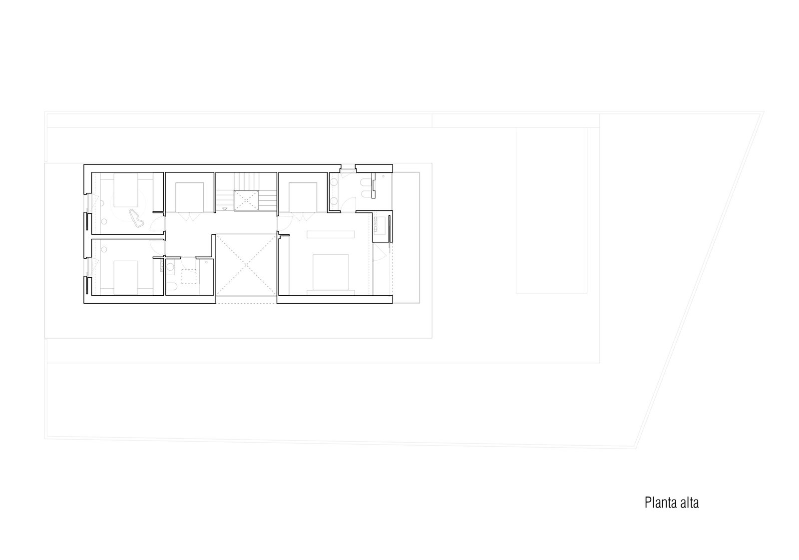
Sobre este plano, el volumen de los dormitorios emerge, manteniendo la visión diagonal del cielo y reforzando la relación entre el interior de la vivienda y el paisaje que la rodea.



































