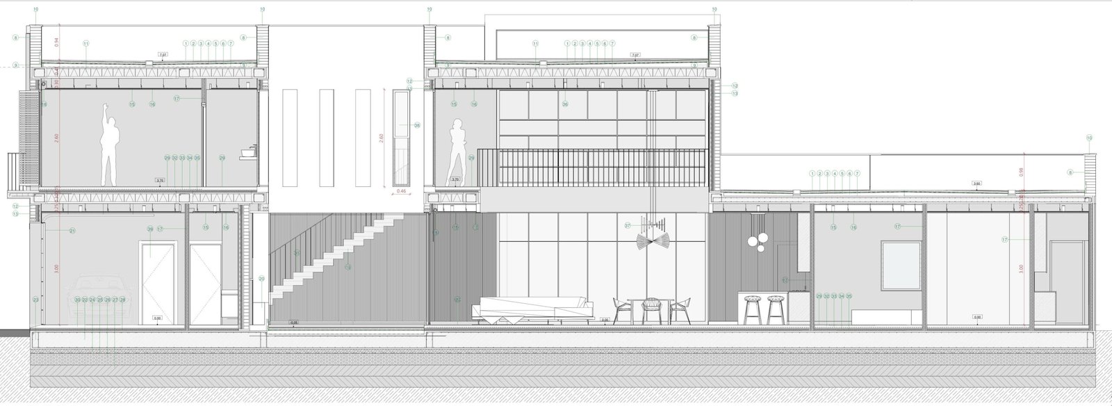
Casa Serena es una vivienda nueva y moderna, de arquitectura meditada, de materiales nobles y de tonos neutros y naturales.

Aunque es una obra contemporánea, la influencia histórica del entorno donde se erige y el fuerte carácter de la construcción que la precedió, la inducen a atender a la tradición y a homenajearla, a rescatar elementos preexistentes y a aprender de las lecciones heredadas de la antigua vivienda.



La propuesta acepta la complejidad y el eclecticismo de los problemas planteados, asume las limitaciones y restricciones impuestas por la situación, y de ellas extrae su fuerza.




















































