El proyecto combina tres expresiones arquitectónicas que se integran con los retos urbanos del barrio. La primera, una retícula estructural de hormigón blanco, representa la identidad mediterránea y evoca el grosor, la sombra, la porosidad, el ritmo y el encuadre del vasto paisaje.
Complementa el grosor de las logias y se convierte en el lenguaje mismo de la arquitectura. La segunda, una composición más sobria, permite que el paisaje poético de la zona surja en el corazón de la manzana. La última expresión se refiere a la escala doméstica, visible en las casas con techos de hormigón blanco y los senderos que recorren el proyecto.

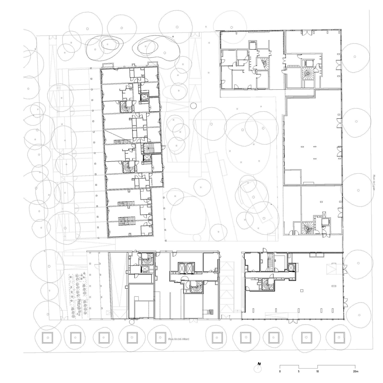
Los accesos se destacan a través de tres pasajes que distribuyen los salones y conectan con el jardín interior. El trabajo de paisajismo (huerto, terrazas verdes, jardín interior) permitió prestar especial atención a los espacios de circulación, los límites y la integración en el rico ecosistema holístico del área comercial. La envolvente de hormigón blanco de bajas emisiones de carbono nos permitió explorar diferentes secuencias y formas de habitar.
Un doble reto: sostener las fachadas, proteger las logias y crear un ritmo poroso que es a la vez urbano y marcadamente mediterráneo. La celosía de hormigón blanco, hormigonada in situ, requirió una implementación y un proceso específicos, especialmente en las plantas del ático por encima del nivel 15. Se trata de hormigón blanco de bajas emisiones de carbono, vertido in situ. La parte superior del ala oeste del proyecto se creó utilizando una matriz almenada.

Alpha refleja las dos escalas del sitio: la escala urbana del nuevo barrio, conectado a las Crottes y la Rue de Lyon, y la escala del vasto paisaje mediterráneo, que la torre de 15 pisos enmarcará, ofreciendo vistas de 360 grados del área circundante.
El proyecto también combina tres expresiones arquitectónicas que resuenan con los desafíos urbanos del barrio. La primera, una cuadrícula estructural en hormigón blanco, es una expresión de una identidad mediterránea, evocando espesor y sombra, porosidad, ritmos y enmarcando el gran paisaje.




Complementa el espesor de las logias y se convierte en el lenguaje mismo de la arquitectura. La segunda es una composición más sobria, permitiendo que el paisaje poético del sitio emerja en el corazón de la manzana. La última expresión se refiere a una escala doméstica, visible en las casas con techos de hormigón blanco y los caminos dentro del proyecto.
Las entradas se destacan a través de tres pasillos que distribuyen los salones y conectan con el jardín interior. El trabajo paisajístico (huerto, terrazas verdes, jardín interior) permitió prestar especial atención a los espacios de circulación, los límites y la integración en el rico ecosistema holístico de la zona comercial. Alpha se ubica dentro de las fábricas en la ampliación de Euroméditerranée en Marsella.

Se trata de un programa mixto e inclusivo que comprende: 148 viviendas en venta, que ofrecen una variedad de tipologías y situaciones de vida, incluyendo dúplex en planta baja con jardín privado, apartamentos con vistas a la ciudad y al mar, y casas en azotea.









































