La rehabilitación y ampliación de este edificio lisboeta, situado cerca del Centro Cultural de Belém y del río Tajo, buscó equilibrar las intervenciones contemporáneas con la preservación de su tejido urbano histórico.
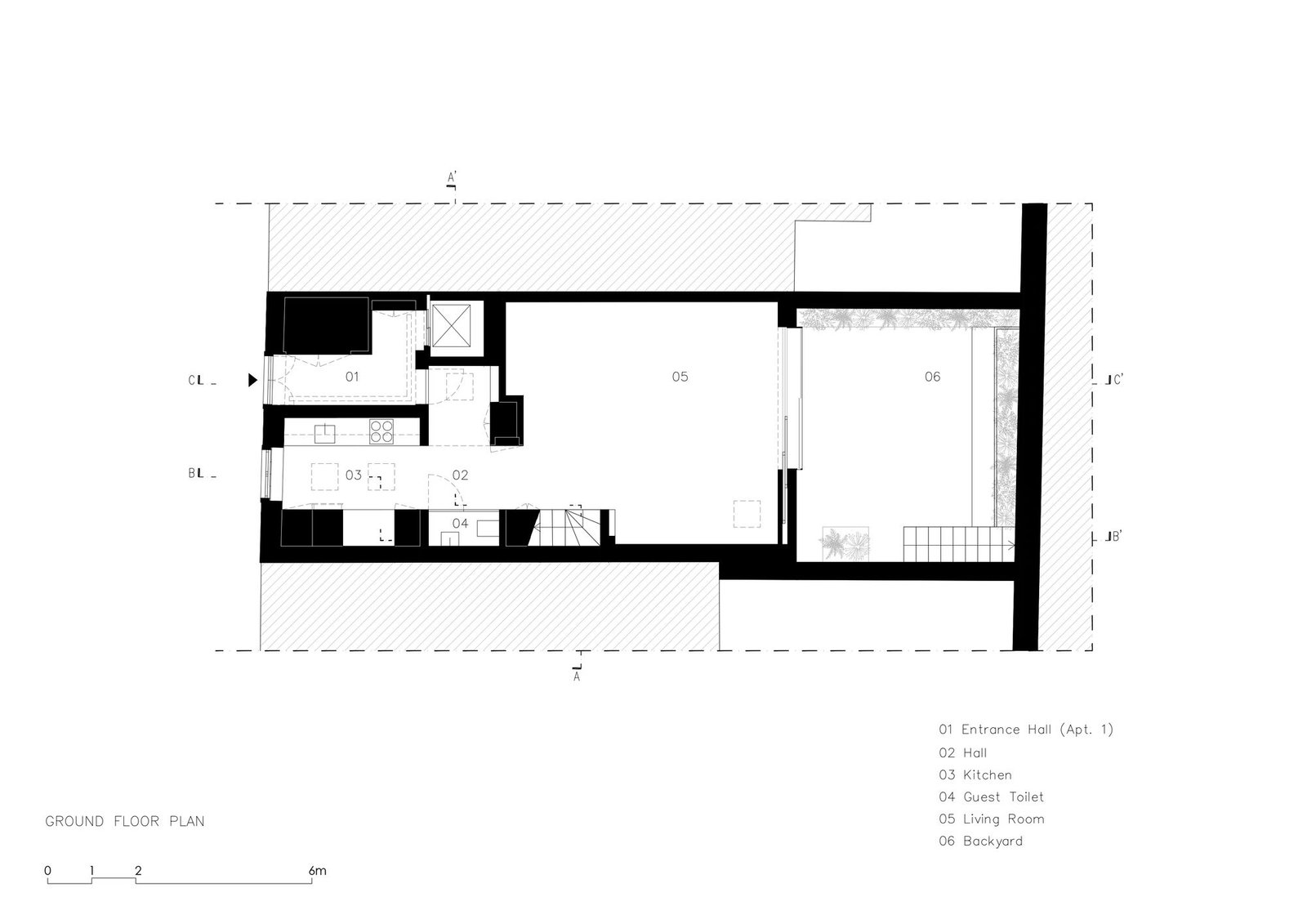
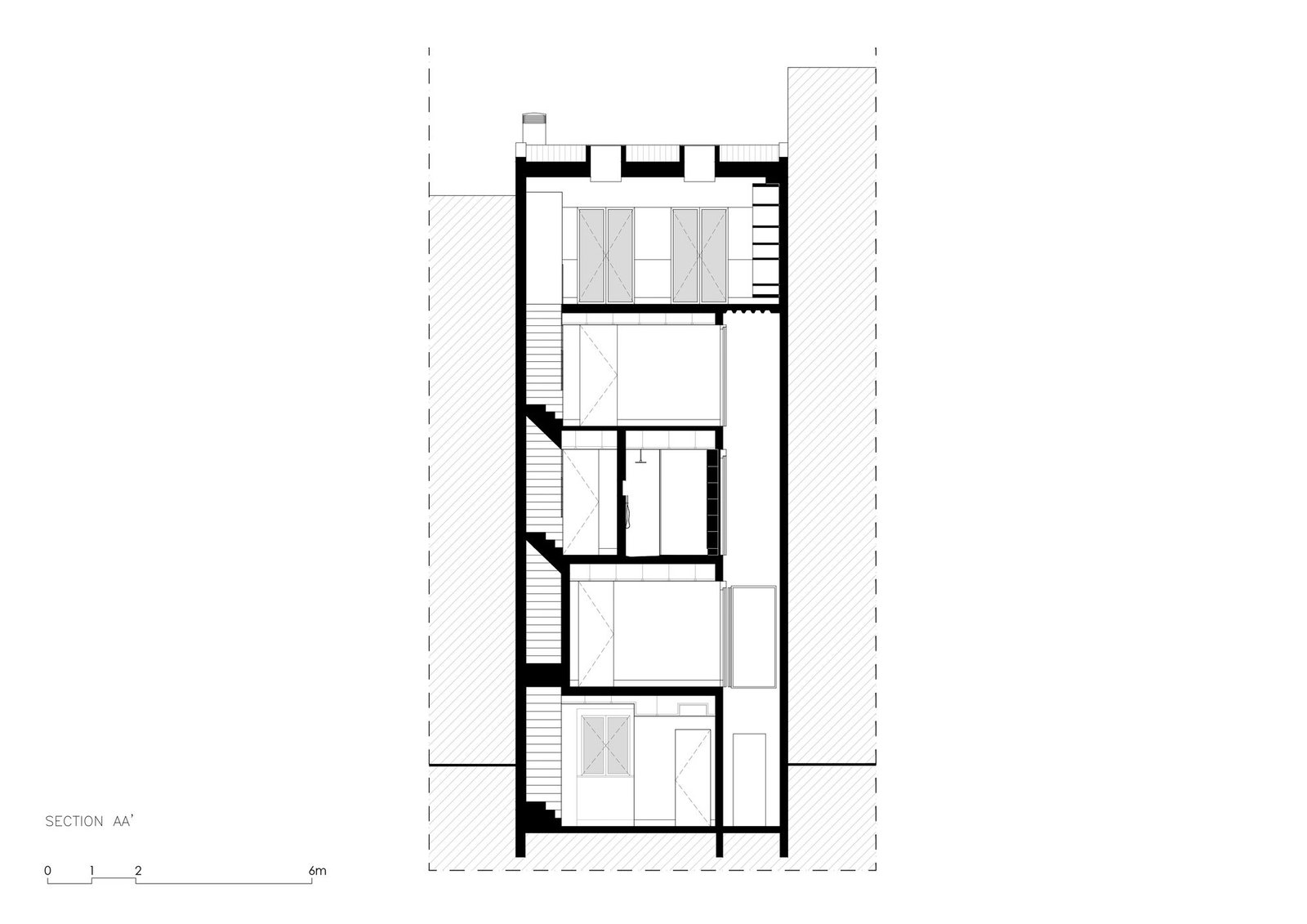
Originalmente compuesta por un local comercial en la planta baja y dos apartamentos compactos de dos habitaciones en la planta superior, la estructura existente se caracterizaba por una distribución interior limitada y poca luz natural. La estrategia de diseño respondió a estas deficiencias espaciales y ambientales, a la vez que se adaptaba a un ambicioso programa de dos viviendas tríplex independientes.

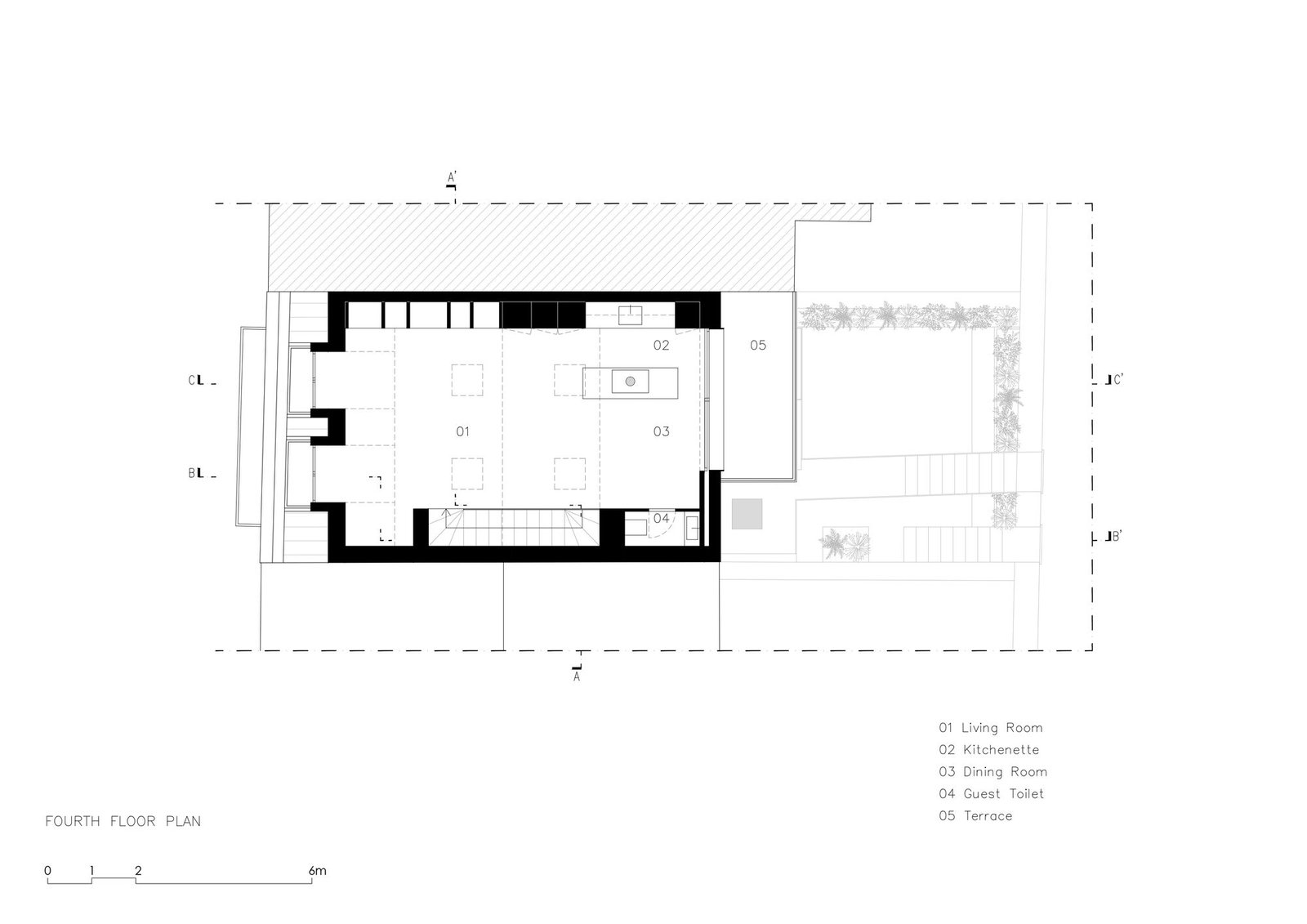
Se introdujo una ampliación vertical de dos plantas, aprovechando las vistas panorámicas hacia el río Tajo y el Puente 25 de Abril. Esta intervención se articuló mediante una cubierta revestida de zinc, que distingue la nueva ampliación, respetando al mismo tiempo el ritmo de la fachada frontal conservada. En contraste, la fachada trasera adoptó un lenguaje más contemporáneo, integrando ventanas correderas para potenciar la iluminación natural y establecer una relación fluida entre los espacios interiores y exteriores.




En el interior, la reconfiguración priorizó la amplitud y claridad del espacio, atendiendo la necesidad de espacios habitables más amplios y funcionales. La planta superior del triplex superior se destinó a las zonas sociales, optimizando la entrada de luz y enmarcando las amplias vistas al río.
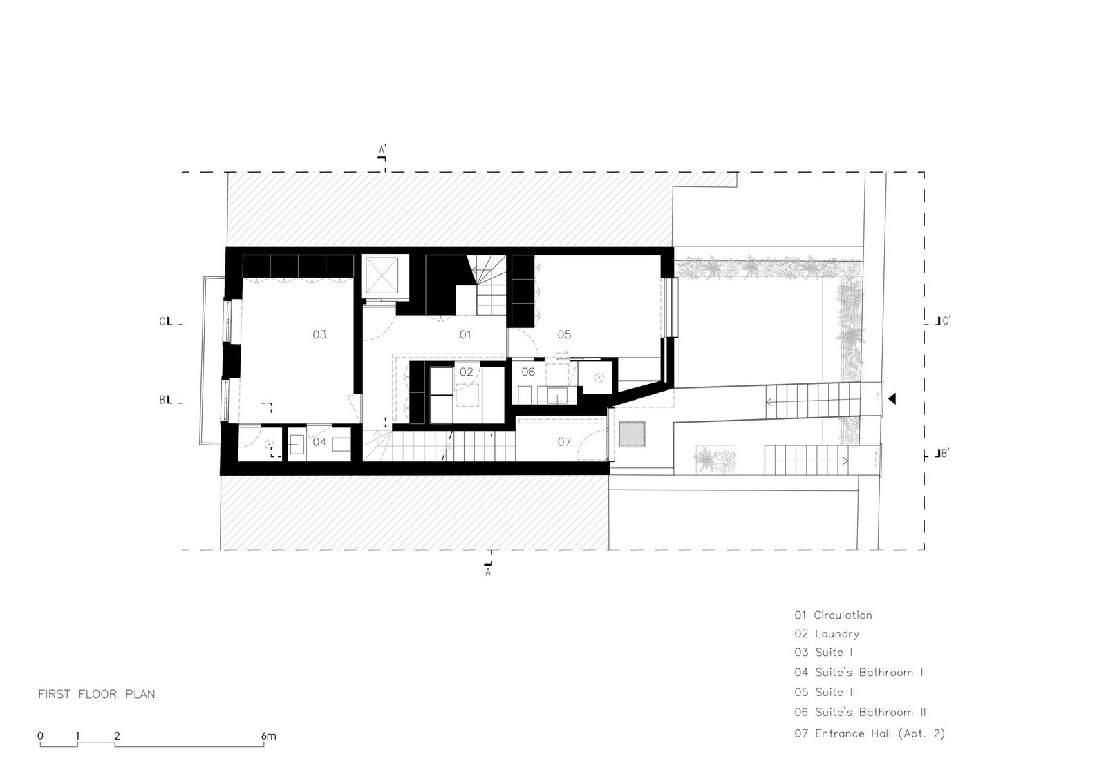
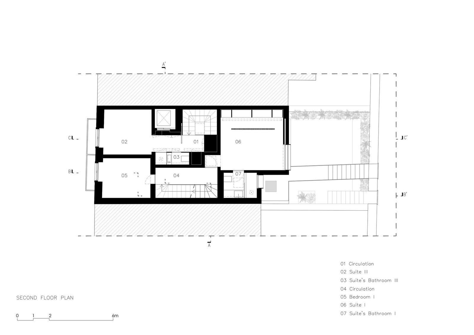
La nueva distribución alberga dos viviendas tríplex distintas: la inferior cuenta con tres dormitorios con baño privado, mientras que la superior incluye dos dormitorios que comparten un baño junto a un dormitorio con baño privado.

La materialidad jugó un papel crucial para reforzar la sensación de atemporalidad. Se empleó una paleta de madera, piedra y vidrio en toda la casa, garantizando durabilidad y coherencia estética. Se especificó carpintería de MDF a medida con acabados de madera natural o lacada en blanco y azul claro, lo que contribuyó a una expresión interior refinada y a la vez sobria. La introducción de dos accesos —a través del vestíbulo compartido con ascensor en la parte delantera y entradas traseras independientes— reforzó aún más la eficiencia programática del diseño








































































