Desarrollado gracias a la estrecha colaboración entre ACDF Architecture y Maître Carré, MELLEM Les Trembles destaca ante todo por el arte del equilibrio, una forma de «dosificación» arquitectónica que se ha vuelto esencial en el contexto actual.
En una época en la que los desafíos medioambientales y la escasez de recursos exigen hacer más con menos, este enfoque se ha convertido en una auténtica filosofía: crear una arquitectura responsable, expresiva y significativa.

Aquí, el equilibrio entre arraigo, longevidad y confort se expresa no solo a través de una firma arquitectónica distintiva, sino también mediante la búsqueda deliberada de un equilibrio mesurado: entre sobriedad y riqueza expresiva, entre eficiencia constructiva y generosidad espacial.
MELLEM Les Trembles encarna fielmente la filosofía de ACDF Architecture: crear una arquitectura que se impone con una fuerza serena, privilegiando la sobriedad de los medios, garantizando que cada gesto sea a la vez mesurado y con propósito.



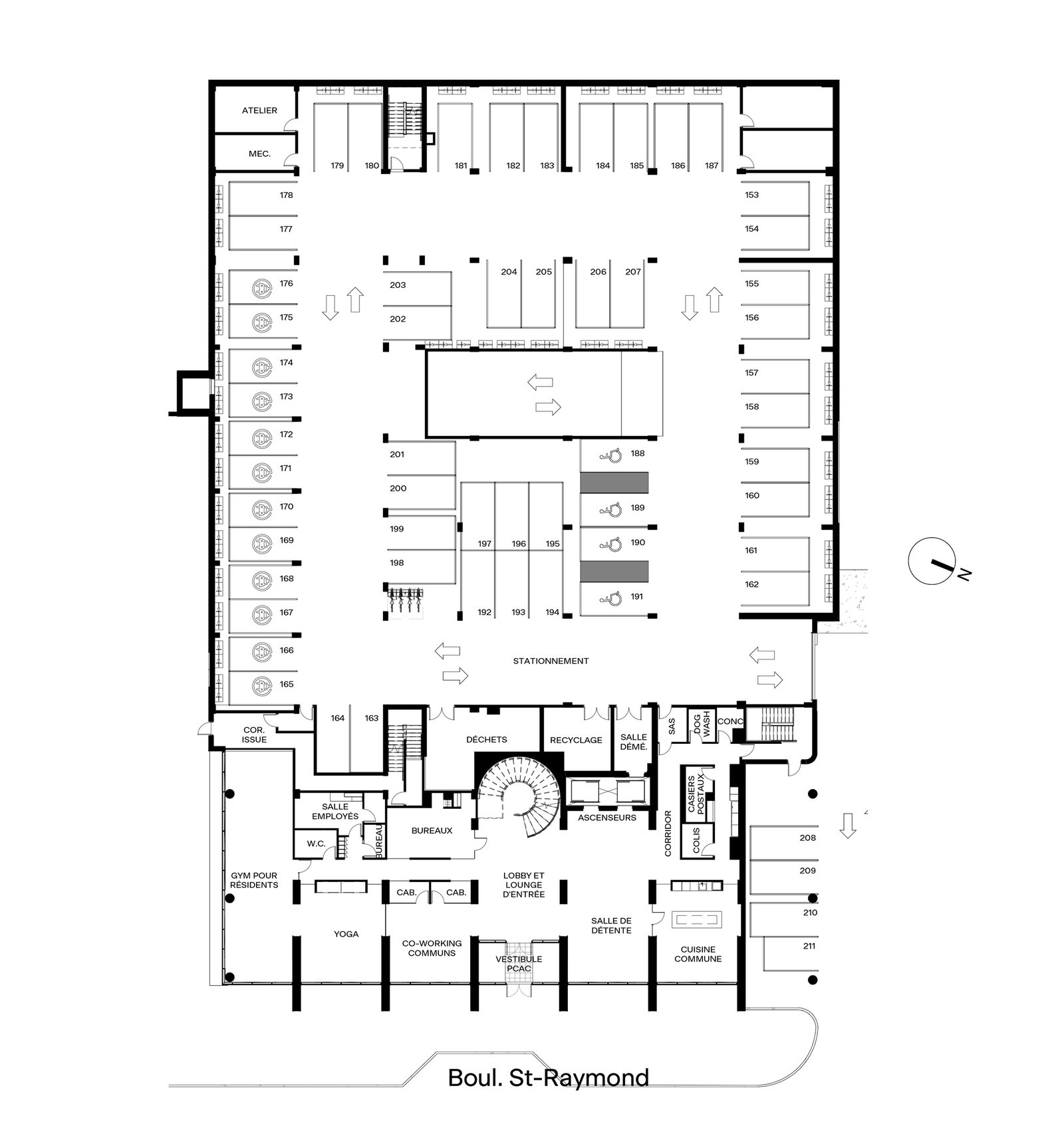
Compuesto por 189 unidades de alquiler, desde estudios hasta apartamentos de cinco habitaciones, el proyecto se distingue por la decisión deliberada de ubicar la mayoría de las zonas comunes en la planta baja, conectando directamente con la ciudad. Este gesto refleja el deseo de crear espacios de conexión e intercambio, donde la arquitectura se convierte en un catalizador para la comunidad.
En lugar de aislar a los residentes dentro de un modelo de vivienda individualista, el proyecto celebra el «nosotros» por encima del «yo», enfatizando el valor colectivo de la vida multifamiliar. La planta baja actúa así como un verdadero umbral habitado, un espacio vivo que contribuye a la vitalidad del espacio público, a la vez que fomenta el sentido de pertenencia entre los residentes.

En este espíritu, los arcos de la planta baja conforman el gesto arquitectónico que define el proyecto. Expresan tanto el arraigo del edificio en su emplazamiento como la dimensión sensorial de la vivienda que los arquitectos y el promotor buscaban crear. Con su suave monumentalidad en el exterior y su envolvente presencia a escala humana en el interior, los arcos encarnan una arquitectura que conecta, reúne y nutre la idea de convivencia.
«El proyecto se guía por un sutil sentido del equilibrio, reinterpretando la columnata clásica para expresar tanto arraigo como permanencia», explica Christelle Monteuil-Jean-Pois, arquitecta asociada de ACDF Architecture. «Su estilo podría describirse como una elegancia discreta: una arquitectura que atrae la mirada con precisión, sin pretender dominar».

La geometría arqueada se extiende a través de una serie de curvas integradas en el volumen general del edificio. Estas líneas fluidas definen una silueta distintiva, donde las transiciones entre el ladrillo rojo y el blanco se leen como una fina costura de alta costura, uniendo los diversos componentes del proyecto. Este perfil distintivo afirma la presencia del edificio a escala de la ciudad, a la vez que mantiene una refinada intimidad humana a nivel de calle.
Los balcones escalonados aportan textura, ritmo y vitalidad a las fachadas, transmitiendo la energía del entorno.
Los salientes perpendiculares de los muros enmarcan estas composiciones, creando un juego dinámico de profundidad y sombras que dota al proyecto de una dimensión pictórica, perceptible incluso a escala del barrio.

En el interior, ACDF diseñó las zonas comunes con el mismo equilibrio que define el proyecto en su conjunto. Los arcos se extienden hacia el interior, dando forma a zonas temáticas más íntimas, a la vez que marcan un paseo longitudinal que conecta, de extremo a extremo, el espacio de coworking y la cocina común con el gimnasio.
Las paredes de tonos claros y reflectantes realzan la iluminación natural, mientras que un techo oscuro absorbe los elementos técnicos expuestos (ventilación, iluminación) en un gesto de frugalidad y ahorro de recursos.
El resultado es un espacio cálido, funcional y cuidadosamente medido, en plena sintonía con la filosofía de diseño del proyecto.

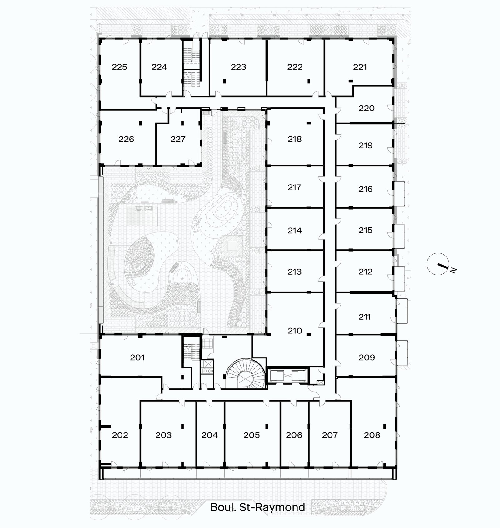
En el centro de la composición, una gran escalera alineada con la entrada principal conduce a una sala de estar que se abre a un patio exterior, ajardinado, sobre la primera planta de aparcamiento.
Enclavada en la pendiente natural del terreno, la parte inferior del edificio alberga la primera planta de aparcamiento, que alberga la mayoría de las 375 plazas para bicicletas, promoviendo el transporte activo, junto con 20 estaciones de carga para vehículos eléctricos.
Este enfoque en la movilidad sostenible refleja la visión responsable del promotor, posicionando a MELLEM Les Trembles como un modelo de vida urbana colectiva, adaptable y respetuosa con el medio ambiente.

Con su interacción de materiales, arcos acogedores, curvas fluidas, interiores equilibrados y vibrantes espacios comunes, MELLEM Les Trembles ejemplifica una arquitectura urbana distintiva y duradera: sobria pero expresiva, acogedora y colectiva, que ofrece a sus residentes un verdadero refugio urbano a la vez que realza el paisaje arquitectónico de Gatineau.
«Nuestro mayor orgullo reside en haber logrado un equilibrio preciso entre eficiencia y estética», añade Monteuil-Jean-Pois. «El resultado es una arquitectura única, imbuida de humildad, que se integra con sensibilidad en su contexto, a la vez que reivindica su sello distintivo».
La configuración en forma de C del edificio, organizada en torno a un jardín orientado al oeste, optimiza el potencial del terreno y logra una densidad equilibrada sin depender de una altura excesiva. MELLEM Les Trembles demuestra que una arquitectura bien compuesta puede alcanzar niveles significativos de densidad, contribuyendo positivamente a la calidad de los entornos que habita.

Al combinar una composición arquitectónica cuidadosamente equilibrada con un uso eficiente del terreno, el proyecto logra un rendimiento financiero suficiente para permitir más y mejores resultados.
En lugar de buscar la rentabilidad a costa de la calidad, este enfoque permite reinvertir donde el impacto es más significativo: en la calidad de las zonas comunes, la durabilidad de los materiales y la creación de espacios compartidos que fomentan la vida en comunidad.
El proyecto ilustra que la densidad y la viabilidad financiera, cuando se abordan con inteligencia y sensibilidad, pueden convertirse en potentes palancas para crear hábitats colectivos con una menor huella ambiental: hogares que celebran el compartir, la proximidad y la calidad de vida urbana.






























