La Casa ED es una residencia privada para una familia (una pareja con dos hijos), ubicada en Lakatamia, un suburbio de Nicosia, Chipre.
Tras las primeras conversaciones con los propietarios, pudimos definir algunas cualidades importantes que el diseño de la casa debía cumplir.

- Privacidad prudencial, con sensibilidad hacia el espacio urbano
- Luz variable según el sol
- Una estrecha relación con la intimidad
- La necesidad de albergar la colección de obras de arte de la pareja



Para responder a estas preguntas, incorporamos al proyecto las cualidades de dos referencias arquitectónicas aparentemente contradictorias:
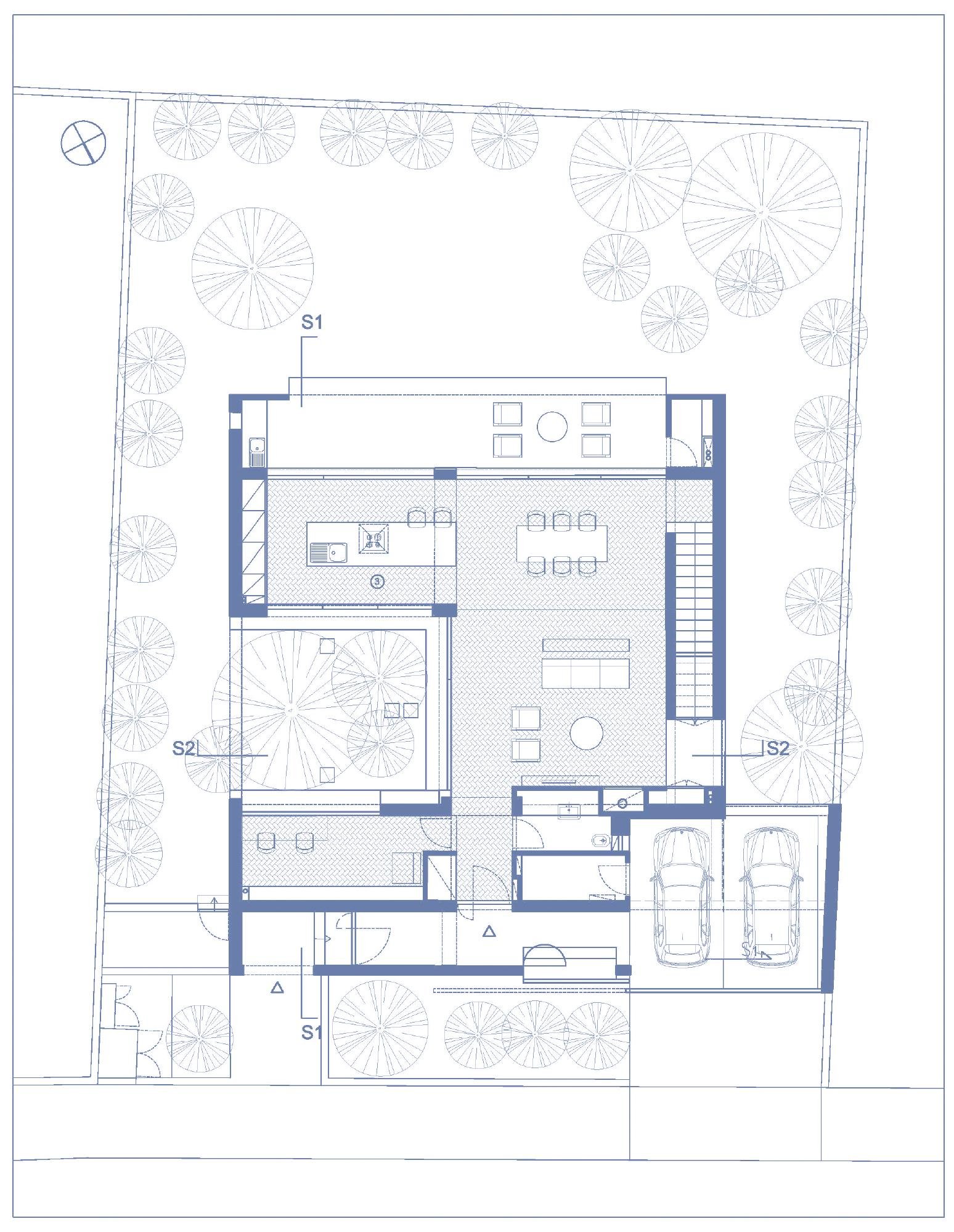
- El elemento del «perivolos», el alto muro que rodea la casa chipriota tradicional y que proporciona privacidad, así como un espacio interior al aire libre, generalmente en forma de jardín cerrado
- La blancura y limpieza de la arquitectura modernista loosiana, que crea un lienzo blanco dentro y fuera de la casa y, al mismo tiempo, facilita la entrada de luz natural

El resultado fue un cubo blanco formado por una sucesión de muros concéntricos que prolongan la experiencia de entrar en la casa y llegar a su núcleo, a la vez que permiten un espacio vacío que se llena con un jardín silvestre.
Este espacio, un elemento de la arquitectura vernácula chipriota, actúa como espacio de referencia principal para todas las actividades de la familia y todos los espacios separados. El vacío se convierte en el corazón de la casa.




































