El lote existente incluía un jardín con tres frentes y una vivienda que formalmente desentonaba con la simplicidad y austeridad características de las viviendas originales del barrio de Caramão, en Lisboa.

El proyecto tenía como principales premisas rescatar la imagen de la vivienda existente y proponer un nuevo volumen de ampliación con otro lenguaje formal y espacial.
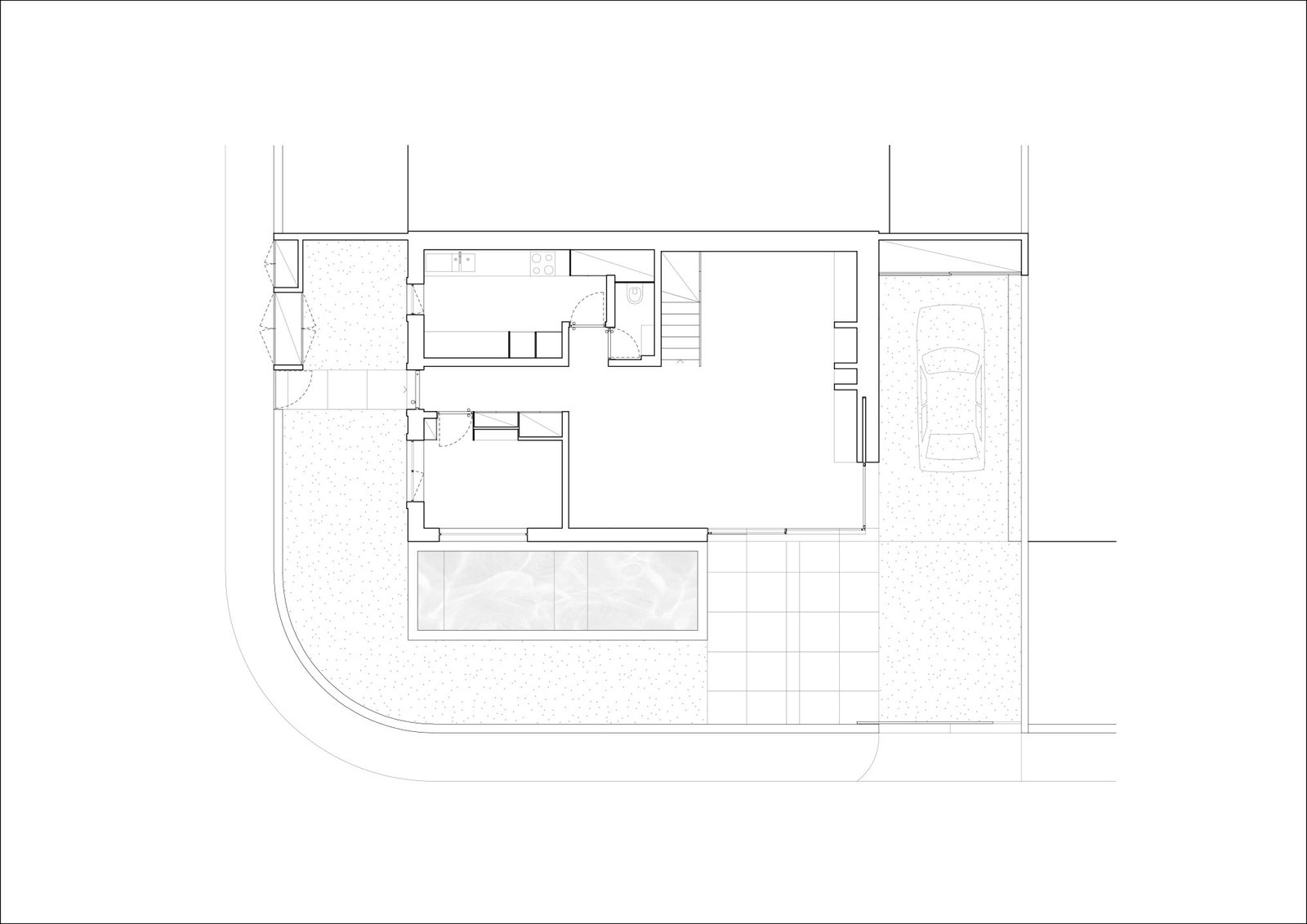
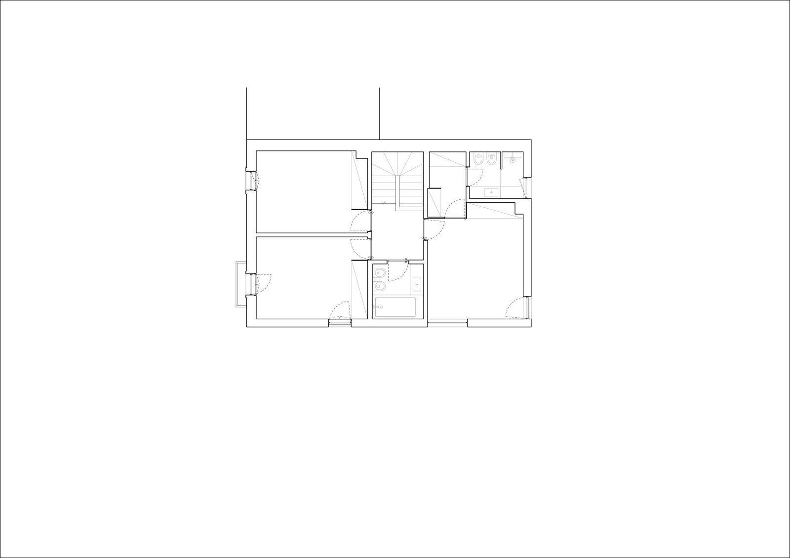
Se redefinió el acceso a la vivienda y se procedió a una reorganización casi total de los diseños interiores.




Se mantuvo íntegramente la fachada frontal, mientras que las fachadas lateral y trasera fueron modificadas por la integración del nuevo volumen que introdujo nuevas ventanas para conectar con el exterior.

En el jardín trasero se diseñó una piscina y un espacio exterior para comidas. La casa aprovecha las tres orientaciones solares Oeste-Sur-Norte y está destinada a la residencia de una pareja joven.

















































