Esta intervención consistió en la rehabilitación de una casa situada en Vila Nova de Cacela, en la frontera entre la zona urbana y el barrocal algarvío.
La casa, un edificio obrero tradicional de mediados del siglo XX, conserva vestigios de la arquitectura popular algarvía, como por ejemplo el tejado, las cerchas y la chimenea de mampostería de encaje.
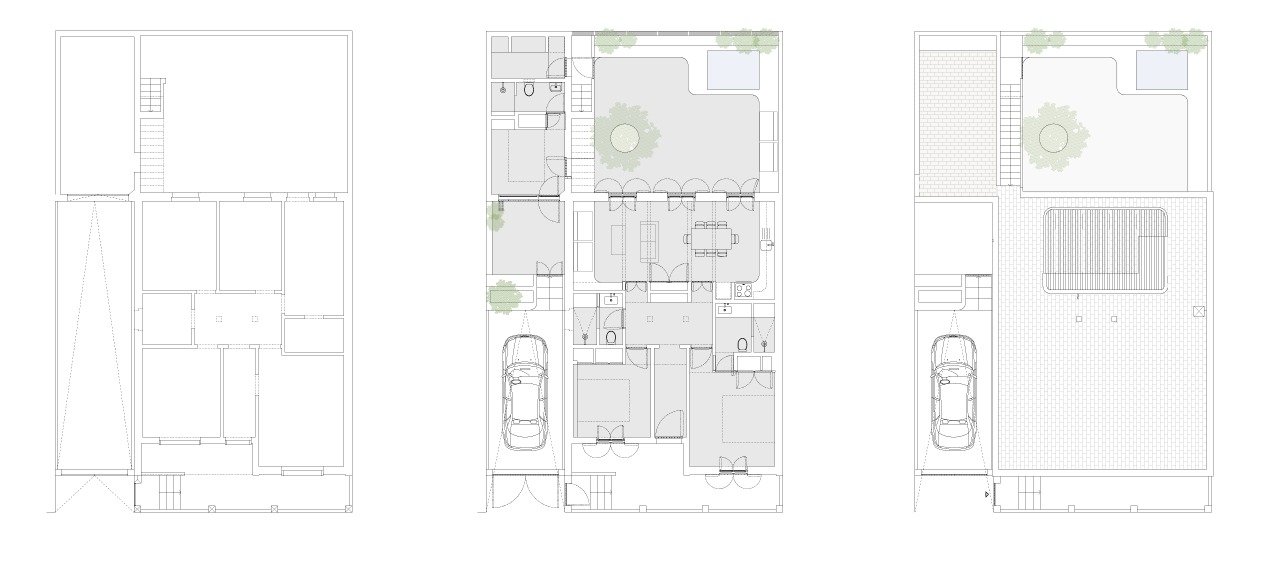
Las alteraciones a las que ha sido sometido y la falta de mantenimiento durante su vida han provocado la pérdida de su identidad y patologías constructivas evidentes, principalmente a nivel del tejado. Originalmente constaba de tres dormitorios, una cocina, un pequeño salón y un garaje.

A pesar de los cambios tipológicos requeridos por el nuevo uso, el objetivo principal era mantener la naturaleza y sencillez características de este tipo de construcción, tanto en lo que se refiere a los materiales y su aplicación, como a la distribución interior.
Debido al clima en el que se encuentra, la ventilación y la luz natural fueron elementos estructurales en este proyecto, en el que las aberturas sobre las puertas permiten ahora una permeabilidad constante y una ventilación cruzada entre los espacios. Las puertas proporcionan privacidad y esas aberturas continuidad. El juego permanente de planos horizontales/verticales de mampostería construye tanto estos elementos como todos los armarios, la cocina y los cuartos de baño.


La reorganización del espacio interior permitió la creación de una gran zona de estar y comedor que se relaciona directamente con el patio exterior, a través de ventanas transformadas en puertas, permitiendo una continuidad en su uso.
Se ha introducido un elemento de agua que sirve para pequeños baños o simplemente como elemento de frescor. El muro delimitador del patio se sustituyó por una estructura hueca de ladrillo macizo que ahora actúa como filtro permeable al exterior.
Una escalera conduce a las terrazas, donde la exposición al viento y al sol requirió la protección de un muro de mampostería y una estructura de sombreado, diseñados para favorecer un nuevo espacio de vida.

En el garaje contiguo se creó otra habitación con un pequeño patio adyacente, que por su ubicación puede utilizarse de forma independiente.
Se restauraron los materiales, los marcos de aluminio se sustituyeron por madera y las tejas artesanales se extienden ahora a ambos tejados. Las principales aberturas de la fachada se han abierto hasta el suelo, pero las contraventanas seccionales permiten abrirlas total o parcialmente, según la privacidad deseada.










































