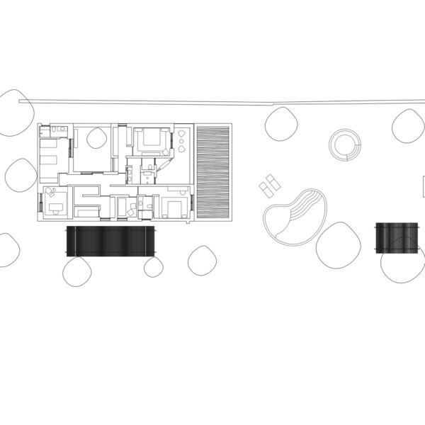
Localizada en un lote estándar con vista directa al canal, Casa Laranjeiras fue concebida a partir de la relación entre contención volumétrica y ligereza espacial. Con aproximadamente 450 m² y cuatro suites, el proyecto maneja un programa denso sin comprometer la fluidez o la luminosidad de los ambientes.
La fachada frontal es discreta: casi ciega hacia la calle, alberga solo una ventana de la oficina y una puerta camuflada detrás de la vegetación. La apertura de la casa ocurre a partir de sus ejes internos, hacia el patio central, donde destaca un olivo, y hacia el fondo del sitio, donde las habitaciones se orientan al canal. El patio actúa como regulador de luz y privacidad, permitiendo una vivencia introspectiva y aireada, protegida de los lotes vecinos.
La materialidad es uno de los puntos centrales del proyecto. La albañilería de piedra con pintura blanca crea una textura singular, inspirada en referencias mediterráneas traídas por el cliente
Esta superficie, al mismo tiempo sólida y luminosa, define el lenguaje de la casa. Un cinturón de hormigón blanco marca horizontalmente los dos niveles, en la losa intermedia y en la coronación de la cubierta, reforzando el rigor del diseño. El tejado a dos aguas cumple con los requisitos del condominio, regulado por el patrimonio histórico de Paraty, y se integra a la volumetría con naturalidad.
La paleta de materiales sigue tonos claros: suelos de cemento blanco, madera clara, tejidos naturales y muebles escandinavos seleccionados con precisión. El conjunto transmite ligereza y atmósfera playera, sin renunciar a la densidad formal del volumen construido. El proyecto equilibra robustez y transparencia, permanencia y apertura, en una casa orientada hacia el canal, pero también hacia sí misma.
Responsable: Arquitectura en Blanco – César Jiménez González. Finalidad: gestionar el envío de nuestra newsletter. Legitimación: tu consentimiento. Destinatarios: Brevo (plataforma de email marketing, acogida a las garantías adecuadas). Derechos: puedes acceder, rectificar y suprimir tus datos, así como otros derechos en este enlace. Más información en nuestra Política de Privacidad.

































