Ubicado en Belém, Lisboa, el edificio se orienta al norte hacia Travessa da Silva y al sur hacia un patio privado enclavado en el interior de la manzana.
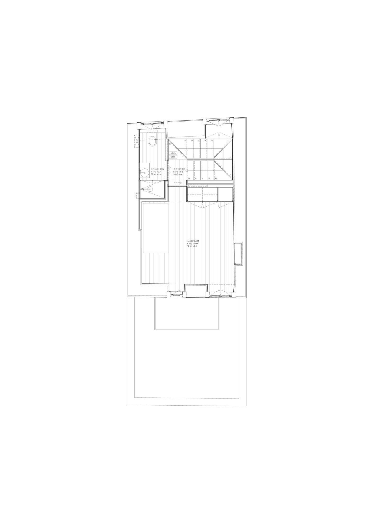
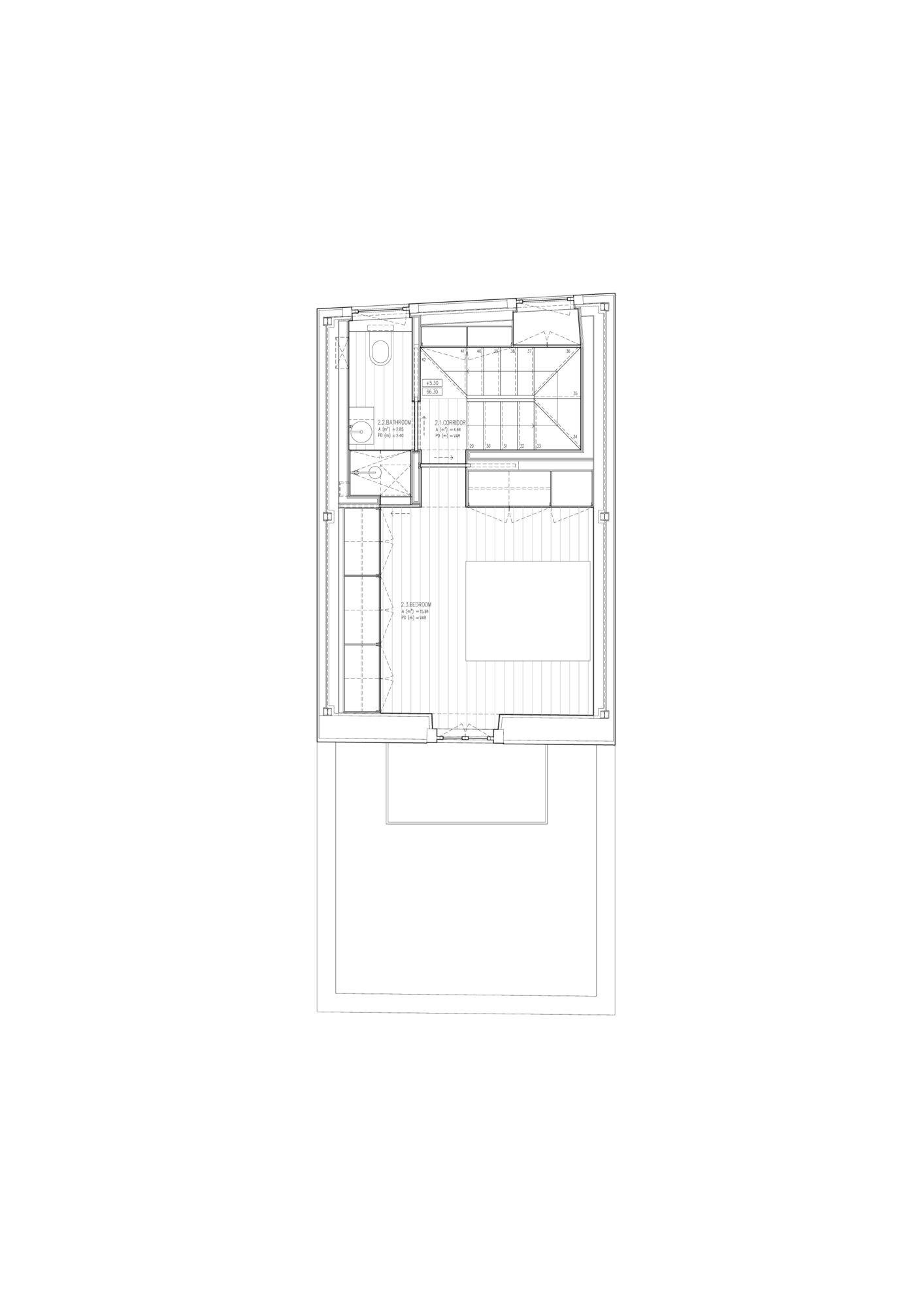
Con una superficie de tan solo 34 m² y 17 m² adicionales de patio exterior, las dimensiones compactas del proyecto exigieron una estrategia arquitectónica vertical que maximiza el uso del espacio en sus múltiples niveles.

La propuesta contempla la construcción de una casa vertical, donde cada planta está dedicada a una función específica, articulada mediante una escalera interior continua. En la planta sótano (-1), con acceso directo al patio, se encuentran la cocina y el comedor. La entrada principal se encuentra en la planta baja (0), a la que se accede a través de una antecámara que da paso al salón.




Las plantas superiores (plantas 1 y 2) se reservan para las zonas privadas de la casa, compuestas por dos dormitorios y dos baños.
La escalera se sitúa a lo largo de la fachada principal, alineada con un hueco existente que se transformará en un patio de luz, reforzando la experiencia vertical del interior y potenciando la iluminación natural.

Constructivamente, el proyecto conserva los muros exteriores existentes, mientras que la planta adicional de la fachada principal se construye con una estructura metálica ligera y forjados de vigas de madera.
La casa presenta un volumen claro y reconocible, con fachadas que expresan la presencia de las aberturas existentes y restauradas en contraste con las nuevas introducidas.





































