Este edificio plurifamiliar de 9 viviendas se divide volumétricamente en 2 unidades separadas por un núcleo exterior cubierto, que responden a la escala del entorno construido en el casco urbano de Es Migjorn Gran.
Uno de los volúmenes se encuentra en la zona norte de la parcela, en la esquina de la Avenida Bini-cudrell y Sa Travessera Nova, y alberga 6 de las viviendas del proyecto. El otro, al sur de la parcela, cuenta con 3 viviendas y se encuentra entre Sa Travessera Nova y el patio interior de manzana.

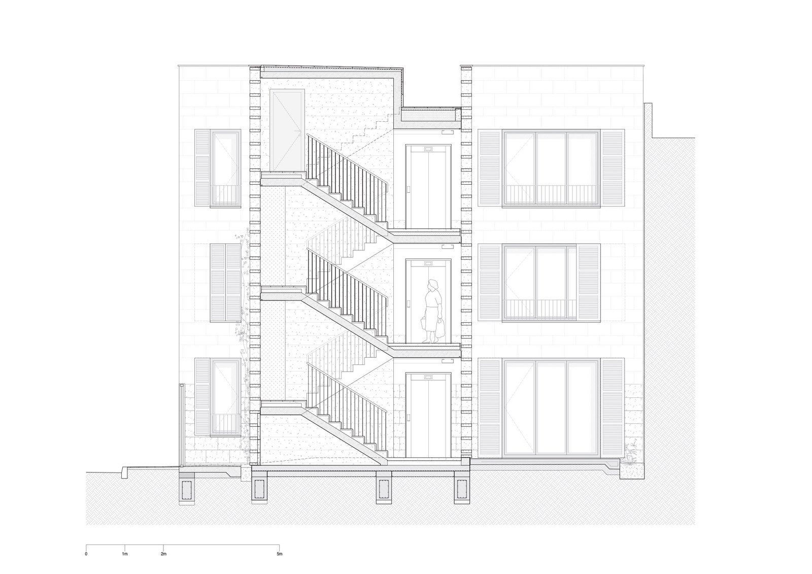
Un espacio intersticial semi exterior entre estas dos entidades contiene el acceso al edificio, la escalera, el ascensor y las entradas a las viviendas. Este espacio, refugiado de la lluvia pero ventilado a través de una celosía, facilita el aprovechamiento de los vientos favorables existentes para generar una circulación permanente de aire entre la calle y el patio interior, permitiendo la ventilación cruzada de las estancias que colindan con él.
Las viviendas se organizan en su interior a partir de espacios de medidas similares que se relacionan entre ellos minimizando la existencia de distribuidores, con el objetivo de aprovechar al máximo la superficie útil de la obra. Esta uniformidad en el módulo funcional favorece una mayor polivalencia de estas estancias y permite que se adapten fácilmente a las necesidades cambiantes de los usuarios.



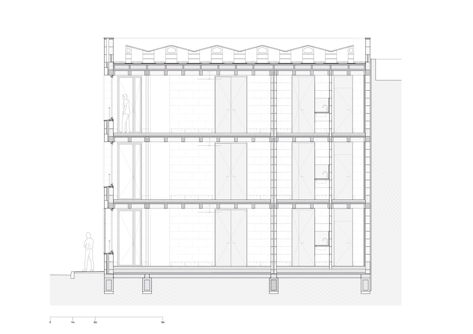
Todas las viviendas (seis de dos dormitorios y tres de un dormitorio) cuentan con doble orientación, a calle y al patio interior ajardinado, con la finalidad de facilitar la ventilación cruzada y el máximo aprovechamiento de las condiciones climáticas del emplazamiento (asoleo, vientos predominantes…). Se intenta minimizar así el gasto energético en la fase de uso del edificio y maximizar el confort bioclimático.
Durante la fase de proyecto se han realizado estudios ambientales para corroborar las estrategias bioclimáticas aplicadas y cuantificarlas de cara a la reducción de la demanda energética del edificio.

Como resultado, se incorporan soluciones como el refuerzo del aislamiento térmico, protección solar practicable a sur y a poniente o la óptima ventilación cruzada en todas las viviendas con el objetivo de reducir la demanda energética del edificio con medidas pasivas.
El patio interior jugará un papel importante es este aspecto, ya que albergará dos árboles y plantas con el objetivo de mejorar la calidad del aire y proteger la fachada interior del sol en verano. Esta reducción de demanda con medios pasivos se completa con la instalación de placas solares fotovoltaicas que, a su vez, generan un umbráculo ventilado y protegen la cubierta del edificio de los rayos solares en verano.
En lo relativo a la estructura, el edificio está formada por muros de piedra marés de 19cms de grosor dispuestos paralelamente a la Avenida Binicudrell y forjados prefabricados de viguetas de madera laminada y tablero microlaminado.

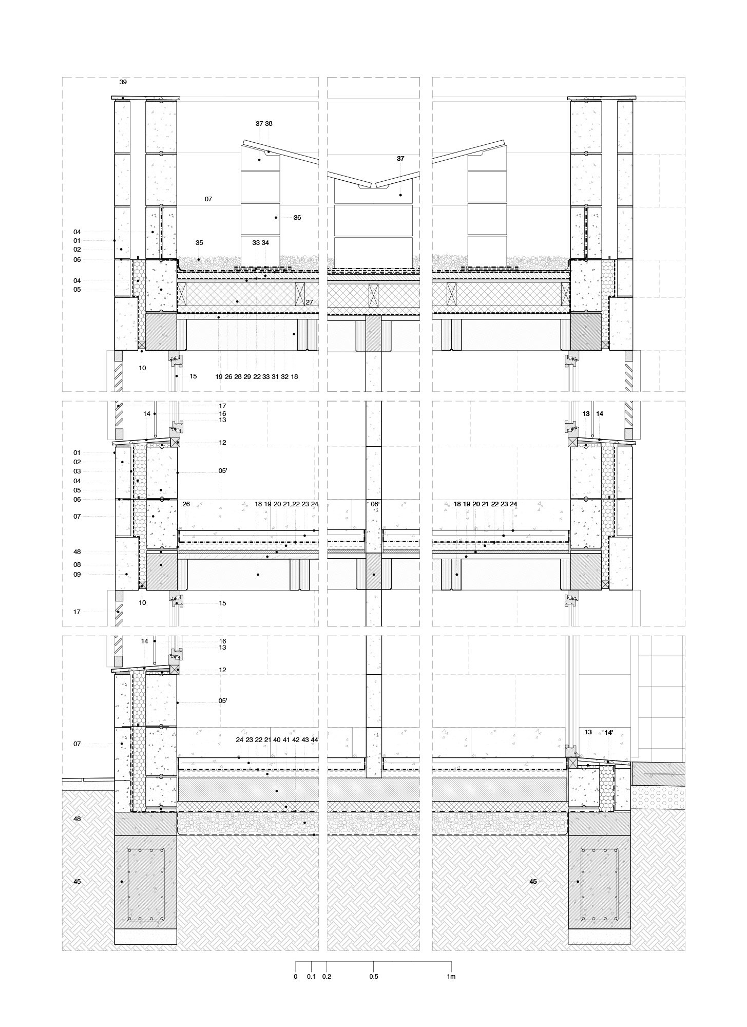
El sistema de cerramiento se compone de dos hojas de piedra marés (interior de 19cm y forro exterior de 9cm) con una cámara de aire y aislamiento térmico entre ellas. La colocación de la mampostería de piedra se está realizando mediante el método tradicional menorquín: presentado sobe cuñas de madera, primero se rejunta por el exterior con mortero de cal i después se vierte una lechada, igualmente de mortero de cal, muy líquida, que discurre por los canales verticales i horizontales mecanizados en las caras interiores de la piedra hasta rellenar toda la cavidad.
Por su parte, la cubierta será plana e invertida, con 20cm de aislamiento a base de algodón reciclado. Sobre esta cubierta, una instalación extensiva de paneles fotovoltaicos colocados a dos aguas con orientación este-oeste, actúa a su vez como protección solar ventilada.






























