La unión de dos pequeños apartamentos construye la oportunidad de ensayar estrategias de gradación de espacios domésticos, en un entorno urbano situado en un lugar de gran intensidad: la intersección del eje monárquico, eje Este-Oeste que conectaba los palacios de invierno y verano, y del eje moderno de la ciudad, que desde el Paseo del Prado se amplía hacia el Norte de la ciudad.

La intervención en este espacio construido se basa en el establecimiento de un conjunto de bandas de domesticidad diversificada, que van desde el espacio público del Paseo del Prado al espacio privado de la intimidad.
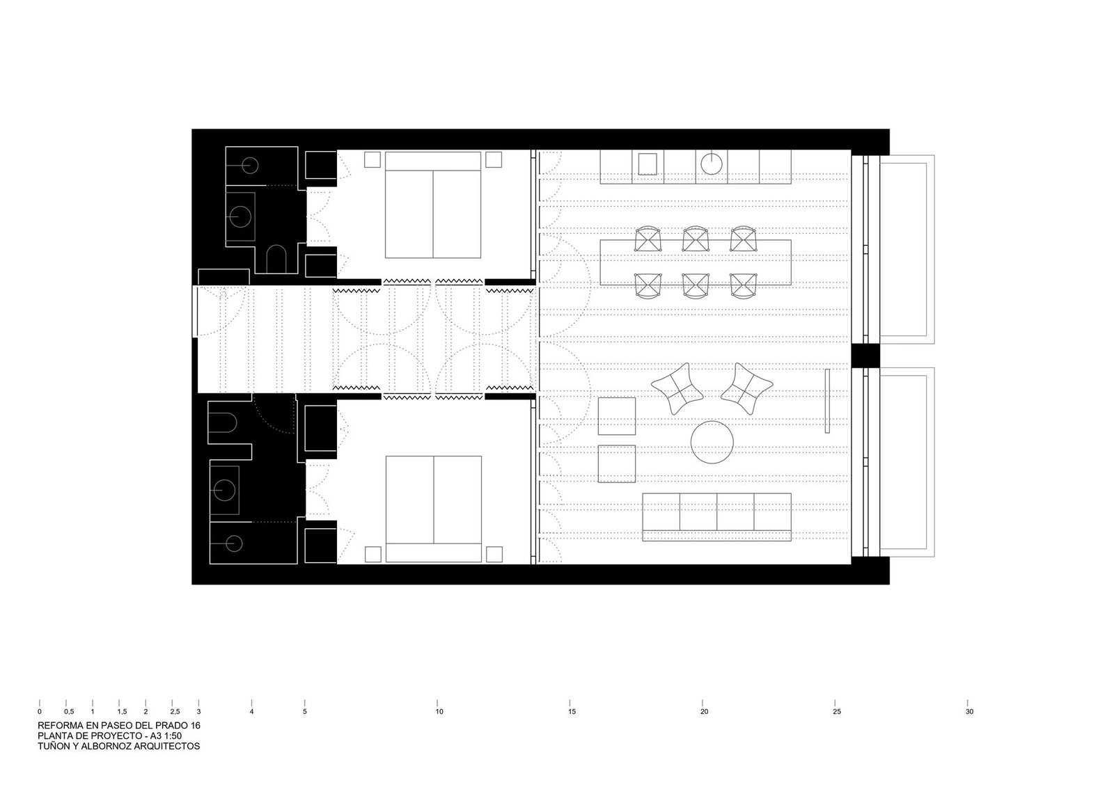
En la primera banda de este gradiente doméstico, quizás la más importante, se encuentra el espacio situado entre las copas de los grandes árboles del paseo y la fachada del edificio existente, un espacio público de cuya atmosfera en movimiento se apropia el apartamento resultante.




Entre el espacio exterior y el espacio interior, los estrechos balcones incorporan sendos filtros, por medio de un sistema de lamas motorizadas en el exterior y una cortina enrollable en el interior, para tratar de garantizar el control termodinámico y fenomenológico del espacio.
Tras ese espacio de transición se despliega el espacio compartido, en este caso un espacio no binario que permite usos inestables como son la estancia, la restauración y la celebración, todos ellos de forma individual o compartida.
Tras un sistema de triple filtro, formado esta vez por unos paneles de lamas pivotantes, una cortina traslúcida y un sistema de oscurecimiento total, se disponen las dos habitaciones en alcoba, como lugares individualizados para el descanso y el placer personal.

La secuencia de espacios y filtros finaliza con dos cuidados espacios para la higiene, uno construido en mármol blanco y el otro en mármol negro, expresión de dos formas de entender la vida de forma diferenciada.
El proyecto, en su complejidad, trata de construir una cabaña, para dos personas, tal vez dos niños, entre los árboles de la ciudad, una cabaña de madera con tantas capas como una cebolla, que se lleva a cabo en recuerdo de otros sencillos espacios rurales extremeños, traídos de una forma más elaborada a un interior de un edificio residencial urbano.





















