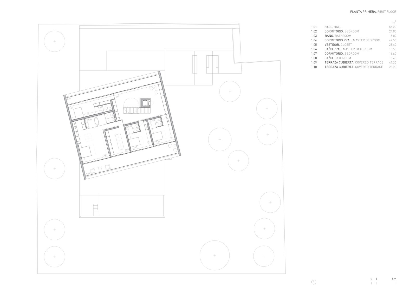
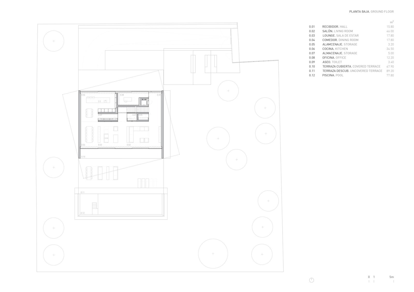
Villa Lavan es una vivienda compuesta por dos cuerpos pasantes de una planta, concebidos para dar una escala humana al conjunto. Estos volúmenes giran ligeramente entre sí, una estrategia que responde a tres motivos principales.
El primero es potenciar las vistas desde cada uno de los niveles de la vivienda: la planta baja, en la que se encuentran las zonas de día, se orienta hacia el jardín, mientras que la planta superior, en la que se disponen las zonas de noche, se abre hacia un lago próximo, visible únicamente desde esa altura.El segundo motivo es proporcionar espacios exteriores en sombra, fundamentales para protegerse del intenso sol de Madrid. El giro entre volúmenes genera terrazas cubiertas. El tercer motivo, quizás más subjetivo, pero igualmente relevante, es dotar de identidad a la vivienda. La inclinación entre los volúmenes genera sombras triangulares cambiantes a lo largo del día, aportando dinamismo.

Cada uno de los cuerpos se construye con dos lados estructurales sólidos, mientras que los otros dos quedan completamente abiertos, lo que facilita la orientación y la ventilación cruzada norte-sur. El núcleo de comunicaciones se dispone de forma transversal, dividiendo la parte posterior —más pública— por su relación con una vivienda vecina situada a una cota superior.





El giro de los volúmenes se expresa también en el lucernario circular de la planta superior, ejecutado con una sola pieza. En la planta sótano se encuentran el garaje y los espacios vinculados al bienestar y la salud, iluminados naturalmente mediante un lucernario, tal como establece la normativa urbanística de la zona.

Este proyecto ha sido concebido desde la idea de la transgeneracionalidad. Se busca crear una estructura espacial clara y duradera, un legado perceptible que pueda ser reinterpretado por distintas generaciones de habitantes, en función de las necesidades de cada momento. La vivienda busca mantenerse vigente técnica, funcional y estéticamente. Frente a la obsolescencia, se apuesta por la permanencia. En este sentido, construir con materiales naturales y muy duraderos puede añadir valor con el paso del tiempo. Es una forma de animar a que este espacio se cuide. Y lo que se cuida, permanece.



























































