Para apoyar el fuerte y continuo crecimiento del número de unidades de producto vendidas en los últimos años, el grupo farmacéutico Faes Farma decidió ampliar su capacidad industrial con la puesta en marcha de un proyecto de nueva planta de producción farmacéutica.
La nueva instalación se ubica en el Parque Científico y Tecnológico de Bizkaia, un entorno privilegiado en el que el grupo convivirá con otras empresas tecnológicas punteras. El Parque se encuentra en una localización estratégica junto al aeropuerto de Loiu y a escasos kilómetros de Bilbao.
La nueva planta, que se suma a la existente de Leioa, se ubica en una parcela de más de 50.000 metros cuadrados, tiene una superficie de 27.000 metros cuadrados en planta, con 60.000 metros cuadrados de superficie bruta, para fabricar más de 100 millones de unidades de medicamentos.

La ubicación de la nueva planta aparte de responder a cuestiones logísticas debía tener la superficie necesaria para acoger el programa necesario para cumplir con el objetivo de fabricar más de 100 millones de unidades de medicamentos.
La parcela elegida en el Parque Tecnológico es la suma de varias parcelas y tiene una superficie total de más de 50.000 metros cuadrados, con 400 metros de largo en el eje este oeste y 120 metros de ancho en el eje norte sur. Una de las características principales de la parcela es el gran desnivel que hay tanto en el eje este y oeste como en el eje norte sur, con diferencias de nivel de más de 20m.
La parcela se encuentra en el punto más alto del parque tecnológico, al final de un vial perpendicular a la parcela al que dan otras empresas. Este vial continúa por la parte sur de la parcela. El resto de la parcela limita con masas de árboles.
El programa de usos se divide en tres zonas distintas, una zona corresponde con la parte representativa de la nueva planta, con usos de oficinas, laboratorios, auditorio, comedor; la parte central es la zona de producción farmacéutica; y la tercera zona es la parte logística donde se encuentra un almacén robotizado y la zona de carga y descarga. El edificio también incluye un gran aparcamiento cubierto, zona de vestuarios y salas técnicas.




Se plantea una configuración del edificio ajustada a la parcela y a una compleja topografía con grandes desniveles, consiguiendo una importante carga simbólica, pero basada en la viabilidad y funcionalidad de la producción. Esto se traduce en un edificio compacto, escalonado, adaptado a la orografía de la parcela y a la servidumbre aeronáutica debido a la cercanía del aeropuerto.
Esta implantación consigue que, desde la aproximación en un punto lejano del vial, aparezca la imagen del edificio administrativo, aparentemente flotando sobre la entrada principal. Esto se traduce en un incremento de la representatividad y singularidad el edificio. Esta primera parte del edificio alberga la parte representativa de la nueva planta, con usos de oficinas, una planta de dirección, y más de 3000 metros cuadrados de laboratorio. Los diferentes espacios se configuran entorno a dos grandes patios que a su vez se conectan con el paisaje que rodea el edificio.
Además, las oficinas y laboratorios se ubican en una zona con vistas a un valle en el que no está previsto que se construyan edificios que repercutan en las vistas y singularidad de la edificación.

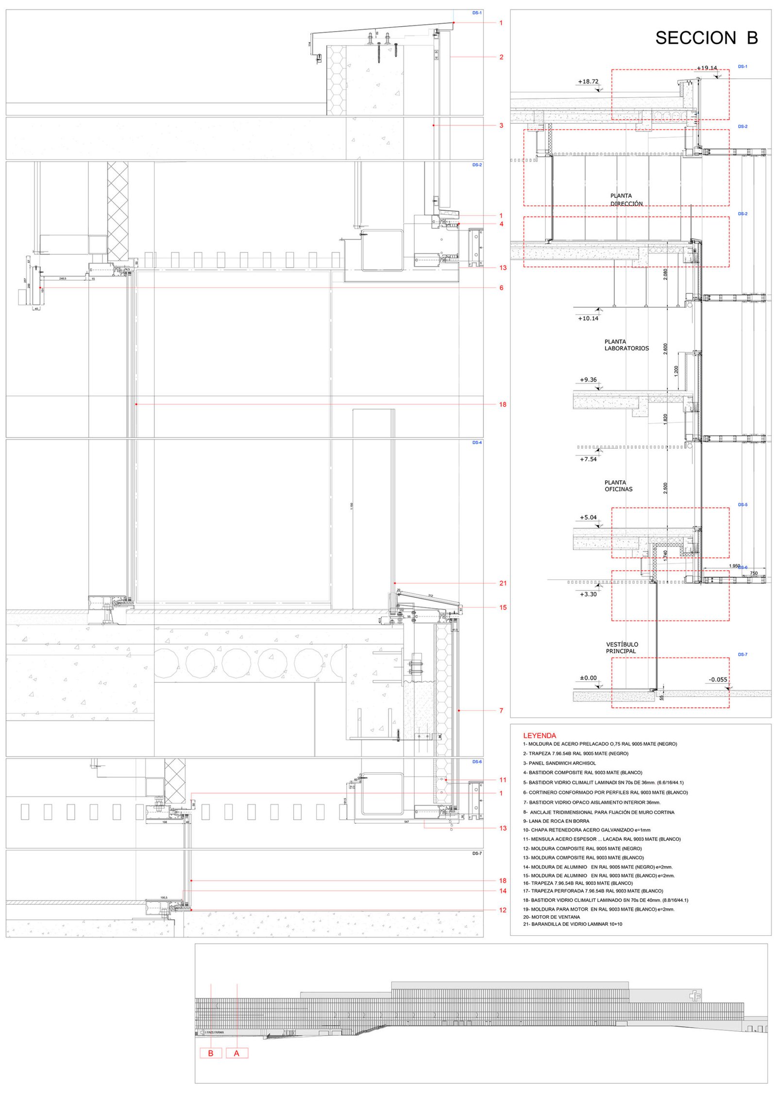
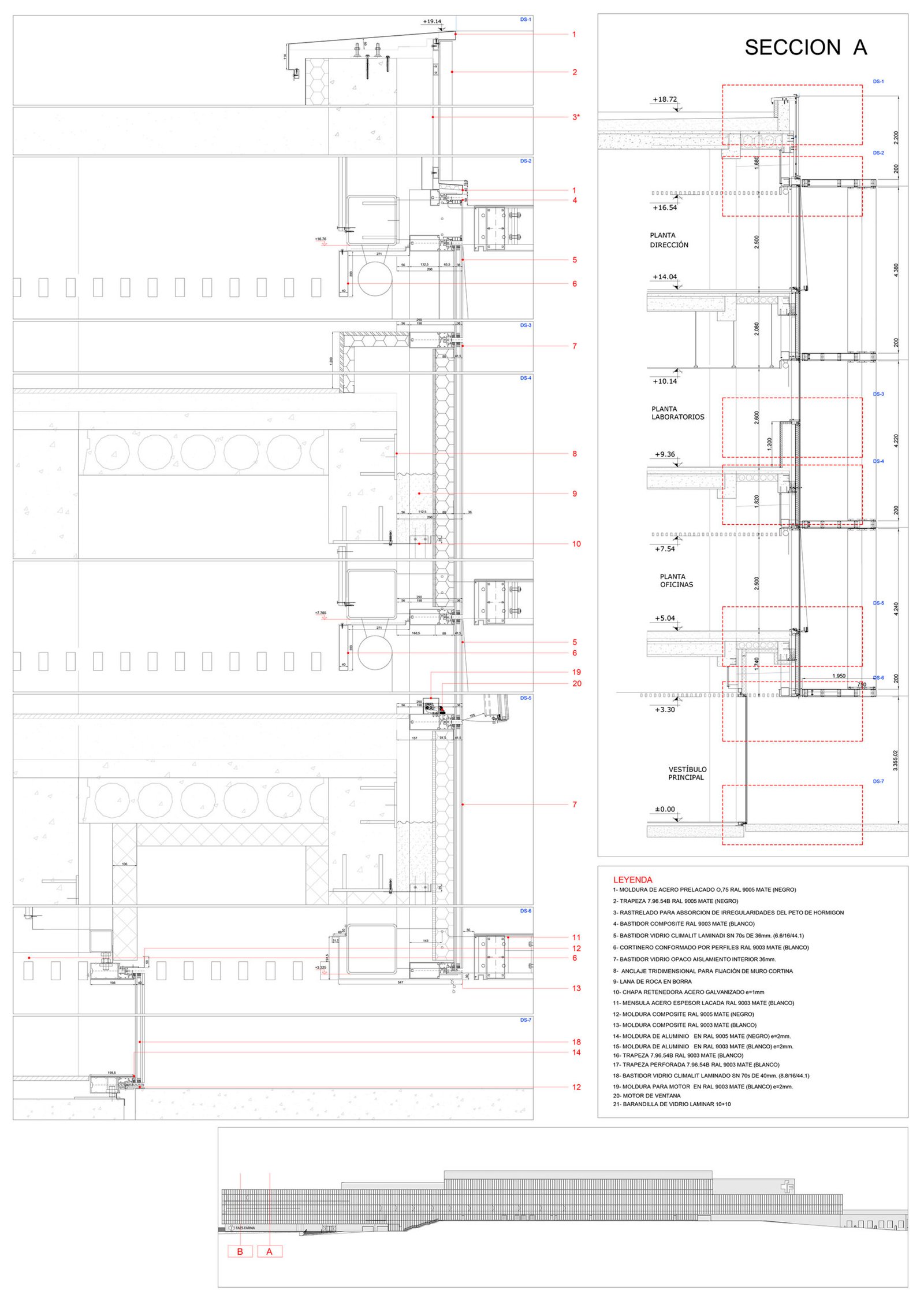
La funcionalidad de la producción se consigue con un sistema de producción en dos niveles, un nivel de producción de medicamentos sólidos y otro nivel de producción de medicamentos semisólidos y líquidos, ambos niveles conectados con una electrovía con el almacén robotizado de 12.800 posiciones y la zona de logística.
En la zona de producción también se incluye el aparcamiento cubierto y los distintos vestuarios en conexión directa con la planta de producción. El diseño de las salas blancas en las plantas de producción se ha hecho en base a las normas GMP (Good Manufacturing Practices), y se han incorporado amplias entreplantas técnicas para alojar todos los servicios necesarios. El edificio se completa con la zona logística, que incluye en almacén robotizado que consiste en un silo en el que se almacena tanto la materia prima como el producto acabado, y la zona de carga y descarga con 7 muelles de carga y descarga.

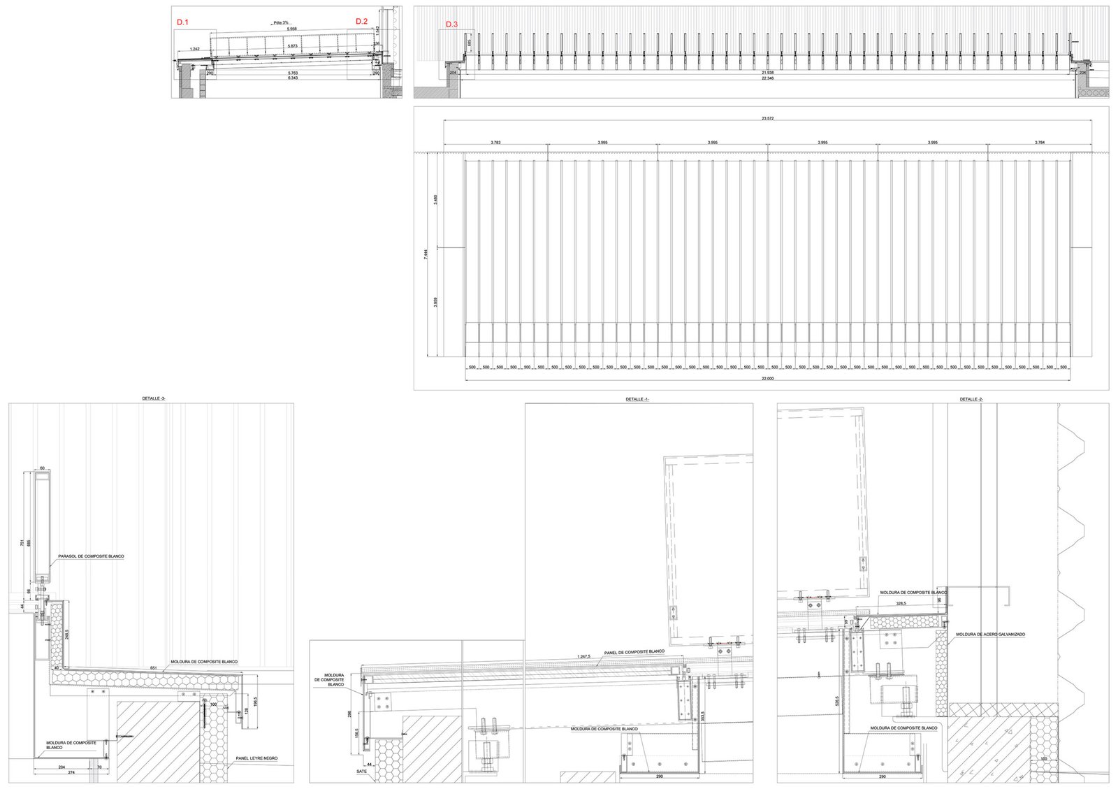
La imagen de la nueva planta de producción será también la nueva imagen de Faes Farma, y esto se verá reflejado en la fachada sur del edificio donde la fachada blanca obtiene su carácter abstracto gracias a los elementos de control solar que la configuran. La trama de lamas existentes en la fachada principal responde a las necesidades de control solar, buscando la protección de la radiación solar directa en verano y el control de la incidencia de los rayos solares a primera y última hora del día.
La fachada oeste que se proyecta como un plano continuo blanco perforado que evita la radiación directa de las últimas horas de la tarde coincidente con el momento de mayores cargas interiores.

Esa abstracción del edificio en su lenguaje formal resulta clave para aparentemente reducir el impacto volumétrico, puesto que se prescinde de elementos habituales de la escala humana y por lo tanto resulta complejo poner en contexto la totalidad del edificio.
La urbanización interior de la parcela está dividida entre las zonas pavimentadas y las zonas verdes. Las zonas pavimentadas rodean el edificio asegurando un acceso de mantenimiento en el perímetro de la parcela.
El edificio cuenta con la certificación LEED ORO, gracias a una serie de medidas entre las que destacan la protección solar de las fachadas el trabajo en la inercia térmica del edificio con la inclusión de una cubierta vegetal, y los sistemas de producción de energía sostenibles en forma de placas fotovoltaicas.




















































