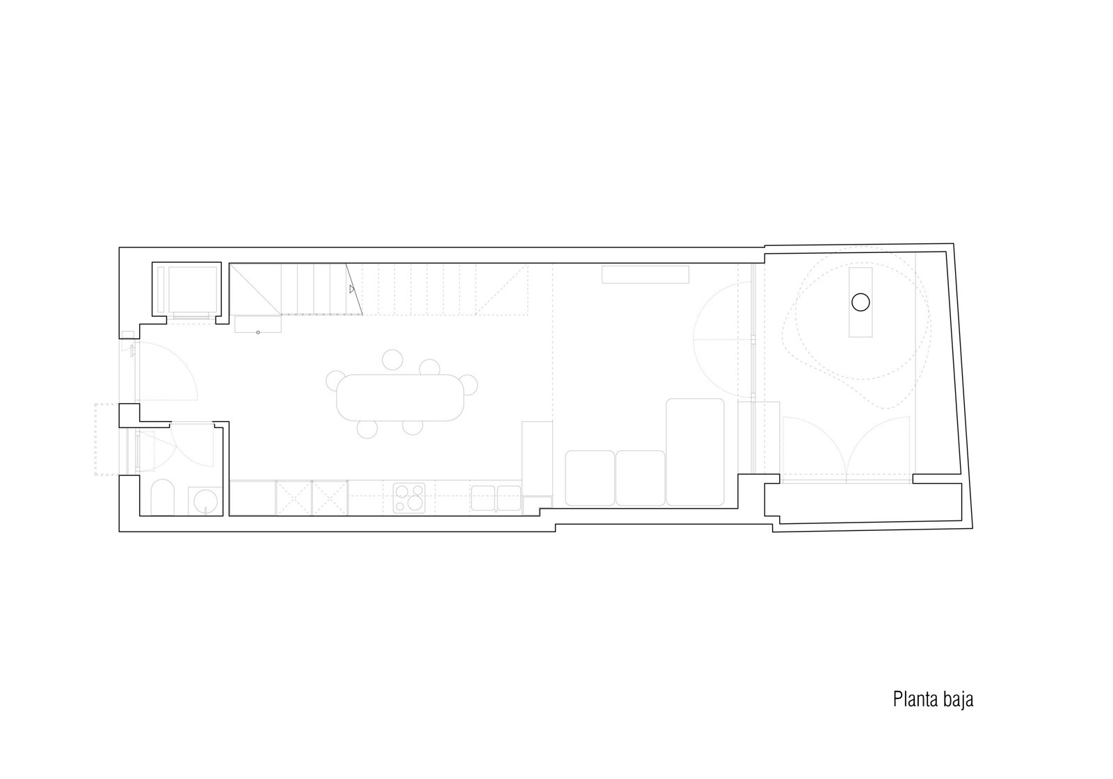
Un encargo especial, basado en el recuerdo del antiguo propietario. Tras numerosas conversaciones se decide finalmente demoler el inmueble existente para construir una vivienda adaptada al programa de la nueva familia.

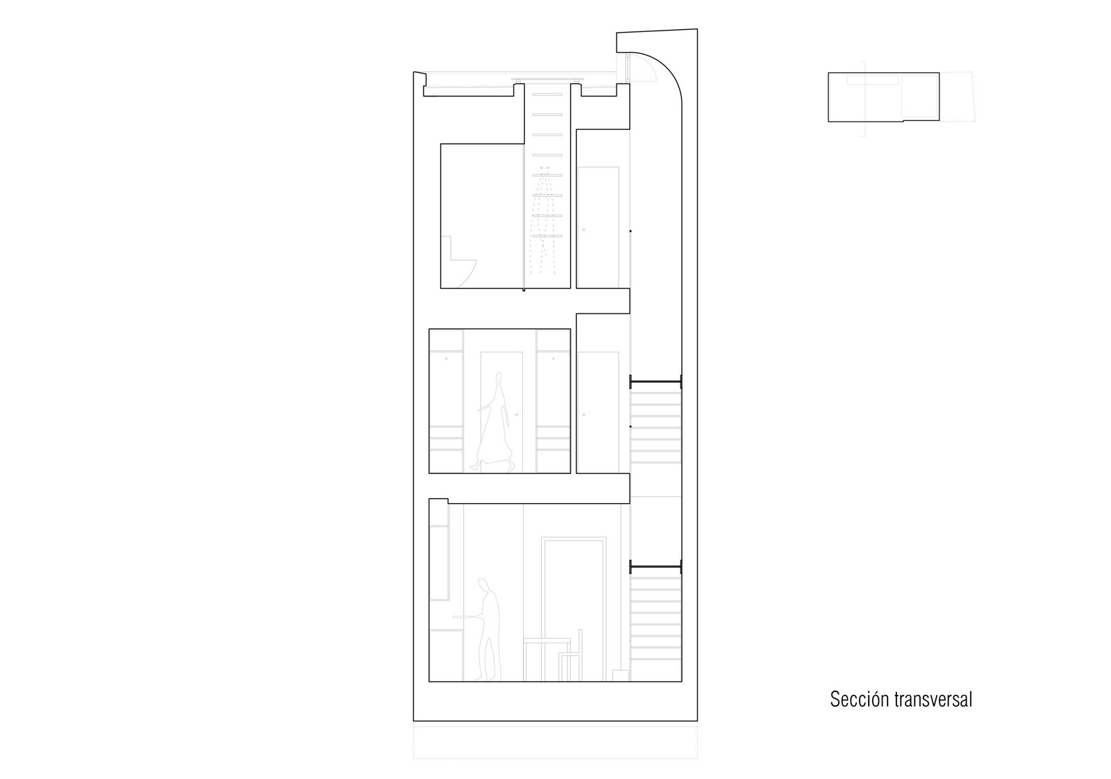
El proyecto respeta la esencia de lo que hubo, una casa en vertical que se asoma al patio de atrás. La escalera resuelta de manera liviana, queda anclada a la estructura a través de su zanca y de la barandilla. Esta última, trepa entre los huecos de la estructura, en busca de la luz cenital que entra por el lucernario que corona el espacio de la escalera.




Durante la fase de obra aparece un paisaje inesperado. Desde el forjado de cubierta, la Torre de la Vela de la Alhambra se distingue entre el skyline de Granada. Sin embargo, la normativa impide resolver este nivel como espacio accesible.

Ante esta limitación, se decide colocar un lucernario practicable sobre la ducha, permitiendo a sus habitantes escalar hasta la cubierta y descubrir, casi de manera furtiva, un punto de vista escondido de la ciudad.





































