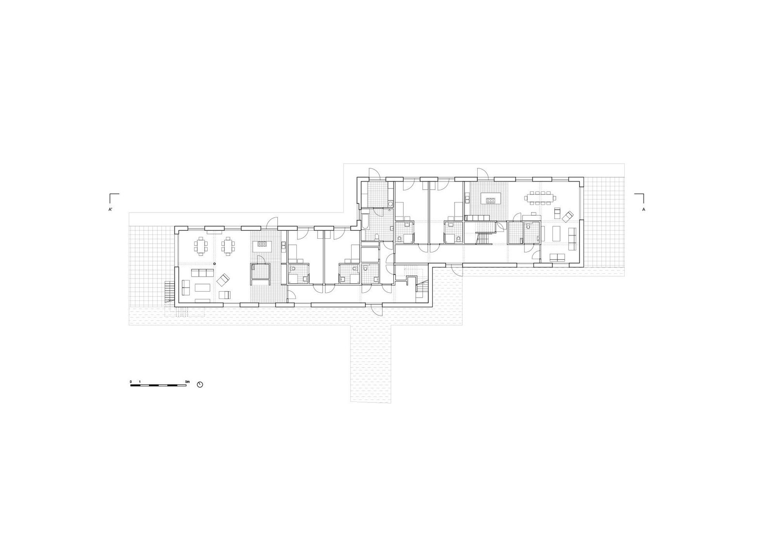
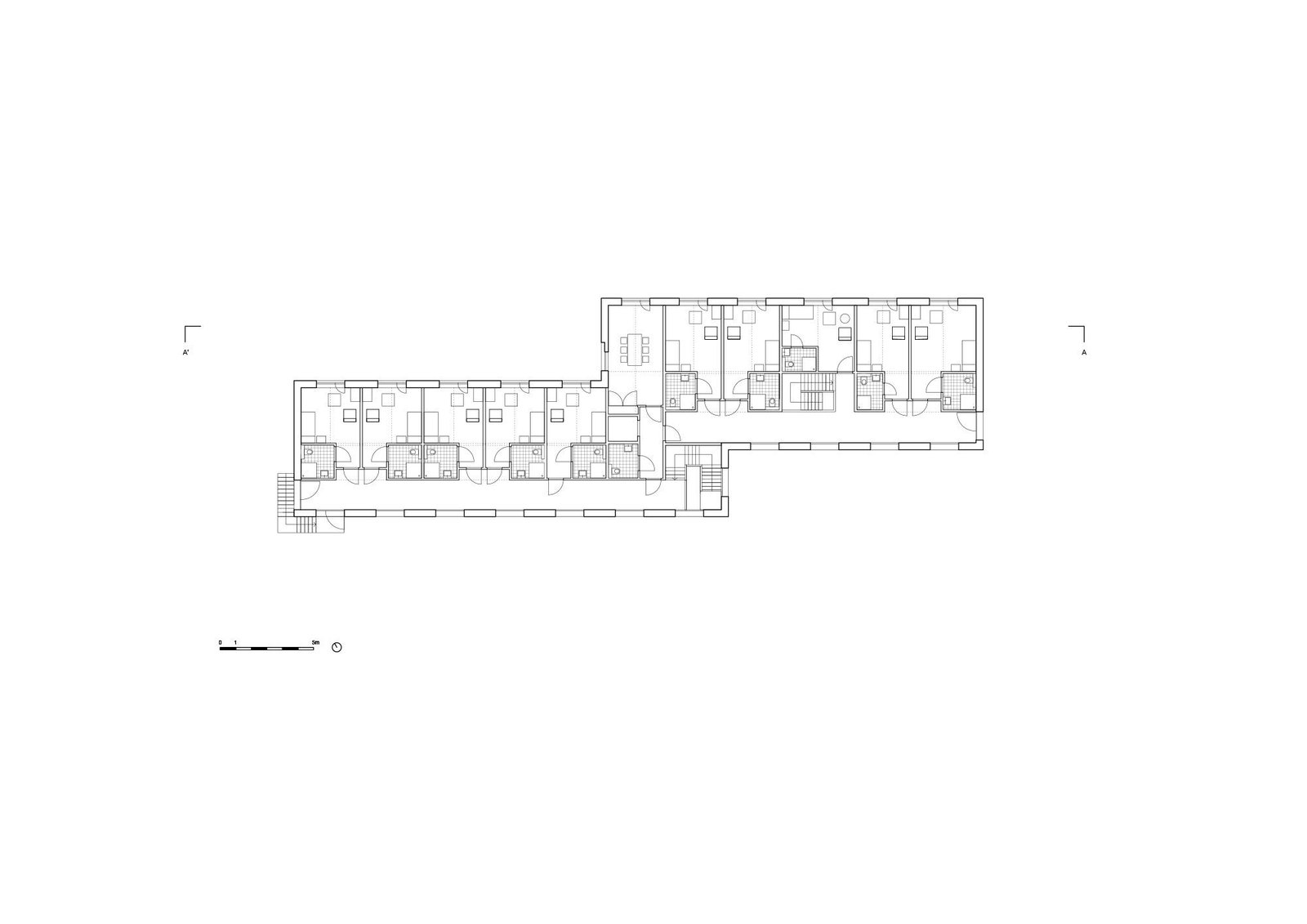
Una villa existente sirve de punto de partida para su transformación en una residencia para personas con problemas de salud mental. Despojada de todo lo superfluo, la casa pierde su tejado y sus acabados, revelando la lógica simple de sus paredes paralelas. Esta estructura se convierte en el marco de una nueva planta, donde un amplio pasillo conecta una serie de estudios independientes.
El mismo concepto se extiende a una nueva ala que alberga una segunda comunidad. Juntas, forman una residencia doble, cada una con capacidad para ocho habitantes bajo un mismo techo. El proyecto explora el delicado equilibrio entre el cuidado colectivo y la vida individual, una tensión constante en la arquitectura asistencial.

Hacia la calle, el edificio presenta una fachada uniforme. En la parte trasera, se despliega una serie rítmica de tejados a dos aguas, cada uno marcando la escala de una habitación privada. Esta repetición crea una interpretación por capas del edificio: un conjunto de pequeñas casas reunidas en un hogar colectivo.



Una sobria paleta de materiales en gris claro integra el edificio en su entorno verde. El ladrillo, la pizarra y la carpintería finamente detallada comparten la misma tonalidad suave, e incluso las canaletas y bajantes se funden con este espectro de colores apagados. El contraste sereno permite que la arquitectura se asiente en el paisaje, manteniendo al mismo tiempo una presencia clara y segura.

La forma sigue la misma disciplina serena. Amplias aberturas rítmicas enmarcan las vistas al jardín, mientras que la composición horizontal confiere al edificio un carácter sereno, casi solemne. Un sutil cambio en el plano de la fachada mantiene la familiaridad del volumen y ayuda a que el conjunto se integre de forma natural en el barrio de villas. El resultado es una casa apacible: de estructura clara, expresión mesurada y cuidadosamente diseñada para quienes la habitarán.





























