Como un volumen similar al de un puente de mando de un barco, asomándose al movido mar verde de los crecidos árboles de la zona, la casa blanca se construye optimizando al máximo las alineaciones oficiales de una pequeña parcela ubicada entre poderosos bloques de adosados en un barrio al noroeste de la ciudad de Madrid.
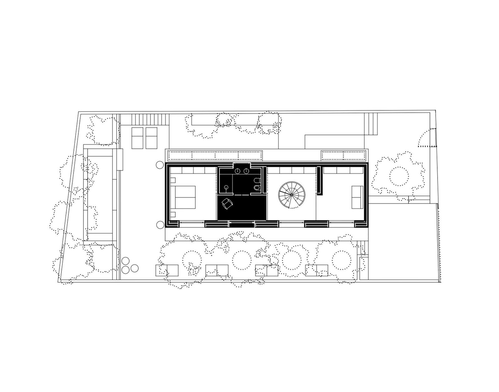
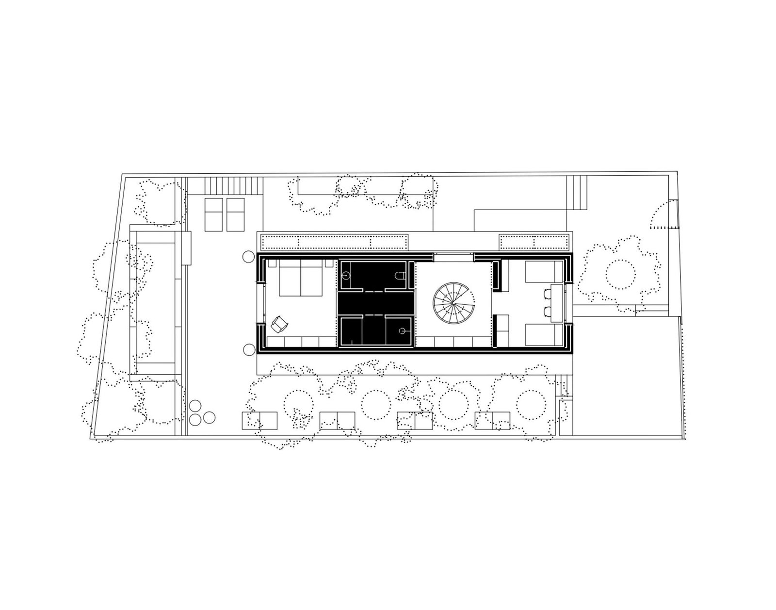
Cuatro cuadrados alineados en planta construye una estructura residencial abstracta, y flexible a la vez, que crece en altura por apilamiento de tres plantas iguales y diferentes ensartadas por una escalera metálica helicoidal. Las necesidades de la propiedad se han ido transformando con el paso del tiempo, mientras se realizaba diseño y se llevaba a cabo la construcción de la casa.

De este modo lo que en un principio eran espacios expectantes, capaces de acoger cualquier tipo de uso doméstico, han ido acogiendo diferentes usos, y diferentes nombres, de acuerdo a las necesidades de espacio cambiantes de una familia en crecimiento.




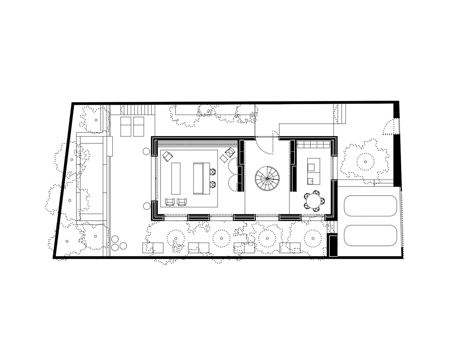
Los espacios de nombre cambiante se ubican en las plantas altas. Mientras que en la planta baja se ubican los espacios sociales: una cocina como lugar de encuentro y un amplio lugar de estar, con las puertas siempre abiertas a la familia y los amigos. También en esta planta baja se localiza un pequeño vestíbulo que disuelve sus límites con las estancias adyacentes, en el que la estructura helicoidal de la escalera cualifica el espacio, avanzando lo que ocurre arriba.
El acotado espacio entre la construcción y los límites del solar, se va transformando en cada cara para acoger funciones diversas, un ajustado espacio para el automóvil, un recorrido lineal de acceso, un espacio para reunirse junto a una alberca rodeada de vegetación, un recoleto lugar para comer entre una línea de árboles, etc.

Todos estos espacios perimetrales son colonizados visualmente desde el interior de las estancias de planta baja, dilatando su tamaño hasta los límites de la propiedad. Nunca tan poco espacio ha dado para tanto…































