La residencia Arthur es una casa de dos pisos para un carpintero y un médico de urgencias situada en el barrio de la Catedral de Regina.
Originarios de Sudáfrica, los propietarios anhelaban un santuario privado que ofreciera un amplio espacio para la jardinería e infundiera vistas inspiradoras en un modesto terreno de relleno de cuarenta pies. Donde los retranqueos de los patios laterales suelen dar lugar a un espacio no considerado o sobrante, la residencia está diseñada para abarcar todo el ancho del lote.

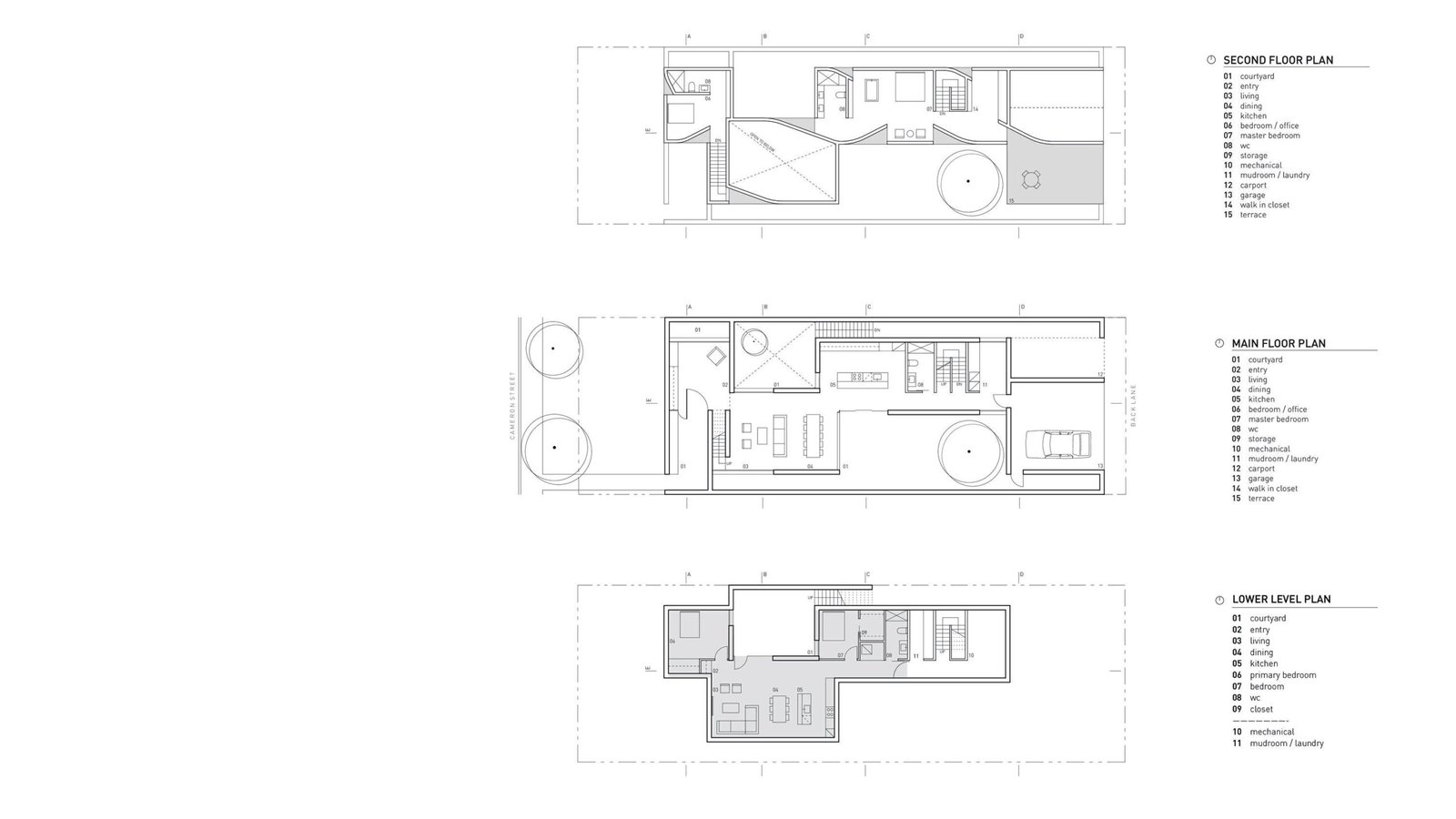
Concebida como un jardín secreto, la planta baja está rodeada por una valla de hormigón en el límite de la propiedad. Más allá del muro, cuatro patios (un patio de entrada, un patio hundido, un jardín principal y una cochera) definen tres espacios interiores: el vestíbulo, la sala de estar y el comedor combinados y el ala lineal de la cocina y el lavadero. La casa se divide verticalmente en sala de estar y dormitorio.




Mientras que el piso principal es una carcasa protectora perforada por las vistas al jardín interior, el segundo piso es un refugio aireado que ofrece vistas secretas y más discretas del vecindario y la copa de los árboles existente. Las paredes de yeso blanco se curvan hacia adentro como cortinas que se despliegan al compás de la brisa, lo que da lugar a huecos triangulares que permiten que la luz natural bañe suavemente el interior.

Estos dos territorios distintos –de solidez y ligereza, de actividad y reposo– se entrecruzan en la sala de estar y el comedor de doble altura. El yeso liso y contorneado reposa sobre el hormigón crudo colado in situ, lo que refuerza las cualidades táctiles y sensoriales del material, el espacio y la luz que forman la esencia de la casa, que es simple pero no estrictamente minimalista.

































