La Jara, prolongación del municipio de Sanlúcar de Barrameda a lo largo de la desembocadura del Guadalquivir, ha sido tradicionalmente lugar destinado al cultivo agrícola mediante la extinta técnica del navazo. Desde principios del siglo pasado, en la zona, atraídos por la benevolencia del clima sanluqueño, comienzan a construirse viviendas para su uso como segundas residencias.

Las parcelaciones cuentan con amplios espacios verdes y viviendas unifamiliares aisladas de una clara influencia en la arquitectura regionalista que, en todo caso, suelen buscar una relación directa a través del jardín con la playa, Doñana y la amalgama de colores de la puesta de sol en torno a la Punta del Malandar.
Los antiguos establos, durante una profunda reforma practicada en los últimos años del siglo XX, se transformaron en un pequeño pabellón para acoger durante unos días a amigos y familiares que venían de visita.




En esta nueva etapa, se rehabilitan las edificaciones existentes para su puesta en valor; siendo la casa de invitados la primera fase que ha servido como banco de pruebas en cuanto a soluciones de mejora de la eficiencia energética y ha sentado las bases para establecer una paleta de materiales que dialoguen con lo preexistente.

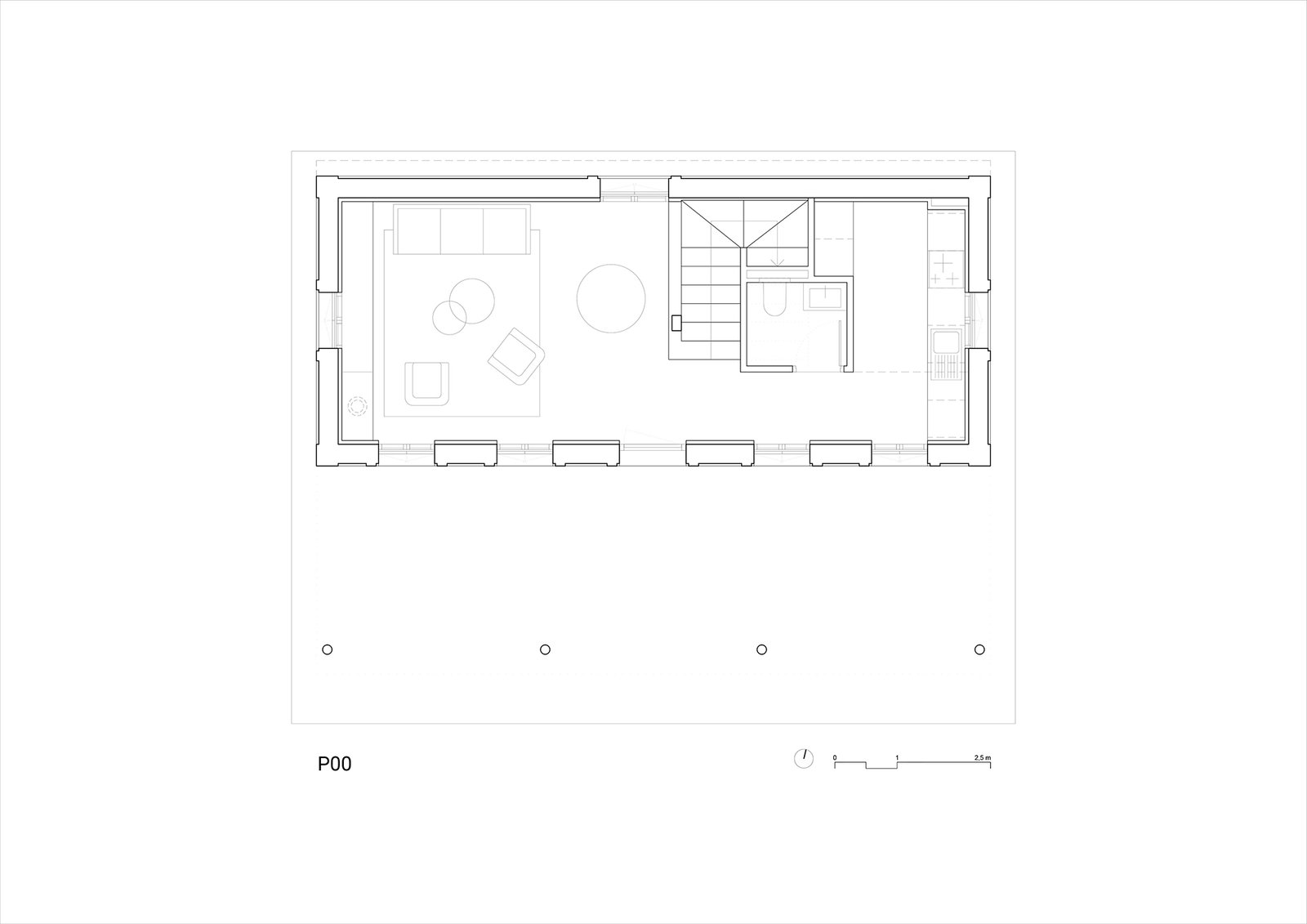
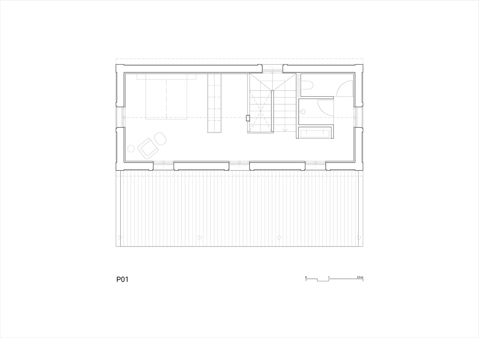
Se potencia la relación con el jardín, abriéndose los huecos de planta baja hacia el suelo. La piedra natural, la madera de roble y el lino se funden con el verde y el purpura de las buganvillas del entorno. Las reducidas dimensiones de la luz, que permite la cubierta de par y nudillo, hacen que se busque la fluidez en los recorridos en el interior de la vivienda. La escalera articula el espacio y sirve de eje sobre el que pivotan las estancias. En planta baja, el estar y la cocina se proyectan hacia el porche buscando generar espacios de encuentro; mientras que la planta alta se destina a los usos más privativos.























