Se trataba de un terreno extraordinariamente difícil, sin forma definida y topográficamente complejo: una colina rodeada por una carretera en su acceso principal, con la carretera pasando por un lado y por delante. Había otro acceso en el lado opuesto, a diferente altura. Por lo tanto, había que moldear ese terreno completamente inclinado.

Para ello fue clave la presencia de un edificio no muy bonito, aunque geométricamente muy preciso. Era el único elemento sólido de la zona. El edificio se levanta detrás de la colina donde está la iglesia, y, por tanto, al analizar la topografía, intenté referirme mucho a ese volumen, que es muy notorio, y me ubiqué en un ángulo recto. Ese fue el inicio de la simetría con la que ocupamos la colina.




Lo que considero más significativo de este proyecto
Lo que más impacto tiene, es el debate que existe actualmente sobre el espacio de la iglesia. (…) Las soluciones tendían hacia un anfiteatro. Creo que la cuestión dominante durante esa primera etapa de respuesta a las modificaciones del Concilio fue la consideración de la iglesia como un espacio.
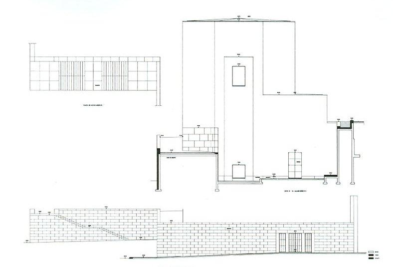
En cuanto al espacio del altar, he intentado observar —incluso asistiendo a misas— cómo se producen los movimientos en el altar. Son complejos y variados. El sacerdote se sitúa ahora de cara a la congregación —lo que es un cambio muy significativo después del Concilio— detrás del altar, una piedra en este caso, una gran losa maciza de mármol, pero se va moviendo: hacia el púlpito, hacia el sagrario, cuando entra o sale, etc. Hay tres asientos, uno central más dos más, y un banco detrás de ellos para otros posibles participantes en la misa, en la ceremonia. Hay una cruz más allá del sagrario y también una escultura; en este caso, hay una escultura que da nombre a la iglesia, Santa María. Estos movimientos funcionales son el punto de partida, y el objetivo es que no creen cierta confusión en la ceremonia. Hay una preparación de movimientos casi teatral.

En cuanto a la puerta, está claro que nosotros, como arquitectos, trabajamos mucho con todo lo que vemos en relación a un proyecto concreto, y con las referencias que tenemos: recuerdos, cosas que nos han impresionado, etc., todo el acumulado de ideas que viene de la historia de la arquitectura. La idea de esa puerta surgió, en mi caso particular, de una visita muy impresionante a Sicilia, a un santuario normando cerca de Palermo con una puerta enorme. Cuando llegué, la puerta estaba abierta y había un maravilloso y enorme Cristo Pantocrator al fondo en un mosaico dorado… una cosa resplandeciente. Por eso esta iglesia tiene una puerta tan grande. Sin embargo, como siempre ocurre en arquitectura, hay muchas otras razones. Algunas de ellas no las conocemos, porque están en nuestro subconsciente y sólo surgen cuando resolvemos un problema.

Una de las razones aquí es que tengo una sección cuadrada: el ancho de la iglesia es igual a su altura. No teníamos suficiente dinero para construir una catedral, pero, para mí, la imagen de una iglesia comprendía cierta verticalidad. Por ello, se añadieron ciertos elementos para conseguir acentuar esa sensación de verticalidad. El gran portón es uno de ellos; los otros son las curvas que se encuentran detrás del lugar de celebración; ambas curvas esculpen visualmente la parte trasera de la iglesia en tres partes, lo que, como resultado, ofrece cierta sensación de verticalidad. El otro es que la luz viene principalmente desde arriba, de las ventanas orientadas al norte; son altas, por lo que la luz desciende verticalmente. Su contrapartida es una abertura baja a la altura de la vista cuando uno se pone de pie; cuando se sienta, las vistas al valle desaparecen: solo se ve el cielo. Es una ventana horizontal muy baja que también contribuye —junto con la verticalidad de las otras líneas de composición— a la idea de un edificio muy alto.
Fragmento de una entrevista a Álvaro Siza sobre la Iglesia de Santa María
Esteban Fernández Cobián







































































