Diseñar en urbanizaciones suburbanas plantea un desafío urbanístico importante, dado que su trazado rara vez responde a intenciones estratégicas para la ciudad. Esto limita su capacidad para consolidar características identitarias y urbanísticas, afectando tanto su rendimiento urbano como la calidad de vida.
Las construcciones resultantes suelen no establecer relaciones con su entorno ni crear lugares significativos, careciendo de una estructura orgánica que caracteriza a los tejidos urbanos consolidados.

El Edificio Aurora 10 busca superar estas limitaciones al reinterpretar el diseño de la parcela para responder a las características del entorno y sus necesidades. El edificio establece continuidades y relaciones más ricas con el entorno, y participa activamente en el espacio público. Su fachada, a través de un juego delicado de luz y sombra, introduce una contradicción entre los paneles verticales y los balcones horizontales, evocando los ritmos urbanos característicos de los centros consolidados.




El espacio público en los suburbios ha sido históricamente el área sobrante entre edificios dispersos, lo que ha generado una ciudad poco cualificada. Este proyecto busca cambiar esa dinámica, proponiendo un edificio que cualifique el espacio urbano y actúe en los espacios de transición entre el dominio público y privado.
Además, se extiende hacia una galería comercial cubierta y un acceso que sirve como escalera y auditorio, creando un espacio de descanso y reunión en la vía pública.

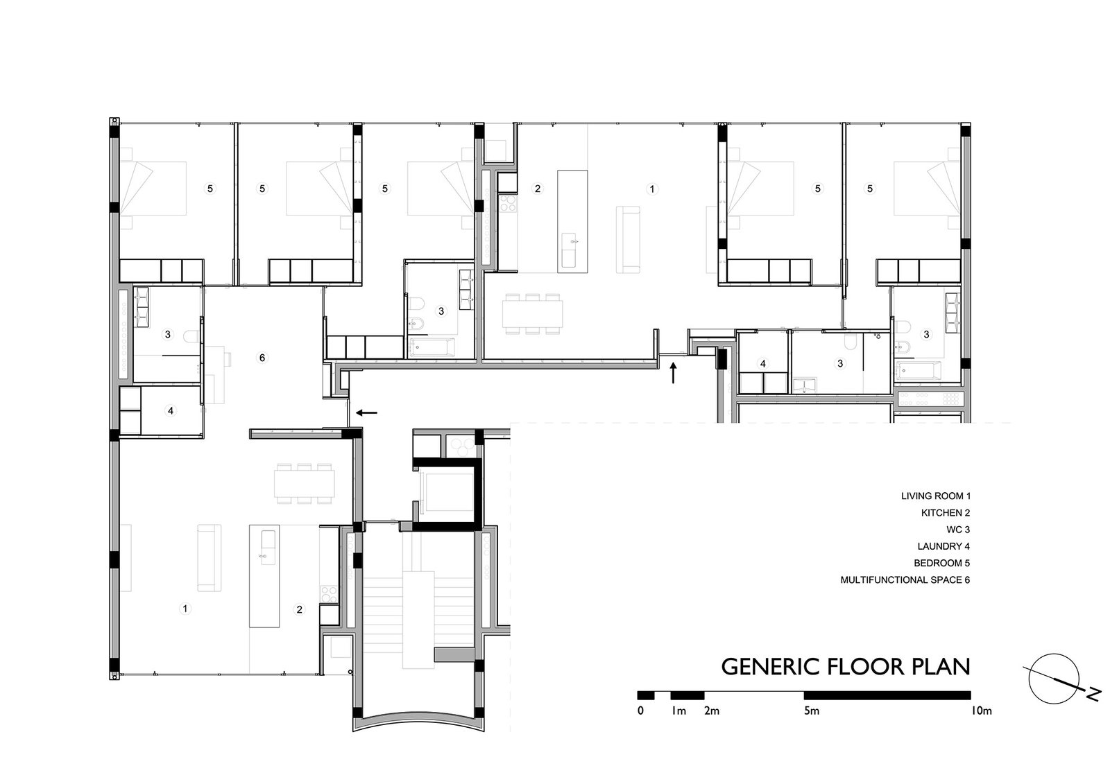
El diseño interior del edificio se caracteriza por una planta sistematizada y eficiente, maximizando el espacio útil. Los apartamentos de tres dormitorios incluyen un espacio adicional flexible, que puede ser utilizado de diversas maneras, promoviendo una mejor calidad de vida.
Los materiales elegidos, como maderas nacionales y mármol, refuerzan la dignidad de los espacios comunes, mientras que la fachada de vidrio permite vistas panorámicas sin sacrificar privacidad ni eficiencia energética. En conjunto, el proyecto busca integrar el edificio con la calle, ofreciendo un diseño que trasciende lo funcional y contribuye a la urbanidad del entorno.




















































