El proyecto consiste en la remodelación de una residencia en Vila Romana, un barrio ubicado en la zona oeste de São Paulo. Construida en la década de 1950, la casa tiene tres pisos en un terreno con pendiente, con el acceso principal en el nivel intermedio y una vista en la fachada trasera hacia el valle del arroyo Tiburtino.
Debido al estado de conservación y a las modificaciones acumuladas a lo largo de los años, era necesaria una reforma significativa. Implementar una arquitectura sin ostentación, característica de Canoa Arquitectura, se alineó con las restricciones presupuestarias de una obra de alcance ampliado. La intervención se basó en tres aspectos principales.

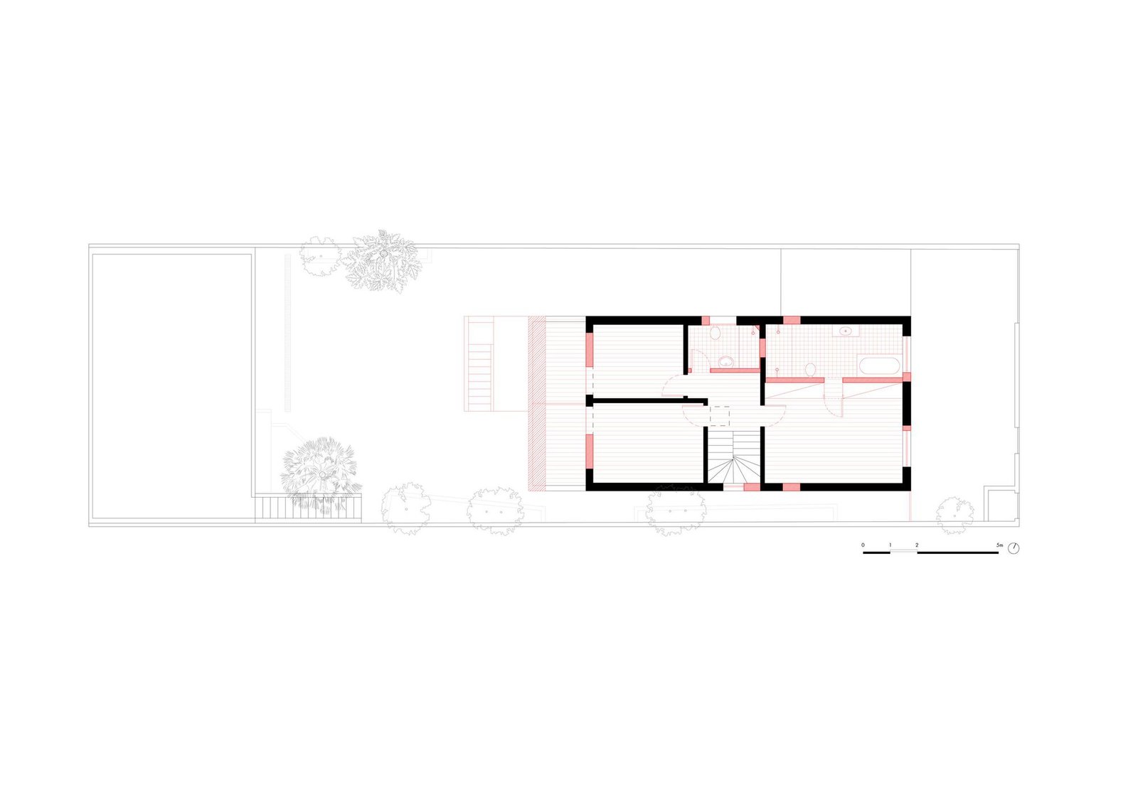
Estructura y redistribución del programa – Para que la estructura de la casa pudiera ser reutilizada y valorada, comprenderla fue fundamental, lo que reforzó la necesidad de la actividad proyectual hasta el final de la obra. Se trataba de una construcción de mampostería portante de ladrillos macizos y losas reticuladas con bovedillas cerámicas, en la cual la apertura de nuevos vanos tenía que hacerse con el máximo cuidado. La planta original estaba conformada por cuadrantes bien marcados, que determinaban el sentido de armado de las losas y estaban divididos por un septo central, correspondiente a la escalera y los baños. Intervenciones posteriores, sin embargo, desconfiguraron esta disposición.

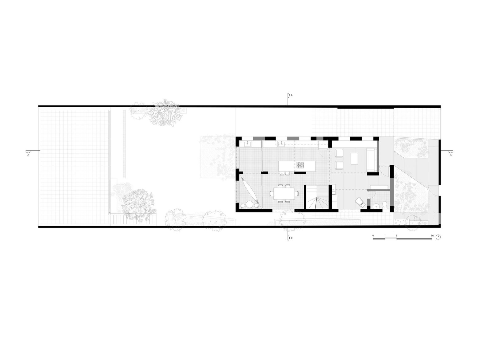
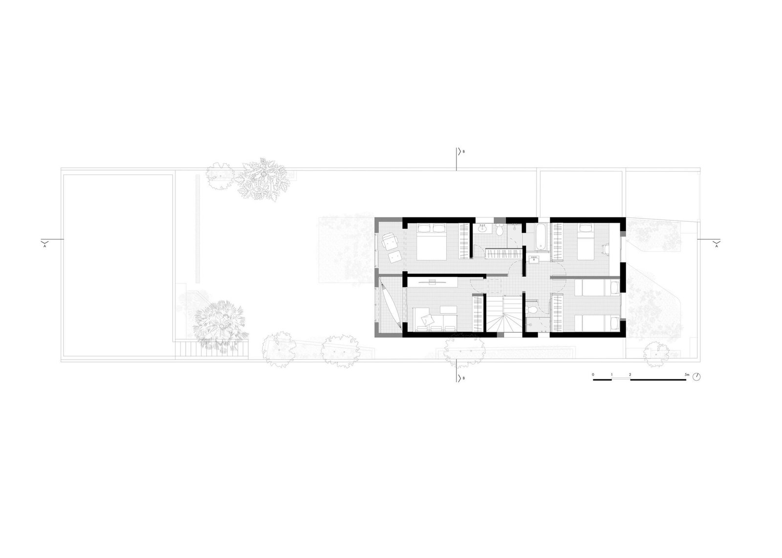
La asignación del programa partió de este entendimiento: en el piso superior, que albergaba las áreas íntimas, se acomodaron cuatro dormitorios, separados por una franja central de circulación y sanitarios. El piso térreo recibió las áreas de uso común y convivencia: sala de estar, biblioteca, cocina y comedor, donde se deseaba la máxima integración.
Para permitir la demolición de paredes internas, se usaron refuerzos metálicos de sencilla ejecución y bajo costo, posicionados estratégicamente para distribuir las cargas sobre las mamposterías existentes. Finalmente, se creó un nuevo tramo de escalera para garantizar un acceso interno cómodo al piso inferior, utilizado como espacio de trabajo, aprovechando el vacío bajo la escalera existente.




Aberturas – Se planificaron nuevas aberturas en dos tipologías principales: 1x1m y 1,90m de ancho desde el piso hasta el techo, para optimizar procesos y reducir costos. Esto también facilitó los alineamientos entre pisos, asegurando la adecuada distribución de cargas estructurales sobre las paredes perimetrales.
Al mismo tiempo que se adaptó a la incidencia solar, el diseño de las nuevas aberturas buscó establecer relaciones distintas con el entorno: mayor privacidad respecto a la calle; disfrute de la vista del valle al fondo y de una vegetación más densa en uno de los laterales; y encuadres cuidadosamente elegidos donde hay una mayor interacción con la edificación vecina.
La creación de balcones en la fachada oeste contribuyó tanto al control solar como al disfrute del paisaje del valle. Como cierres, se utilizaron carpinterías de aluminio con hojas móviles de dimensiones convencionales y, para aberturas más grandes, vidrios fijos en perfiles simples.

Acabados – La elección de los acabados reflejó la investigación del proyecto por lo esencial, trabajando con materias primas de bajo costo y fácil ejecución, productos convencionales de mercado que expresaran la verdad de esos materiales, es decir, desprovistos de capas de revestimiento que fueran dispensables.
Se utilizaron pisos de mortero alisado o cerámica natural, pintura o cal sobre revoque, carpintería en contrachapado naval aparente, luminarias montadas con perfiles de chapa galvanizada y lámparas vistas. Estas elecciones redujeron procedimientos y abarataron la obra, resultando en ambientes francos y acogedores.






















































