Ubicada cerca del Parque Barigui, un espacio público emblemático de Curitiba, en una zona caracterizada por lotes pequeños, una topografía escarpada y calles estrechas, la casa Plateia buscó, desde sus conceptos iniciales, integrar el horizonte al proyecto.
Por otro lado, sus habitantes anhelaban privacidad, una oficina bien iluminada integrada a la sala de estar, una cancha de tenis y muros a dos aguas para albergar sus colecciones, ya sea en estantes o en espacios para elementos decorativos adosados a las paredes. Estas incluían muñecas, miniaturas, grabados, fotografías, coches de juguete, casas de muñecas, pósteres, platos y más juguetes. Los objetos coleccionados, junto con las profesiones de la pareja —él fotógrafo y ella ilustradora reconocida por su trabajo en libros infantiles—, nos invitaron a explorar su aguda imaginación en el proyecto.

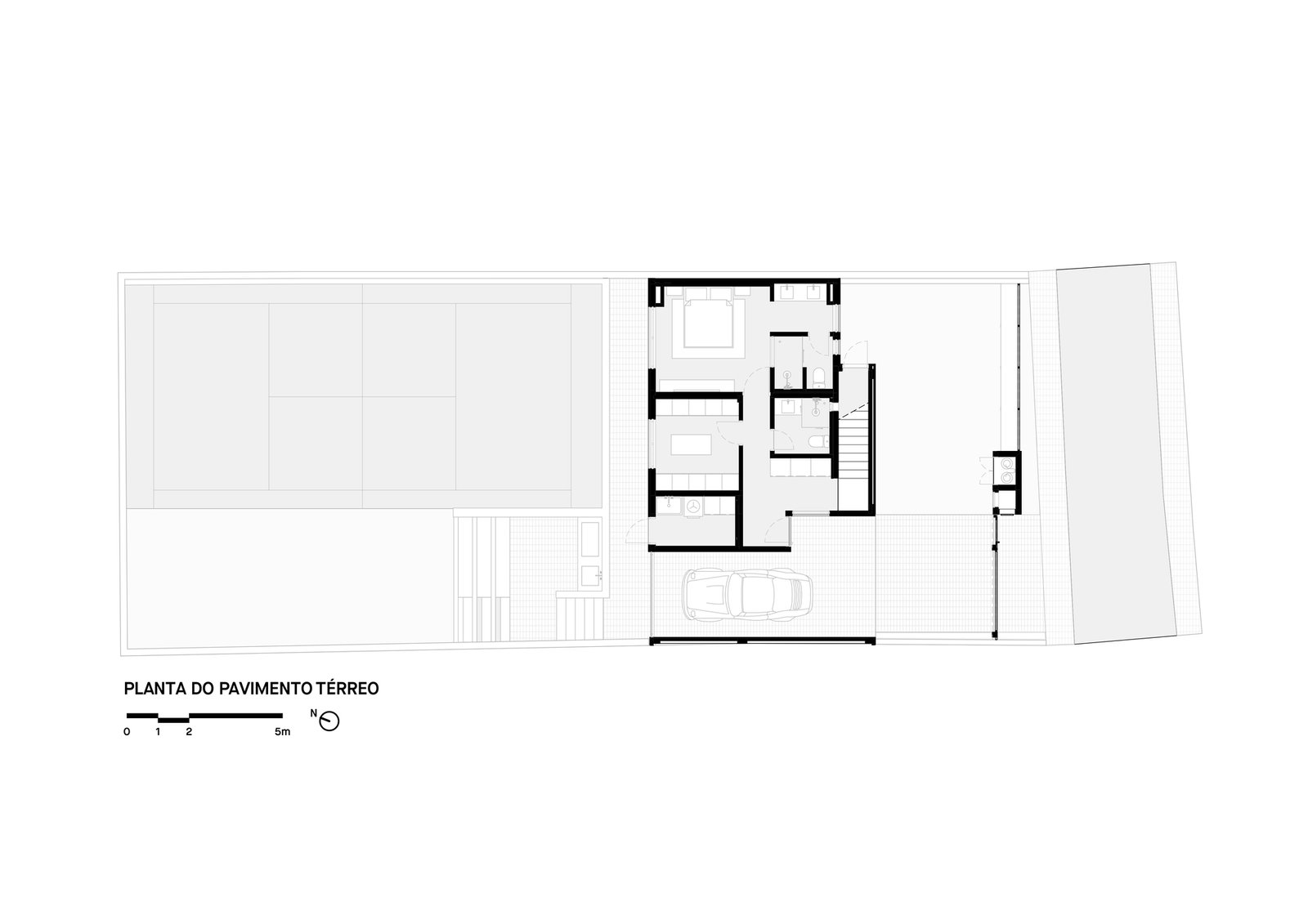
Considerando la pendiente del terreno y respetando la zona protegida de una araucaria, la zona deportiva se ubicó en la parte más baja, en la parte posterior de la propiedad, junto a un huerto y una huerta que se integra con la escalera que conecta la plataforma superior a nivel de calle. Para potenciar la conexión visual con el paisaje, el proyecto buscó invertir la lógica de distribución habitual en una vivienda de dos plantas: la zona privada, con sus dormitorios, se sitúa en la planta baja; mientras que la zona social se distribuye en un espacio abierto en la planta superior, convirtiéndola en el punto focal y ofreciendo vistas panorámicas.




La definición de la volumetría del proyecto consideró la posibilidad de utilizar hastiales ciegos adosados a los límites laterales. El punto de partida fue el arquetipo de una casa con cubierta a dos aguas, que, revestida de blanco, realza la composición.
Gracias a la pendiente de las losas, el espacio superior ganó altura, permitiendo la inserción de una buhardilla flotante que alberga el despacho, integrada espacialmente con las demás zonas sociales. Las perforaciones en el bloque constructivo se dispusieron a modo de marcos, enmarcando las vistas, armonizando con la decoración de la pareja y captando la luz solar de la fachada norte. En la fachada sur, que da a la calle, se proponen pocas aberturas organizadas, además de jardineras que garantizan la ventilación cruzada y la comunicación con la calle.

Aprovechando una de las pendientes del tejado, emerge una tribuna que funciona como mirador exterior. De esta forma lúdica, el proyecto evoca el imaginario colectivo de la icónica forma de la casa, a la vez que reorganiza su dinámica interna, transitando por niveles que se expanden e integran: desde el suelo, el huerto, hasta el cielo, el punto culminante de percepción e inspiración.



























































