El proyecto parte de una premisa: crear una vivienda unifamiliar en armonía con la naturaleza y el paisaje circundante. Tras analizar la exposición solar y la longitud y estrechez del terreno, nos quedó claro al instante que esta vivienda debía ser una extensión del espacio interior hacia el jardín.
Por ello, y para aprovechar la exposición solar, diseñamos una casa-patio con jardín interior, que proporcionará más horas de luz natural y, además, creará un ambiente íntimo. Otro aspecto clave de este proyecto fue la privacidad familiar. Por ello, diseñamos un volumen conceptual ciego con esquinas recortadas que crea zonas exteriores cubiertas con aberturas muy específicas. Como resultado, el edificio cuenta con una segunda fachada privada, que proporciona a las estancias interiores una sensación de intimidad y una fuerte conexión con el jardín.

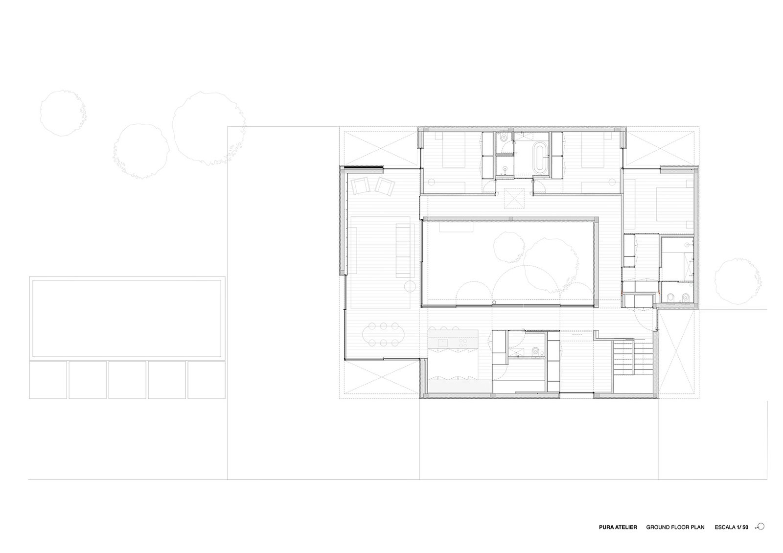
En cuanto al programa y el esquema funcional, buscamos una circulación muy fluida alrededor del jardín interior, ofreciendo a la vez un enfoque diferente entre el área social, con aberturas más amplias y una mayor conexión con el exterior, y el área más privada, donde se ubican las habitaciones.



El lado oeste del volumen es la parte más funcional de la casa. En esta zona se encuentran la entrada, el baño de visitas y el lavadero. En este lado de la casa se encuentran la cocina y la despensa conectadas directamente con el comedor, mientras que el despacho aprovecha la fluidez del espacio y da al jardín interior. Los lados este y sur de la casa se adaptan a un enfoque diferente, ya que es donde se ubican las zonas más privadas, como los dormitorios y la suite principal.
Por ello, para cada habitación, diseñamos un espacio exterior privado y cubierto que permitirá al usuario disfrutar de un lugar tranquilo donde sumergirse en la naturaleza.

El lado norte del volumen aprovecha la exposición solar del norte, sur y oeste. Esta parte de la casa se beneficia de una fuerte continuidad visual desde el interior hacia todo el jardín y la piscina, por lo que es el lugar ideal para la sala de estar y el comedor. En otras palabras, estas áreas se proyectan como un espacio en medio de un jardín continuo, como un espacio que se articula entre el gran jardín de la casa y el patio interior. Nuestra intención es que se sienta que el exterior es una extensión del espacio interior y que la casa está en el corazón del entorno natural








































