Casa Patio | Arquitectura G

Arquitecto: Arquitectura G
Fotógrafo: Maxime Delvaux
País: España
Año: 2025
Localización: Aiguablava, Gerona
Instalaciones: TDI Enginyers
Arquitecto Técnico: Xavier de Bolòs
Equipo de Diseño: Diogo Porto, Siddartha Rodrigo, Jesús Jiménez
Arquitectos: Jonathan Arnabat, Jordi Ayala-Bril, Aitor Fuentes e Igor Urdampilleta
Arquitectura G – Casa Patio (Maxime Delvaux) (16)

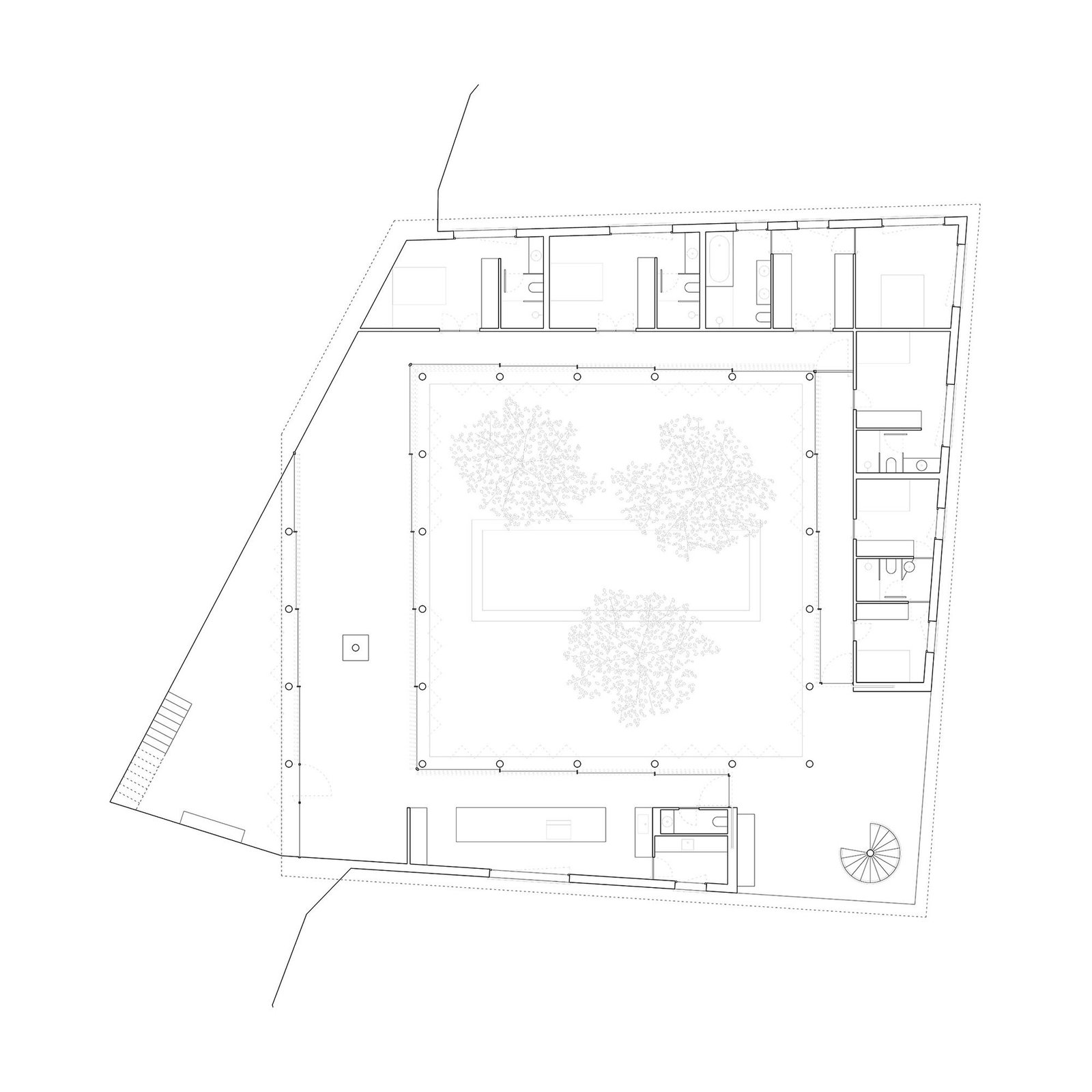
La vivienda se desarrolla en planta baja, bajo una cubierta/porche que encierra un patio cuadrado. La forma del contorno exterior de la casa proviene de un setback de la forma de la propia parcela, que se deja intacta a modo de anillo natural alrededor de la vivienda.

Arquitectura G – Casa Patio (Maxime Delvaux) (13)

El patio principal, de 15 x 15 m y rodeado por una columnata, tiene una balsa de agua como eje central y 3 árboles que dan sombra. El patio secundario funciona como acceso. Las carpinterías se pueden abrir dejando las estancias expuestas al patio con la mediación de un filtro compuesto por paneles de lamas de librillo que protegen del sol mientras dejan pasar la brisa.

El patio está rodeado por un corredor que se entiende como un porche de anchura variable, que se va transformando de pasillo a zonas comunes como el estar y la cocina. De esta manera, al recorrer el interior se percibe la cubierta como una lámina que se apoya en columnas en un lado y en el muro perimetral en el otro.

Arquitectura G – Casa Patio (Maxime Delvaux) (3)

Mapa Proyectos Arquitectura en Blanco
Compartir proyecto:
Proyecto publicado: 11 de abril de 2026 - Última modificación : 11 de abril de 2026
Proyecto añadido por: César Jiménez González