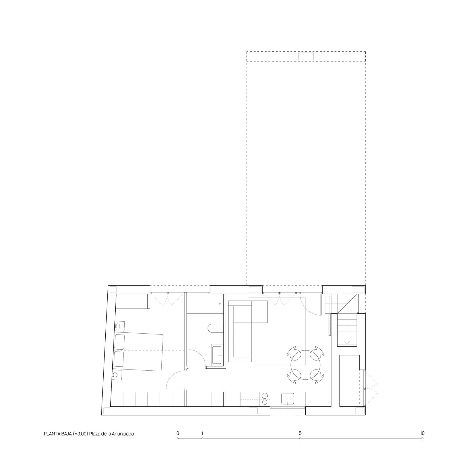
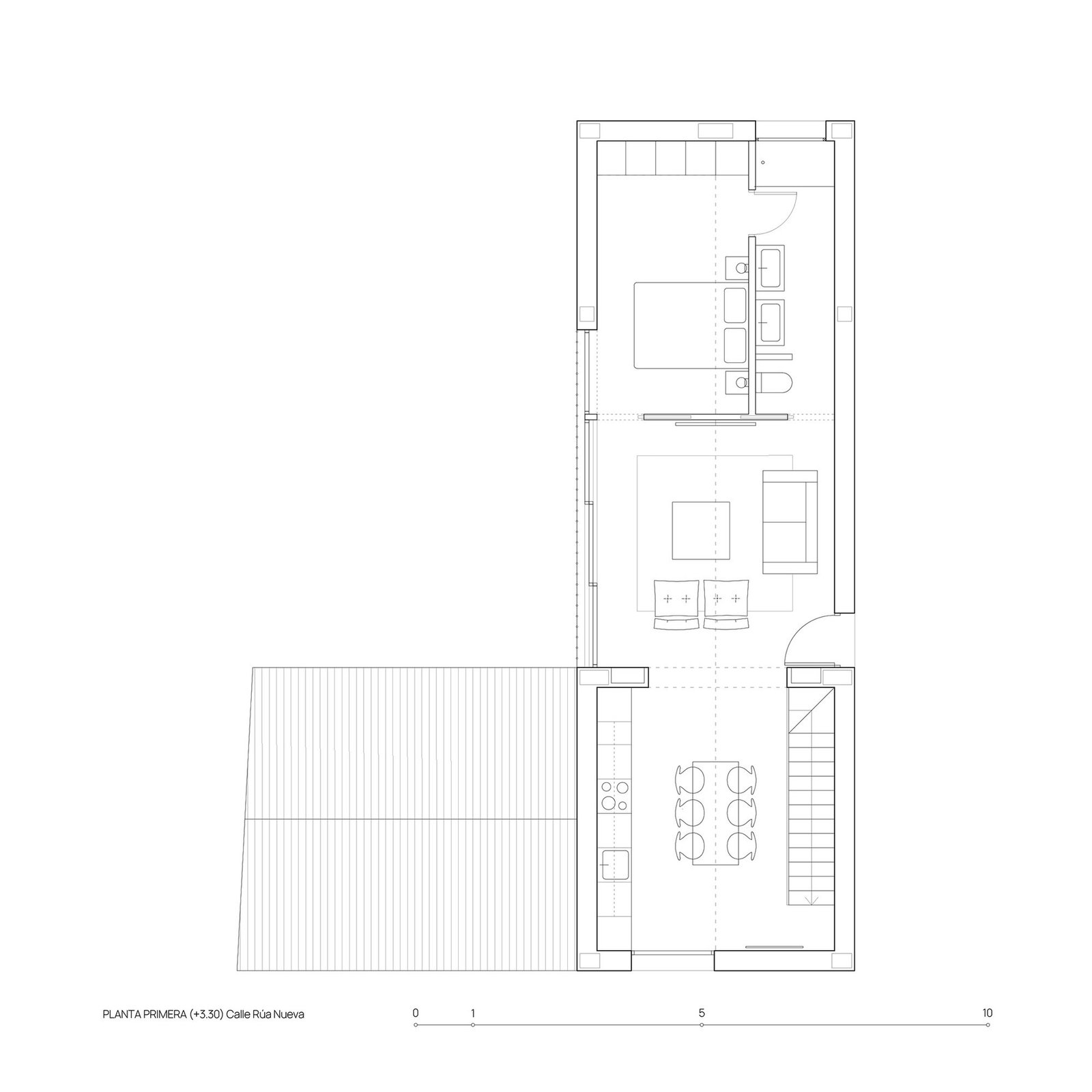
La vivienda se sitúa en el Centro Histórico de Villafranca del Bierzo, junto al Convento de la Anunciada y próxima al encuentro de los ríos Valcárcel y Burbia. La parcela, que ocultaba las ruinas de una antigua construcción de piedra, presenta una compleja condición topográfica, con distintos frentes de fachada desarrollados en dos niveles: uno superior, con acceso desde la Rúa Nueva, y otro inferior vinculado a la Plaza de la Anunciada.

El proyecto dialoga con las formas y tipologías de la arquitectura local y plantea una intervención que media con el entorno a través de dos volúmenes yuxtapuestos, concebidos como una charnela entre ciudad, paisaje y memoria construida. El volumen superior se proyecta como un mirador abierto al valle, mientras que el inferior se organiza en torno a un patio de carácter histórico, definido por las preexistencias de piedra recuperadas durante la excavación.




Ambos niveles cuentan con una organización doméstica completa —salón/cocina, baño y dormitorio—, permitiendo que la vivienda pueda ser habitada de manera autónoma en cualquiera de las dos plantas y adaptarse así a distintos modos de uso a lo largo del tiempo.
En el exterior, dos decisiones fundamentales articulan la relación con la parcela y el espacio urbano. Desde la Rúa Nueva, una gran pasarela de acceso integra los muros de piedra en el paisaje construido, estableciendo una transición gradual entre la calle y la vivienda. En el nivel inferior, un soporte triangular invertido reestructura la parcela, generando un amplio porche y proporcionando al patio ángulos de privacidad frente a la Rúa Santa Clara.

El resultado genera una convivencia equilibrada entre arquitectura tradicional y las soluciones formales/tipológicas propuestas. La vivienda se inscribe en el tiempo adoptando los valores de la arquitectura local pero proyectando una lectura espacial y compositiva contemporánea.



































