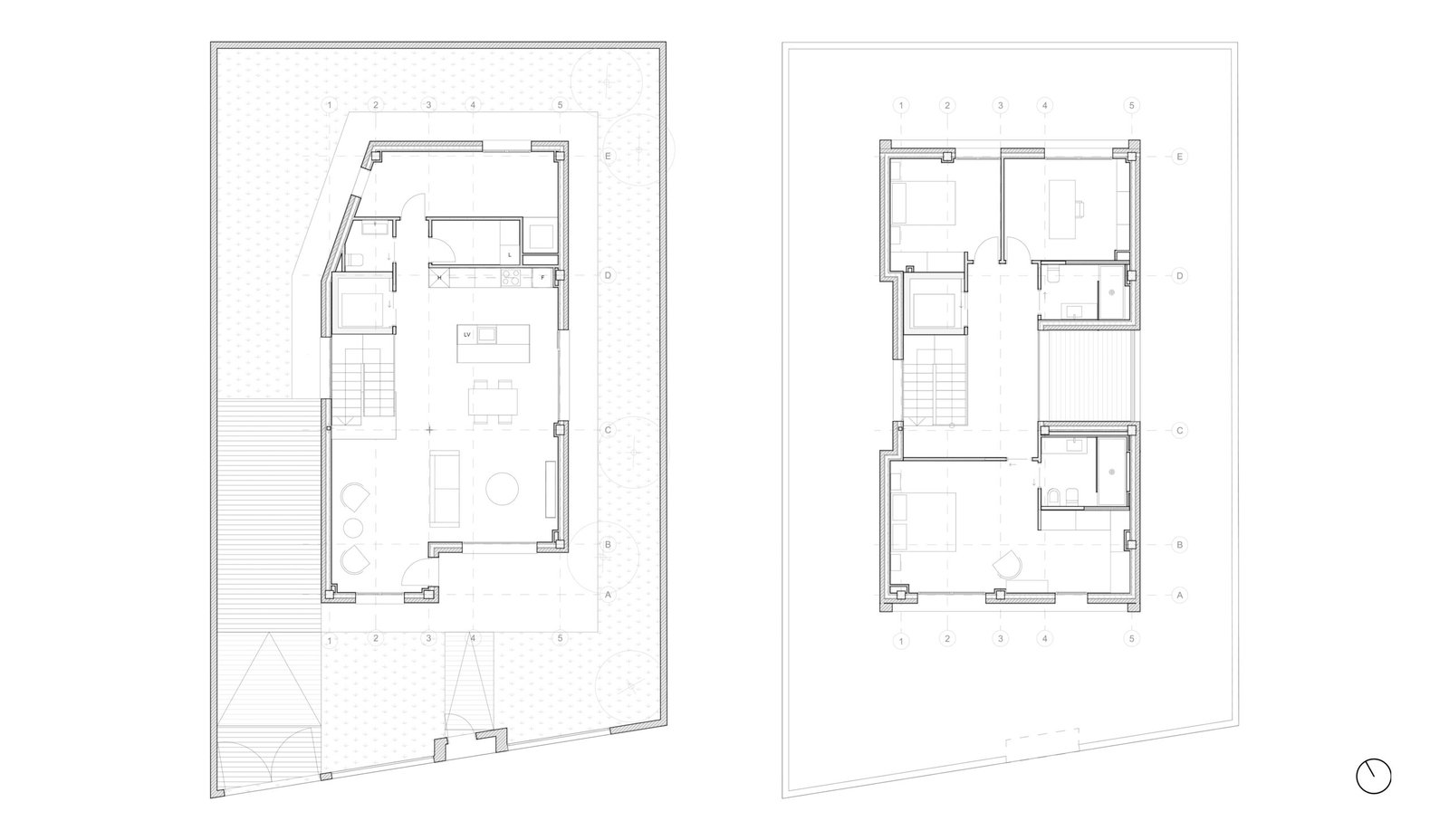
La vivienda, emplazada en una parcela de dimensiones contenidas, maximiza las vistas en ambas direcciones cardinales. Las actividades primarias se distribuyen a lo largo de las fachadas principales, separando los espacios de descanso y sociales.
Las fachadas laterales, por proximidad con los vecinos, cuentan con aperturas controladas, optimizando la iluminación y ventilación sin comprometer la privacidad. El proyecto prioriza la eficiencia espacial y la integración contextual, utilizando materiales locales reinterpretados, mientras que el volumen resulta de un estudio formal que responde tanto a la normativa como a la configuración de la vivienda y sus modos de habitar.

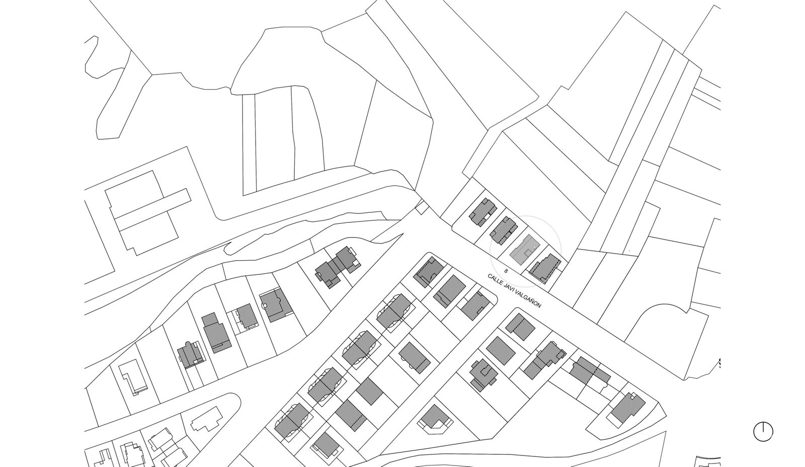
Situada en una parcela de ajustadas dimensiones y con vistas espléndidas al noreste y sureste de la misma. Al suroeste el San Lorenzo, el monte más alto de La Rioja, al noreste las peñas de Ojacastro, bellísimo paisaje. Se resuelve la vivienda ubicando sus actividades principales en estas dos fachadas y reservando el eje central para los espacios de paso y los servicios.
De este modo en la fachada suroeste, que da a vía pública, se ubica el porche, la zona de estar y el dormitorio principal, mientras que ligadas a la fachada noreste se desarrollan las actividades de despacho, sala de pintura y dormitorio de invitados. En las fachadas laterales, por su proximidad con los vecinos, se decide reducir el número de ventanas al máximo y las que se proyectan se colocan en una posición tal que permiten la buena iluminación y ventilación de la vivienda, manteniendo la privacidad de la misma.




Respecto al interior, se dota de especial protagonismo al eje vertical de la vivienda, marcado por la escalera y el ascensor, para lo cual se proyecta una doble ventana vertical con vidrios blancos, que ilumina de forma tamizada esta zona manteniendo la privacidad de la misma.
Se trata de un proyecto contemporáneo que persigue conseguir la máxima eficacia espacial, con especial atención a los detalles y sin renunciar a un espacio armonioso.
Se huye del pasillo convencional, lo que otorga mayor funcionalidad al interior de la vivienda. El pasillo tiene una anchura de 2,2 metros y se destina a un uso multifuncional, como una sala de yoga, siendo un espacio flexible que puede adaptarse a diferentes actividades según las necesidades del usuario.

Los materiales empleados para la fachada son los tradicionales de Ezcaray, mortero de cal y madera, repensados y adaptados en esta nueva construcción.
El volumen de la vivienda es el resultado de un estudio de múltiples pruebas y configuraciones morfológicas, en el cual las diversas formas de vivir y su posición van tallando el volumen capaz por normativa, dando como resultado una vivienda de formas sencillas y rotundas al mismo tiempo.
Una vivienda pensada específicamente para el lugar donde se ubica, que logra destacar dentro de un contexto heterogéneo, evitando la mimetización con sus colindantes y preservando la esencia contemporánea del proyecto.












































