Casa Nesma se asienta sobre una parcela de 760 m² en esquina, con un leve desnivel que ha condicionado el diseño arquitectónico. Su elemento más característico es un espectacular voladizo que, aparentemente suspendido en el aire, alberga un dormitorio doble de la planta superior y actúa como porche semicubierto en la planta baja.
Este diseño, fruto de detallados estudios técnicos, incluye una cercha metálica interna que asegura estabilidad y solidez a la estructura. El uso del hormigón armado y visto de color blanco confiere a Casa Nesma una identidad única. Este material, que destaca por su estética elegante y contemporánea, define la estructura de la planta baja, reforzando el carácter moderno y atemporal de la vivienda. Una estética rotunda y elegante del proyecto.

Uno de los elementos más singulares de Casa Nesma es su jardín interior acristalado y climatizado, diseñado a partir de la inspiración en los patios árabes. Este espacio, situado en la zona de día de la planta baja, crea una conexión fluida entre el interior y el exterior, convirtiendo la naturaleza en el eje central del proyecto. Este diseño no solo garantiza luminosidad y serenidad, sino que también refleja la conexión cultural y personal de los propietarios con su origen.


“Para los propietarios, era esencial esa presencia constante de vegetación que modelara la conexión permanente entre la familia y la naturaleza. Así, combinando su visión y nuestra experiencia técnica, Casa Nesma es una vivienda que se vuelca en sí misma y mira hacia su propio jardín”, explica el arquitecto Damián Ascoz de Ascoz Arquitectura.



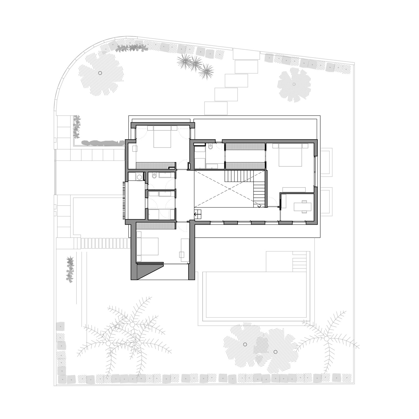
La planta baja, de 157 metros cuadrados, queda enmarcada por el entorno natural, de los jardines exteriores al jardín acristalado interior y acoge la cocina, el salón – comedor y una habitación con baño. En el nivel superior de la residencia, se ha dispuesto el resto de dependencias privadas sobre una superficie de 142 metros cuadrados: dormitorios, dos baños, un vestidor, un aseo y un estudio.
La vivienda consta de tres niveles: sótano, planta baja y planta primera. En el sótano, de 115 metros cuadrados de superficie, se ha dispuesto un espacio que se emplea como garaje y que incluye, además, un taller – trastero multifuncional.

El diseño de las ventanas de la vivienda pasa de aperturas verticales de dimensiones reducidas que favorecen la privacidad hacia la calle a ventanales generosos hacia el jardín, con lamas correderas manuales que permiten regular el nivel de privacidad, ventilación e iluminación.
Casa Nesma es la consolidación del trabajo en equipo de sus propietarios, con conocimientos de arquitectura, y de la resolución técnica del equipo de Ascoz Arquitectos que ha conseguido dar respuesta a todos los retos planteados, generando una vivienda cómoda, funcional y muy bella.










































