Situada al borde del Parque Natural del Montgó, Ca Malva emerge en el entorno forestal de Jávea dando respuesta a un acusado desnivel e integrándose en el paisaje.
El volumen propuesto se apoya sobre el terreno de forma respetuosa, generando el mínimo impacto visual. Para ello, se dispone una serie de plataformas sobre las que articular los volúmenes. En su fachada trasera, un patio actúa como espacio de mediación, regulando el encuentro del edificio con la ladera.

Es en este espacio donde se sitúa el acceso, dando lugar a un diálogo con la montaña -precedido por el sugerente sonido del discurrir de una lámina de agua-, que culmina viéndose abrumado por las vistas enmarcadas al mar Mediterráneo.




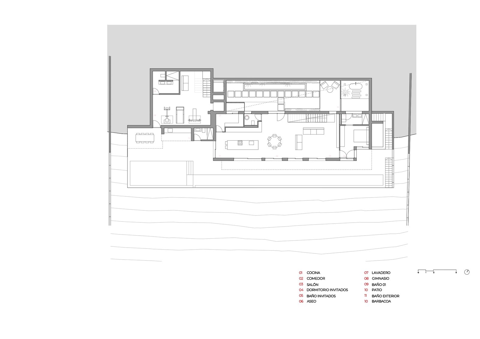
Desde cualquier punto de la vivienda se observa la imponente piscina infinita, prolongada con un canal de nado de 25 metros de largo, que se apoderan de las visuales desdibujando los límites y fundiéndose con el horizonte.

La luz natural, en conjunción con materiales como la madera, piedra -de la misma tonalidad que la montaña- y revocos a la cal, nos transportan a un ambiente cálido a la vez que se muestran sensibles con el entorno y fieles al carácter mediterráneo en el que habitan.






































































