Su desnivel natural estructura el proyecto, que se organiza en medias plantas conectadas por una escalera central. Esta disposición permite optimizar el espacio, generar relaciones visuales entre niveles y orientar las estancias hacia el mar.
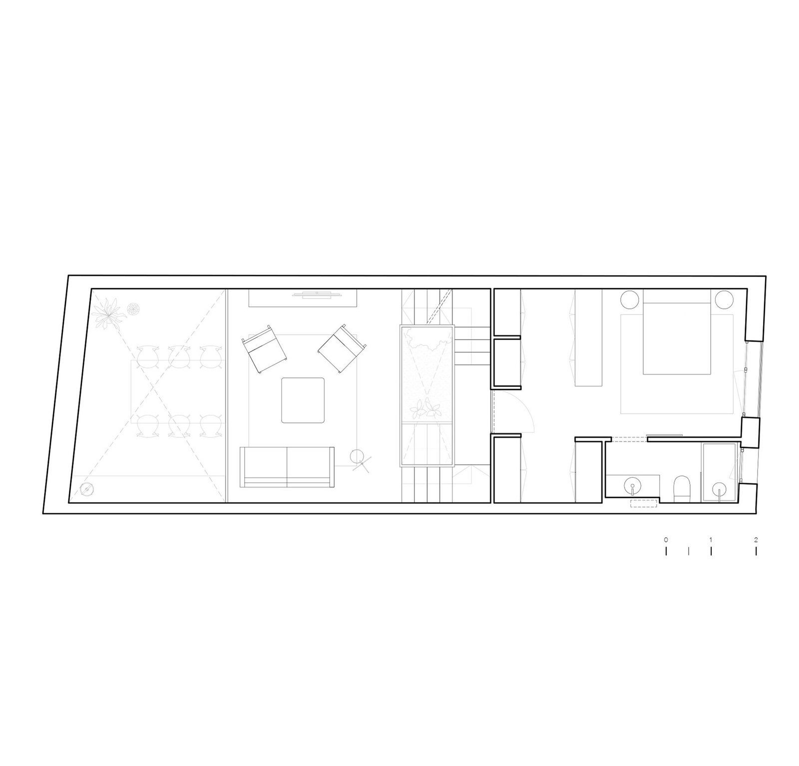
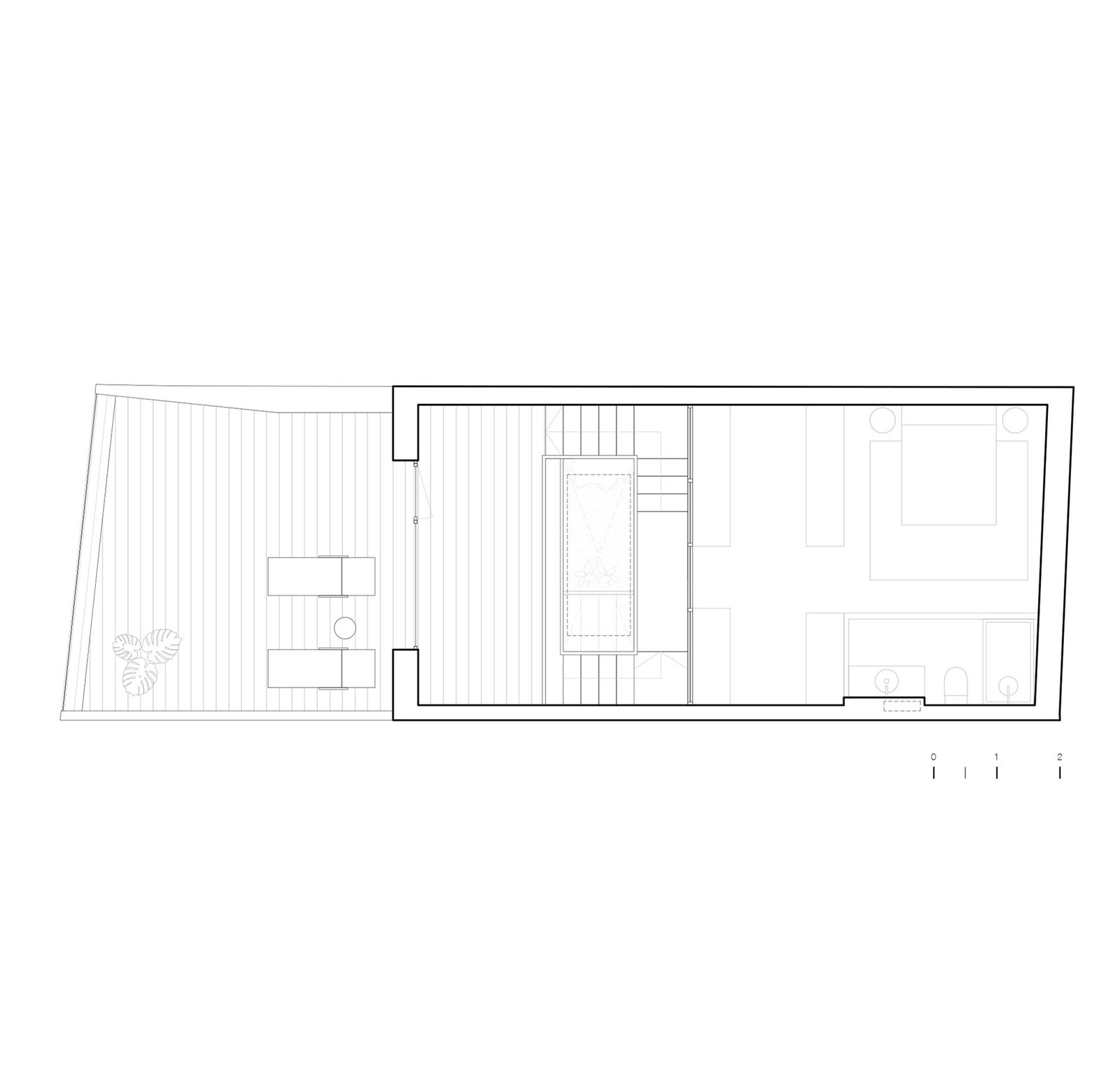
Casa Mar se sitúa en el frente marítimo del municipio de El Port de la Selva en la comarca del Alt Empordà (Girona). Se construye en una parcela entre medianeras, de 83 m², con fachada a dos calles de diferentes cotas: el Carrer del Mar (nivel inferior, oeste) y el Carrer Nou (nivel superior, este).

El espacio se articula en cuatro niveles principales: planta baja, planta primera, planta segunda y una cubierta accesible. La escalera interior, con peldaños de madera y barandilla de acero blanco hace un guiño al mundo náutico, funciona como eje organizador y conecta verticalmente todos los espacios.
En el primer nivel, situado a cota del paseo marítimo, se ubica un espacio destinado al estudio, la música y la lectura. Un ámbito introspectivo, concebido como refugio, que favorece la concentración cuando se necesita, pero que dialoga siempre con el exterior. Es la biblioteca repleta de libros, pero también es el espacio de la música con un gran mural hecho de una colección de guitarras selectas.

El segundo nivel, en su cota superior, contiene el acceso posterior y el acceso del parking, en su cota inferior, se encuentra la cocina y el comedor, espacios articuladores de la vida doméstica. En esta planta es donde aparece el gran protagonista: un ventanal de gran formato pensado como un gran cuadro vivo que enmarca las vistas al mar, bañando el interior con luz natural y reforzando la conexión visual con el paisaje litoral. Este nivel configura el núcleo más activo, abierto y social de la vivienda.
En la planta superior el carácter se vuelve más íntimo. En el primer espacio se encuentra el altillo y estar, un lugar de descanso, ocio y relajación que aun participa del doble espacio y el gran ventanal. En el segundo espacio medio nivel más arriba, se desarrollan los espacios de descanso, donde destaca la suite principal y el baño. Aquí la relación visual con el exterior se mantiene intacta, pero adquiere un tono más sutil, buscando mayor privacidad y confort.



La última planta alberga un espacio polivalente vinculado directamente a la terraza-solárium. Esta cubierta transitable actúa como mirador, ofreciendo una experiencia directa del entorno natural. La barandilla de vidrio permite una integración visual completa con el mar, haciendo del horizonte un elemento más del interior doméstico.
Dos elementos estructuran la espacialidad y la luz interior: un gran ventanal y una claraboya cenital. Ambos regulan la entrada de luz natural, generando una atmósfera cambiante según las horas del día. La arquitectura se convierte así en un soporte para la luz, que transforma y cualifica los espacios de forma continua.

La materialidad responde a criterios de sobriedad, durabilidad y coherencia con el entorno. La madera, presente en elementos fijos y mobiliario, aporta calidez y matiza la presencia del hormigón visto. El pavimento de pizarra negra, característica del lugar, establece una relación directa con el paisaje rocoso del litoral. El conjunto se completa con una paleta de colores neutros y acabados honestos que refuerzan la identidad mediterránea del proyecto.
La escalera, diseñada con estructura de madera y barandilla de acero blanco, constituye un elemento clave del proyecto. Más allá de su función circulatoria, actúa como eje vertebrador, organizando los recorridos y aportando continuidad visual y material entre los distintos niveles. Su diseño evoca el imaginario náutico, estableciendo una sutil conexión con el mar.

























