Situada en un contexto de escala barrial de San Isidro, donde predomina la naturaleza, Casa Magnolia se implanta conviviendo con las preexistencias del entorno.
Ubicada en un terreno que posee una casona antigua de estilo colonial en el lote lindero, se destaca el tratamiento de la envolvente exterior realizada en ladrillo blanco, que va adaptándose a los diferentes modos de habitar de la casa con el juego de la trama: gracias a estos llenos y vacíos, por momentos la resolución de este cerramiento actúa a modo de parasol, para controlar la luz de la mañana en el núcleo de escalera, y por otros, la trama genera privacidad en el área de servicios, permitiendo la entrada de luz y ventilación.
La decisión de resolver toda la vivienda de forma mono-material, genera una gran contundencia y síntesis del proyecto. Su imagen etérea convive y contrasta con la naturaleza que la envuelve. Genera un silencio arquitectónico, que respeta y valora las construcciones antiguas que posee a su alrededor.
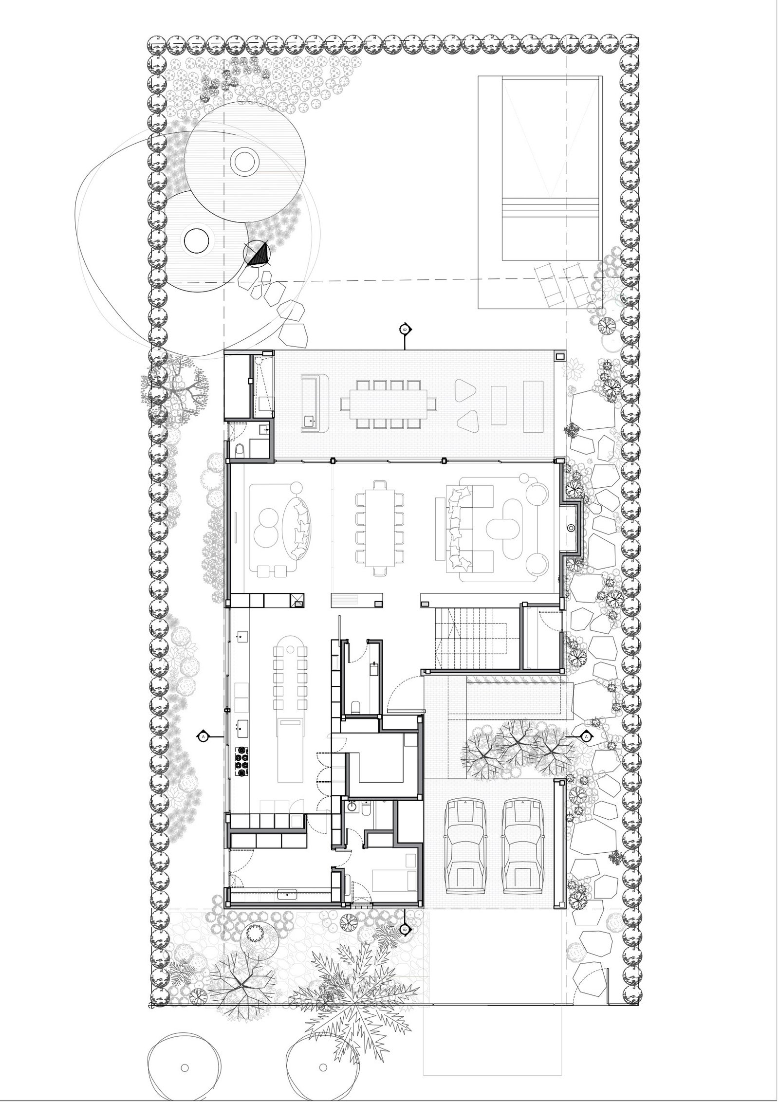
Hacia el espacio urbano, se visualiza una vivienda bastante compacta y cerrada, controlando la privacidad y seguridad. Atravesando el cerramiento metálico, se ingresa peatonalmente a la casa a través de un recorrido lateral, el cual está acompañado por vegetación y desemboca en un patio de acceso, con orientación norte, que aporta iluminación natural todo el día a la vivienda. Este vacío se encuentra jerarquizado por un muro-parasol de primer piso, que levita en el espacio.

Se desarrolla en planta baja el sector público que abre sus visuales ininterrumpidas, gracias a los aventanamientos corridos, al jardín, el cual posee un longevo árbol de Magnolia, que tiene gran protagonismo en el diseño del paisajismo. La galería conforma un gran espacio de reuniones, y transición entre el interior y el exterior. El área de servicios se ubica hacia el lado sur del terreno. Debajo de este nivel se encuentra el subsuelo que cuenta con un micro cine y una vinoteca.
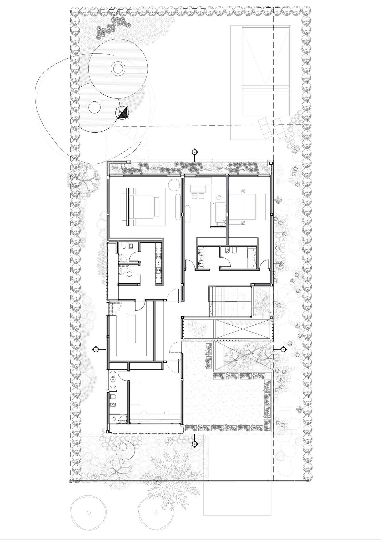
El sector privado se lleva a cabo en planta alta, que se accede a través del núcleo de escalera el cual posee un juego de luces y sombras gracias al parasol antes mencionado. Este nivel cuenta con una terraza transitable, la cual conforma un mirador hacia las copas de los arboles y las construcciones vecinas. El ladrillo resume todo el volumen y se incorpora naturalmente en el tejido de viviendas que el barrio posee.

La constitución estructural de la vivienda está basada en materiales nobles, pero, ante todo, se optó por trabajar con un perfil moderno con ladrillos blancos, carpinterías de aluminio y terminaciones en madera y piedra natural. Se priorizaron las formas puras y la continuación material dentro y fuera del proyecto. La constante interacción con la vegetación por medio de patios y grandes maceteros desdibuja los límites entre el interior y exterior, promoviendo la integración de la naturaleza en la rutina.
Casa Magnolia es la unión entre sustentabilidad y sofisticación, el proyecto presenta elementos que apuntan a una mejor relación con el medio ambiente y aprovechamiento de los recursos naturales, manteniendo una estética moderna y elegante.




En primer lugar, su fachada de ladrillos blancos ecológicos (importados de España) logran reducir hasta un 31,8% de las emisiones de CO2 por metro cuadrado en comparación con otros materiales tradicionales. Su diseño y su fabricación eficientes destacan, ya que, están compuestos de materiales 100% reciclados q generan residuos cero de agua y materiales en la producción y sus dimensiones permiten reducir un 49% el uso de mortero aligerando el peso de la hoja de fachada en un 22%. Además, incorpora un sistema de paneles solares que optimiza significativamente el consumo energético.
El diseño se fundamenta en un riguroso análisis de balance térmico, contemplando múltiples estrategias pasivas: orientación bioclimática, cerramientos con doble vidriado hermético (DVH), envolvente de muros dobles y la integración de espacios verdes tanto en canteros como en terrazas jardín.

Esta combinación de soluciones técnicas y proyectuales garantiza un comportamiento térmico óptimo y un menor impacto ambiental.
Casa Magnolia se distingue por su elegante fachada y un diseño que promueve la luz natural y la privacidad. Los volúmenes desfasados crean tensiones espaciales que dialogan orgánicamente con el paisajismo circundante, mientras que la secuencia de espacios abiertos establece una fluida conexión interior-exterior, logrando un ambiente armonioso y contemporáneo ideal para los usuarios.
































