Situada en un contexto urbano distinguido, Casa Hendida surge como una refinada respuesta arquitectónica a su entorno, interactuando con la densidad y la escala de la ciudad, a la vez que se integra profundamente con el clima local. El diseño aprovecha la luz, los vacíos y la materialidad como elementos fundamentales, moldeando tanto la experiencia espacial como la relación de la casa con el entorno.
Los vacíos no son meramente estéticos, sino que sirven como espacios dinámicos que median entre el interior y el exterior, entre la privacidad y la apertura, a la vez que desempeñan un papel crucial en la regulación ambiental. La composición volumétrica del edificio se define por una pureza escultórica, con un exterior blanco que contrasta marcadamente con una valla perimetral de acero oscuro. La ubicación estratégica y el tamaño de las aberturas crean una jerarquía de privacidad, adaptada a la función de cada espacio. La fachada norte es simple y geométricamente limpia, un gesto deliberado que refleja la conexión de la casa con el tejido urbano circundante.
En contraste, la fachada oeste, orientada hacia un parque adyacente, adquiere un carácter más introspectivo, con aberturas controladas que equilibran la transparencia con la privacidad y regulan la exposición solar. Esta dicotomía formal refuerza la relación adaptativa de la arquitectura con su emplazamiento, respondiendo con firmeza a las necesidades tanto ambientales como programáticas.

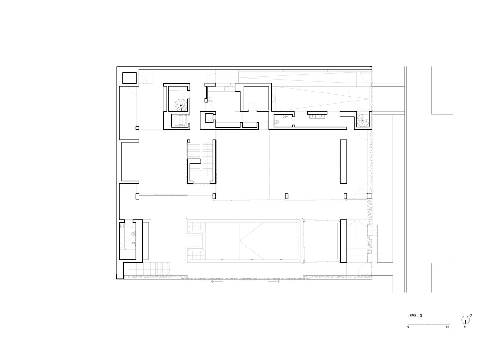
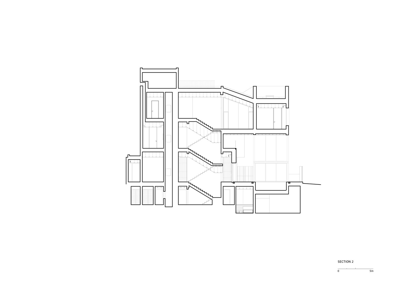
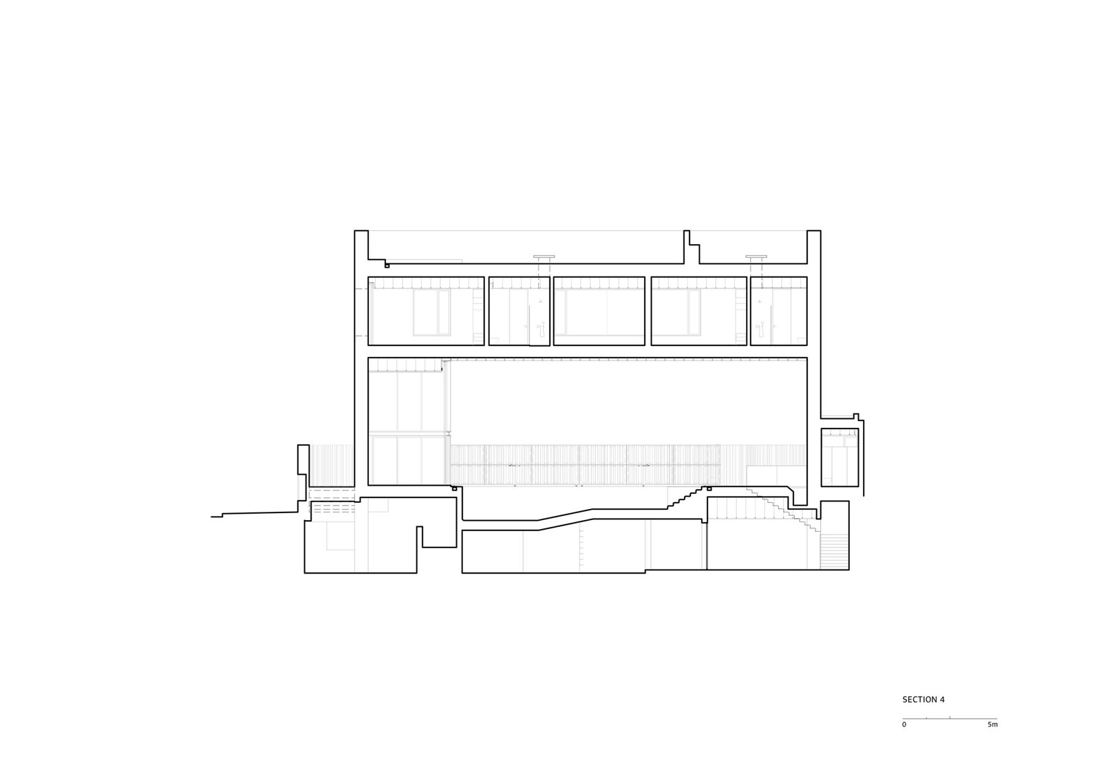
La planta baja se dedica al núcleo social de la casa, donde un amplio espacio habitable se integra a la perfección con el exterior mediante grandes aberturas acristaladas y un generoso pórtico orientado al norte. Este elemento estructural actúa como transición, ofreciendo sombra y protección, a la vez que conecta el interior con el paisaje circundante.
La piscina, ubicada en este marco, se beneficia de la cubierta del pórtico, lo que garantiza el control solar y fomenta el diálogo entre el interior y el exterior, condensando y expandiendo las experiencias espaciales. La luz y la sombra interactúan a lo largo del día, ofreciendo un encuentro multisensorial que cambia con el movimiento del sol.

Además de proteger la casa del calor y priorizar la privacidad, el diseño incorpora espacios más expuestos al clima. Una gran terraza orientada al oeste, con sombra durante los meses de invierno, permite disfrutar cómodamente del aire libre durante las estaciones templadas de Kuwait.
Este espacio extiende la casa hacia el entorno, ofreciendo un entorno ideal para los meses más fríos. Desde aquí, una escalera conduce a una terraza en la azotea, sobre el pórtico, desde donde se abren vistas panorámicas de la ciudad. Este espacio elevado sirve como un remanso de paz, ofreciendo una conexión panorámica con el paisaje urbano.



El sótano alberga espacios funcionales y culturales. La diwaniya, diseñada con entrada independiente, conserva su autonomía dentro del programa, garantizando que su función cultural se distinga del resto de la vivienda. Debajo de esta, el garaje, las áreas de servicio y los espacios técnicos se integran a la perfección en el diseño, proporcionando la infraestructura esencial a la vez que se mantiene la fluidez y la eficiencia del espacio.
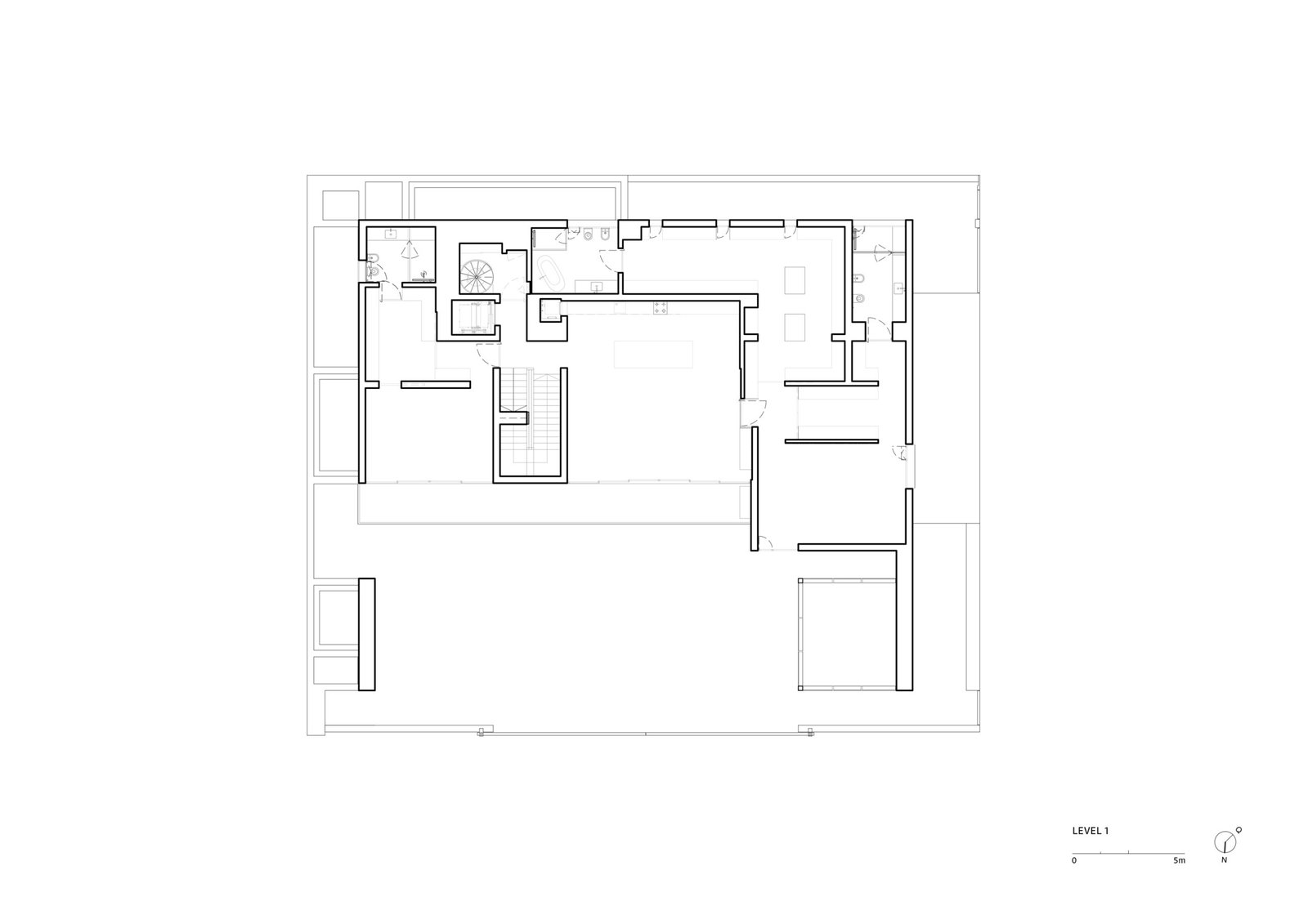
Las plantas superiores se dedican a la intimidad de la casa, con dormitorios, salas de estar y terrazas privadas estratégicamente ubicadas para optimizar las vistas y mantener la privacidad. La disposición de las aberturas y terrazas crea una relación matizada con el paisaje urbano circundante, ofreciendo momentos de tranquilidad, introspección y paz.
Los volúmenes superiores están fragmentados y retranqueados en puntos estratégicos, permitiendo que la luz penetre con mayor profundidad en zonas sombreadas como el pórtico y la piscina, realzando la experiencia general con sutiles contrastes de luz y sombra.

En el corazón de la casa, un estrecho vacío central funciona como conector espacial y regulador ambiental. Este gesto amplifica la sensación de intimidad, a la vez que promueve la luz natural y la ventilación en toda la casa. El vacío conecta los distintos niveles y espacios, creando un flujo cohesivo y reforzando la relación entre el interior y el exterior.
Las paredes de cristal y las transiciones cuidadosamente diseñadas disuelven los límites entre el interior y el exterior, permitiendo que el espacio respire y responda con fluidez a los cambios de luz y condiciones ambientales. De esta manera, la arquitectura se adapta al ritmo de la vida cotidiana, evolucionando continuamente con su contexto.































































