Casa Filipines | TO DO hub d’arquitectura

País: España
Año: 2025
Localización: Jávea
Superficie: 327 m2
Constructora: Edificaciones RC
Equipo de Diseño: Jordi Costa, Alba Monfort, Begonya Sastre
Arquitectos: Ángel Zaragoza, Borja Costa
TO DO hub darquitectura – Casa Filipines (Mariela Apollonio) (20).jpg

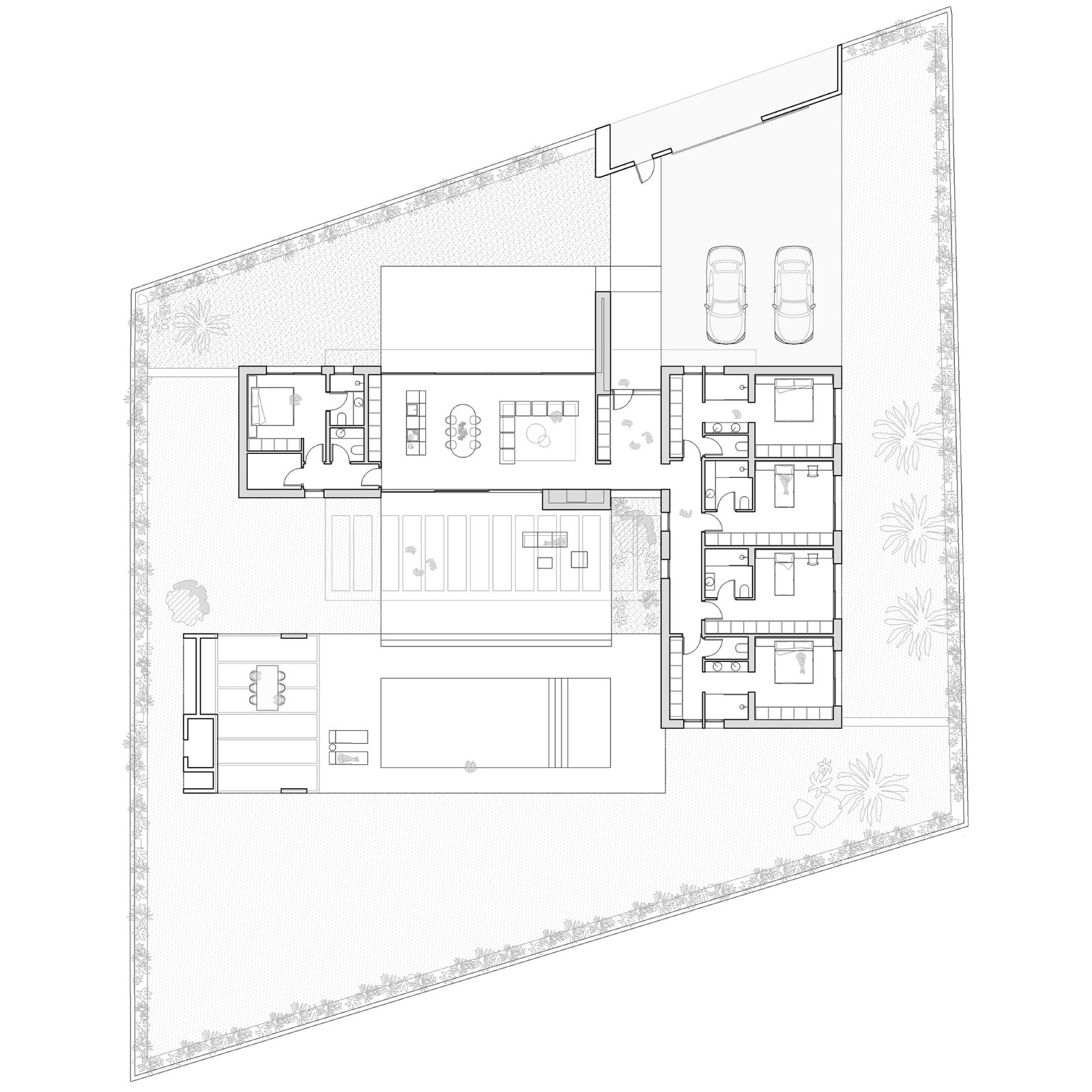
Al pie del Montgó, en Jávea, se despliega esta vivienda, cuyo diseño se caracteriza por el respeto al entorno y la precisión formal. El proyecto evita los gestos icónicos y prioriza una clara integración en el paisaje mediante volúmenes horizontales, proporciones controladas y una ocupación del terreno que preserva la legibilidad del entorno.

La montaña sirve de referencia constante en la orientación y apertura de la vivienda, mientras que los espacios exteriores privados —jardín y piscina— estructuran la escala doméstica. El proyecto se organiza en torno a esta doble condición: una relación directa con un entorno natural privilegiado y la creación de un espacio interior protegido y habitable durante todo el año.

Esta vivienda establece dos fachadas complementarias. Hacia el Montgó, las estancias principales se abren con amplias vistas y un control solar preciso. Hacia el interior de la parcela, los espacios se articulan en torno a zonas protegidas que garantizan privacidad y confort. Esta estrategia genera una secuencia continua entre exterior e interior, donde los límites se resuelven mediante transiciones espaciales claras y funcionales.

La arquitectura se concibe como un sistema continuo de espacios conectados visual y físicamente con el exterior. Porches, terrazas y grandes aberturas correderas amplían las zonas habitables y permiten un uso flexible durante todo el año. Estos espacios intermedios forman parte de la organización principal de la vivienda y responden a criterios climáticos, de sombreado y de ventilación cruzada.

Casa Filipines Lado

La luz natural se gestiona como un elemento adicional del proyecto. La orientación, la profundidad de los voladizos y la posición de las aberturas regulan la incidencia solar en las diferentes estaciones, reduciendo la demanda energética y mejorando el confort interior.

El conjunto se define por una paleta de materiales reducida y atemporal, seleccionada por su idoneidad para el contexto mediterráneo.

Mapa Proyectos Arquitectura en Blanco
Compartir proyecto:
Proyecto publicado: 8 de abril de 2026 - Última modificación : 8 de abril de 2026
Proyecto añadido por: César Jiménez González