Construida en un condominio horizontal, en Goiânia, Casa de Ladrillos es una casa que combina simplicidad, sofisticación y conexión con la naturaleza. Inspirada en la arquitectura mexicana y mediterránea, la residencia adopta un estilo natural, con líneas puras, volumetría marcada y materialidad honesta – en la que los materiales se presentan en su forma más auténtica, sin excesos de recubrimientos ni disfraces, revelando texturas, colores e imperfecciones que cuentan historias y refuerzan la identidad de la casa.

Durante la construcción, la casa recibió el nombre de nuestro hijo, quien a los tres años aprendió el cuento de los ‘Tres Cerditos’; Él dijo: «¡Mamá, estamos construyendo la casa de ladrillos!»
La arquitectura busca ser, al mismo tiempo, sencilla, ligera y atemporal. La residencia celebra la vida de una manera sencilla y sensorial, en la que cada detalle invita a la pausa y la contemplación.




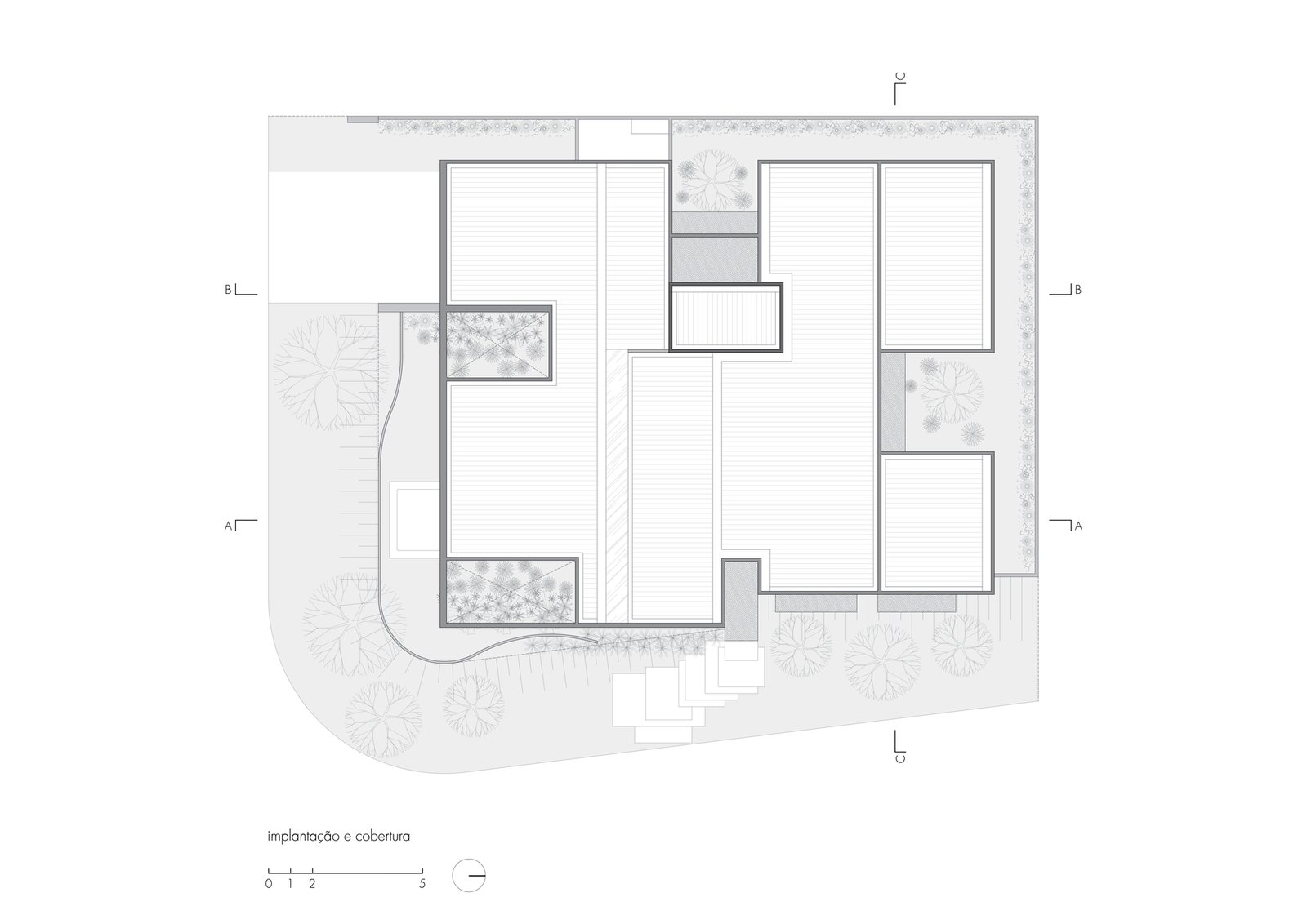
Con 440 m², la planta baja se organizó para favorecer la integración de ambientes y el confort térmico. Con jardines posicionados en puntos estratégicos, los ambientes internos y externos se conectan de manera fluida, permitiendo la entrada de luz natural y reforzando la sensación de acogida y tranquilidad, premisas esenciales del proyecto.
Es una casa que respira, que se abre al viento, que escucha los sonidos del entorno, que se deja tocar por la luz de la mañana y los rayos del atardecer. Sus espacios generosos e integrados fluyen naturalmente entre el interior y el exterior, invitando a la naturaleza al interior y permitiendo que la vida suceda sin prisas.

Más que un edificio, la Casa de Ladrillo es un estado de ánimo, un refugio familiar, donde el tiempo se ralentiza, donde la arquitectura protege sin aislar, y donde cada pared, cada jardín y cada sombra lleva el recuerdo de un sueño traducido en materia.




























































