Casa Cantiña toma su nombre del cante que lleva su mismo nombre, compuesto de frases y motivos populares. Una de las cantiñas más antiguas que encontramos nos enamoró y nos sirvió como punto de partida del proyecto, dice así:
«Arandito, arando
rosas y lirios
vas derramando»

Situado en Lepe, un pueblo costero de la provincia de Huelva. En un enclave muy singular, en el campo, muy cerca del mar y de la ermita donde una vez al año todo el pueblo se da cita para celebra su romería. La idea de la casa parte del deseo de dos hermanos de pasar las vacaciones en el campo con sus respectivas familias y a la vez tener un sitio donde disfrutar de las noches de cante y folclore de esa romería que tanto les gusta vivir rodeado de familiares y amigos.

Construida utilizando técnicas tradicionales y materiales locales, e influenciada por la arquitectura propia de la zona, y por la arquitectura mediterránea que se da en Cadaqués de la mano de Correa, Coderch, Milà, Harnden, Bombelli… se busca la sencillez de lo rural.
Techos abovedados, acabados con mortero de cal, suelos de barro, apliques cerámicos y carpinterías de madera cuidadosamente estudiadas y ejecutadas por artesanos del lugar. Una vivienda con una distribución sin muchas pretensiones que al igual que una casa de campo tradicional, se abre al exterior, cediendo a estos espacios todo el protagonismo.




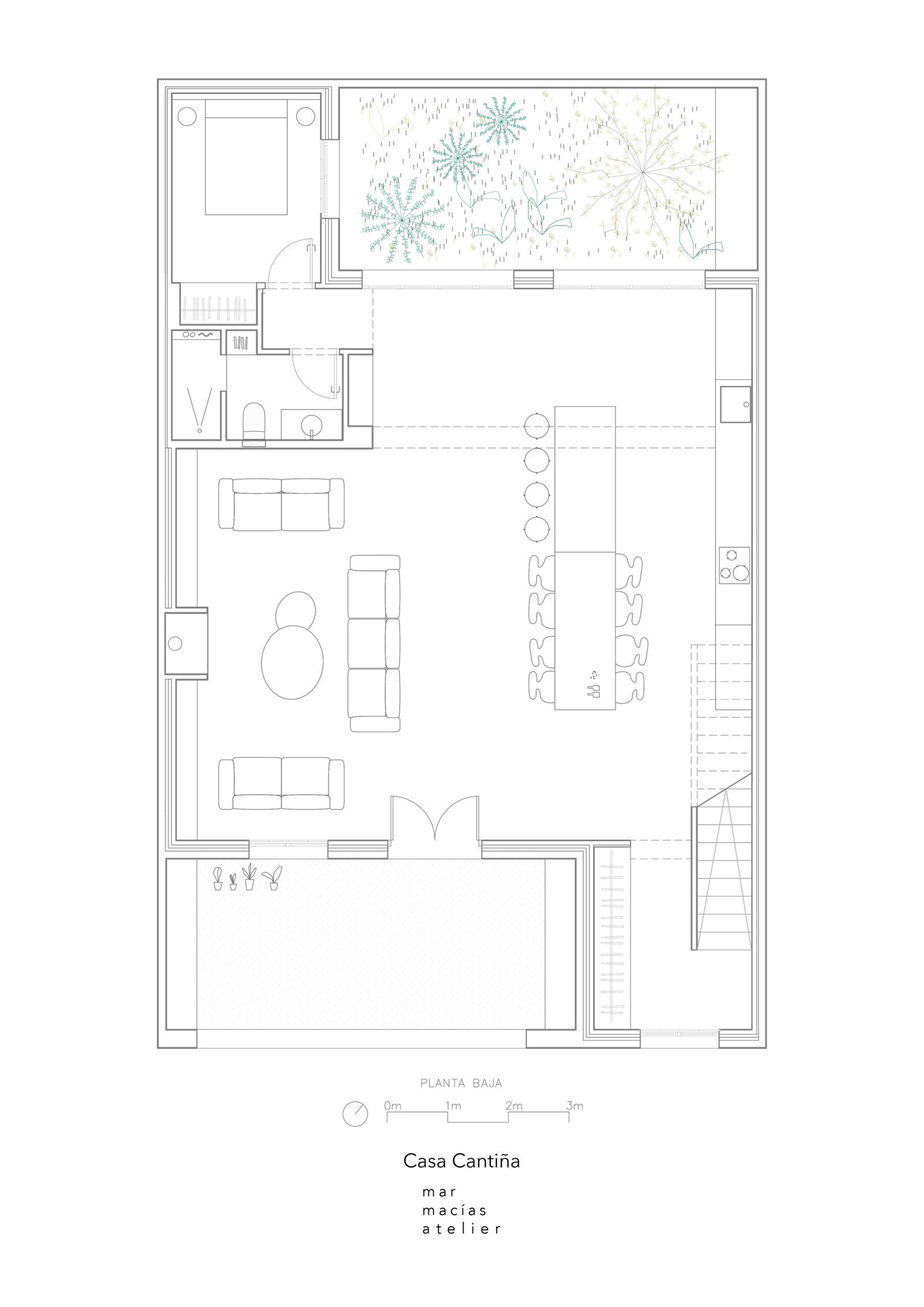
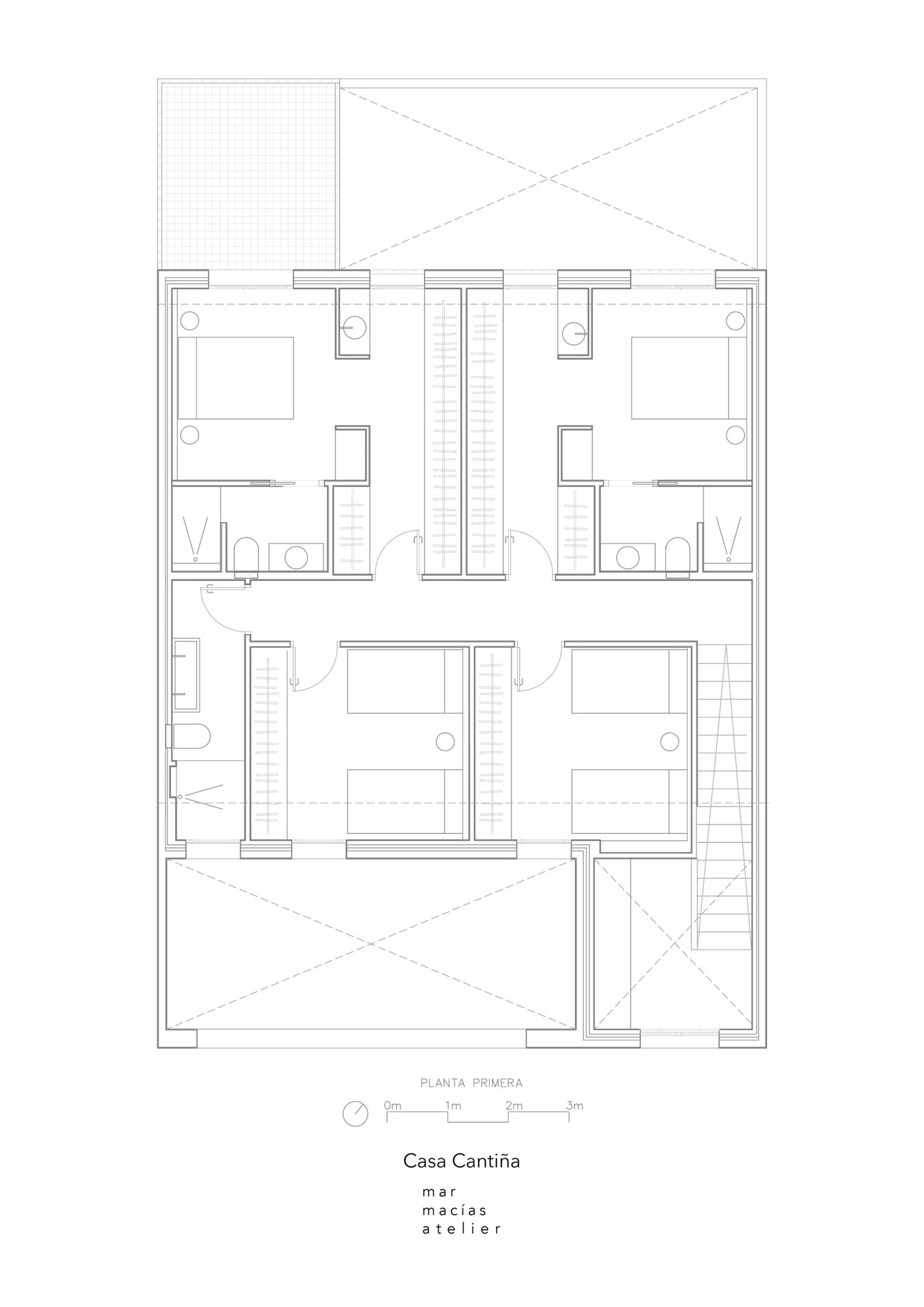
Siendo la planta primera donde se encuentran los dormitorios, es la planta baja donde se desarrolla todo el área social; un gran salón-comedor con chimenea y cocina de obra, y dos patios. El patio delantero, a la sombra del olivo, funciona como «espacio umbral», un espacio que nos acoge antes de entrar a la casa, donde se alargan las mañanas y las noches de verano.

El resto de espacios cuenta con un mobiliario prácticamente mínimo e inexistente, donde la propia arquitectura va encontrando hornacinas y huecos, que facilitan el día a día. Casa Cantiña es una casa concebida para alejarse de lo urbano, para detener el tiempo y adentrarse en la calidez de lo cotidiano, la pureza del campo, de la tierra, su verdadera expresión, su esencia.









































