Ubicada en un entorno natural dominado por la vegetación y la presencia constante del océano, Casa Atlántica es una obra residencial del arquitecto brasileño Felipe Hess que explora con precisión el diálogo entre arquitectura, paisaje y clima. El proyecto se concibe como una pieza silenciosa, integrada en su contexto, donde la materialidad y la proporción construyen una experiencia espacial serena y atemporal.
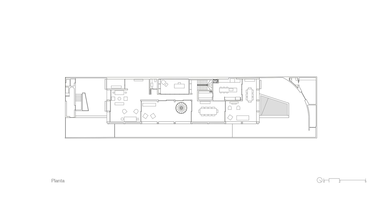
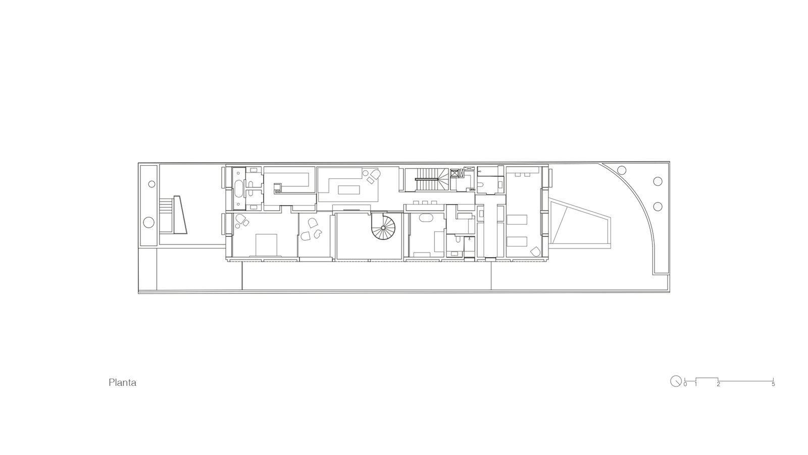
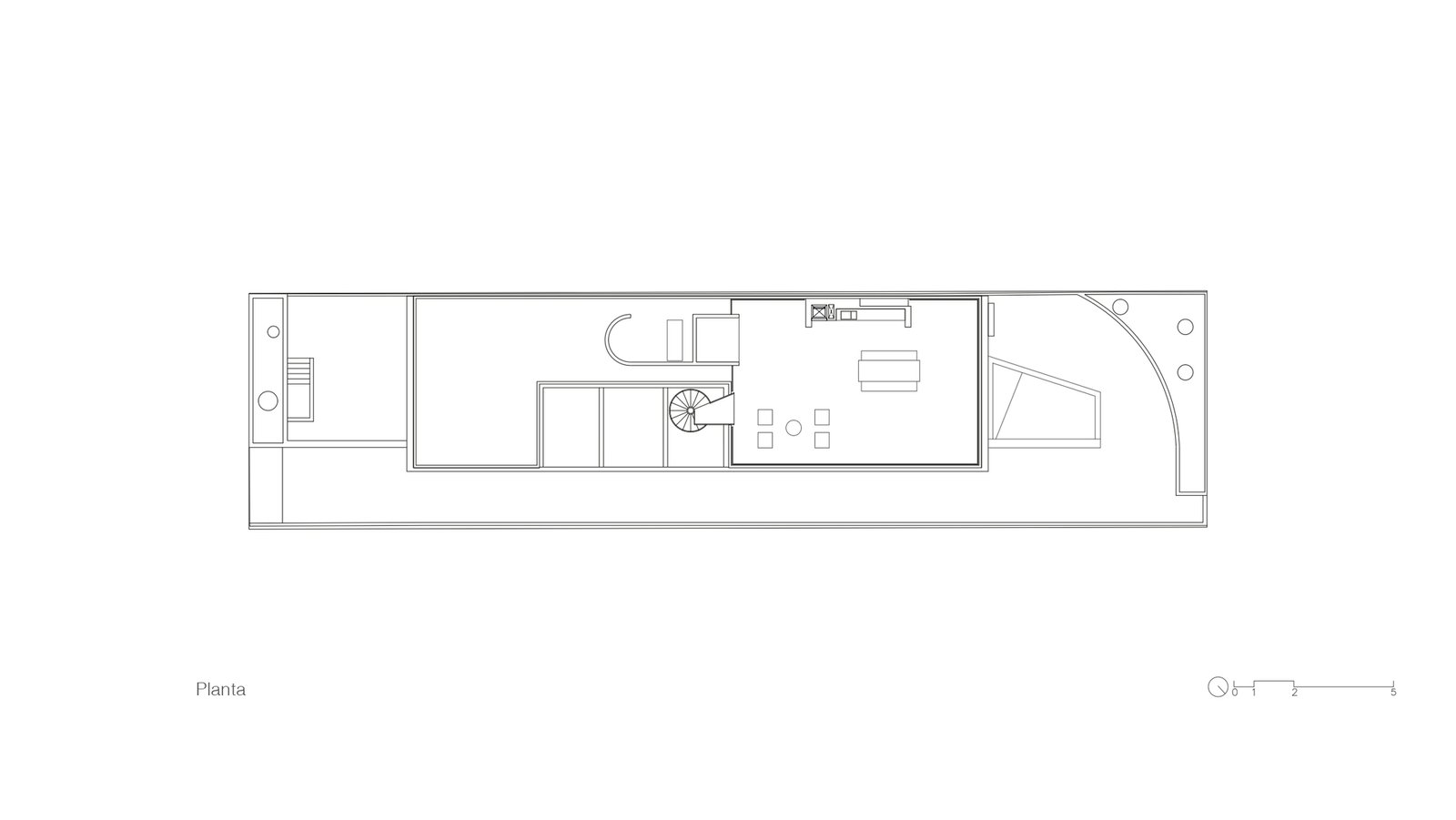
La vivienda se organiza a partir de volúmenes rotundos y bien definidos, dispuestos de forma que protegen los espacios interiores y, al mismo tiempo, los abren selectivamente hacia el exterior. Grandes planos horizontales y cubiertas generosas permiten controlar la radiación solar y las lluvias propias del clima atlántico, reforzando una relación equilibrada entre confort y naturaleza.

La materialidad es uno de los aspectos clave del proyecto. El uso de hormigón visto, madera y vidrio establece un contraste preciso entre lo pesado y lo ligero, entre lo permanente y lo cálido. Estos materiales, empleados con una lógica constructiva honesta, envejecen con el tiempo y refuerzan el carácter doméstico de la casa sin recurrir a gestos innecesarios.




En el interior, los espacios se suceden de manera fluida, priorizando la continuidad visual y la conexión con el entorno. Las estancias principales se abren hacia patios, terrazas y zonas verdes, diluyendo el límite entre interior y exterior y permitiendo que la vegetación forme parte activa de la vida cotidiana. La arquitectura no busca imponerse, sino acompañar el ritmo del lugar.

Casa Atlántica refleja de forma clara la manera de proyectar de Felipe Hess: una arquitectura esencial, sensible al contexto y profundamente ligada a la experiencia de habitar. Una vivienda que demuestra cómo la sobriedad formal y el rigor constructivo pueden dar lugar a espacios cálidos, silenciosos y profundamente humanos.


































