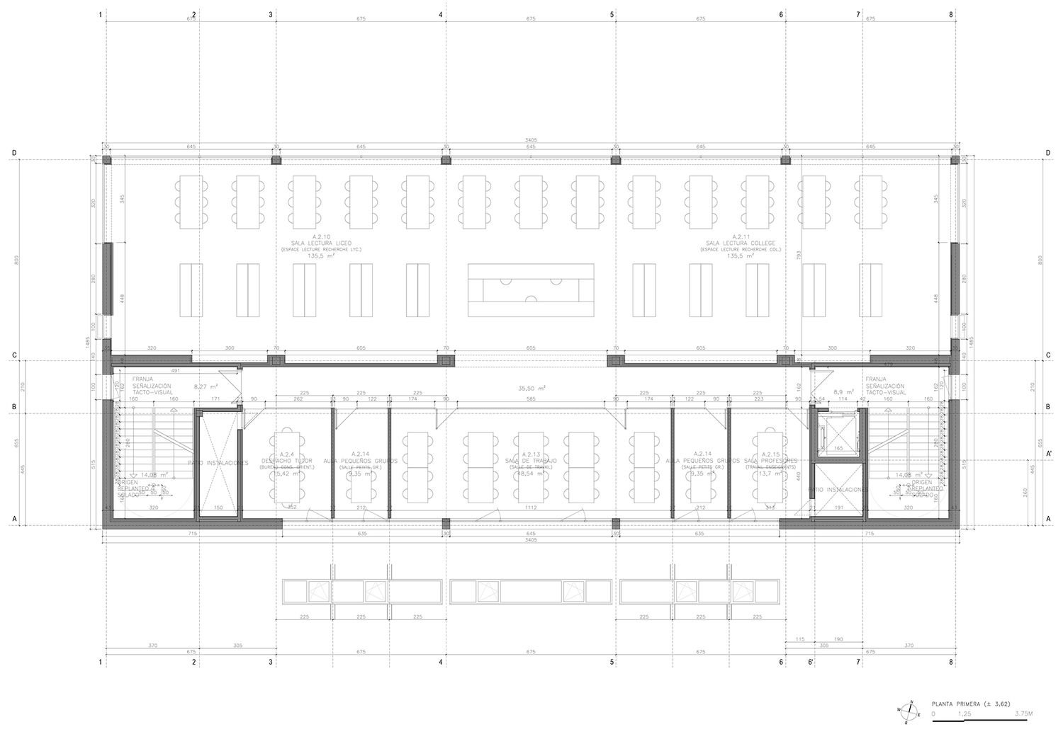
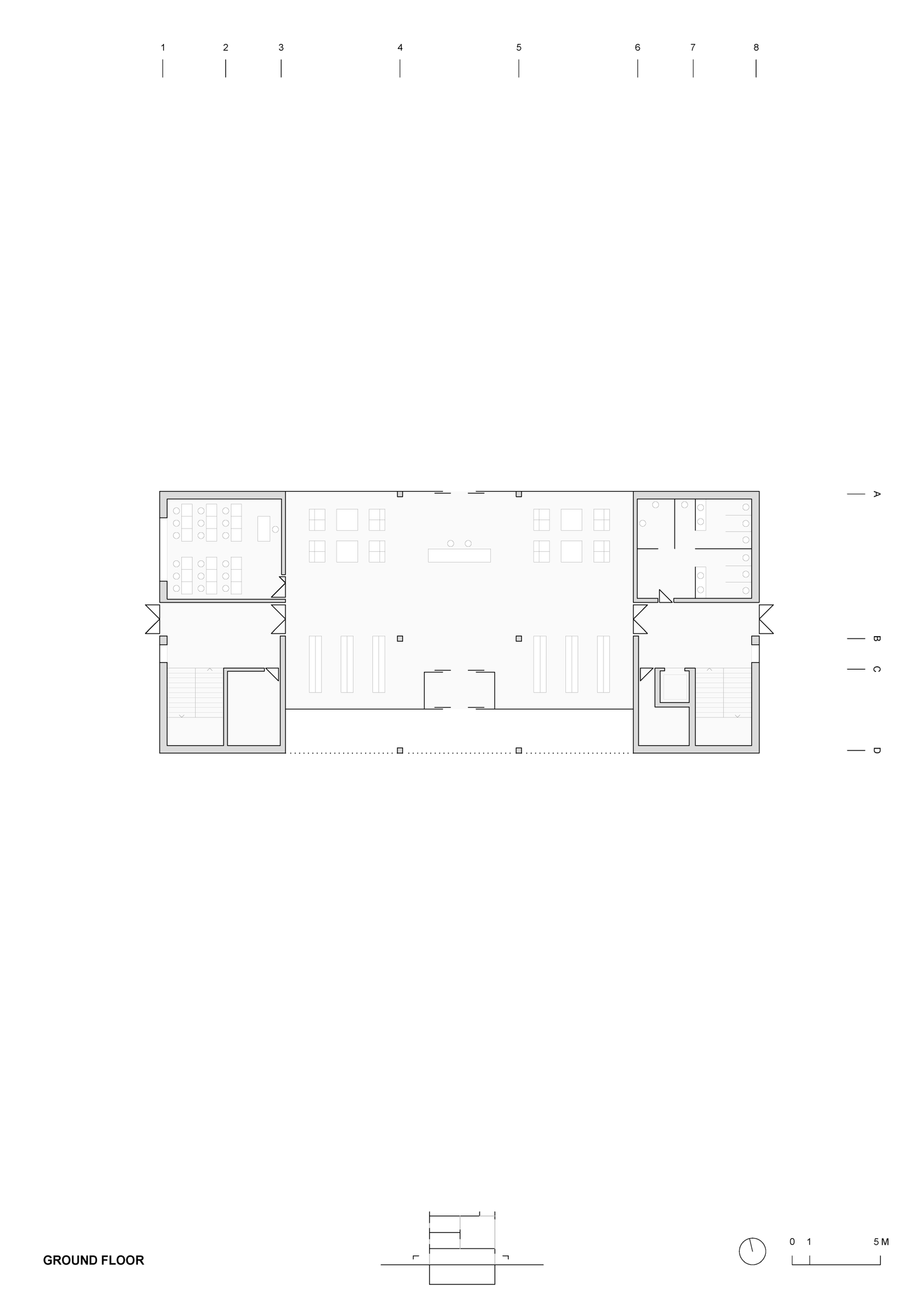
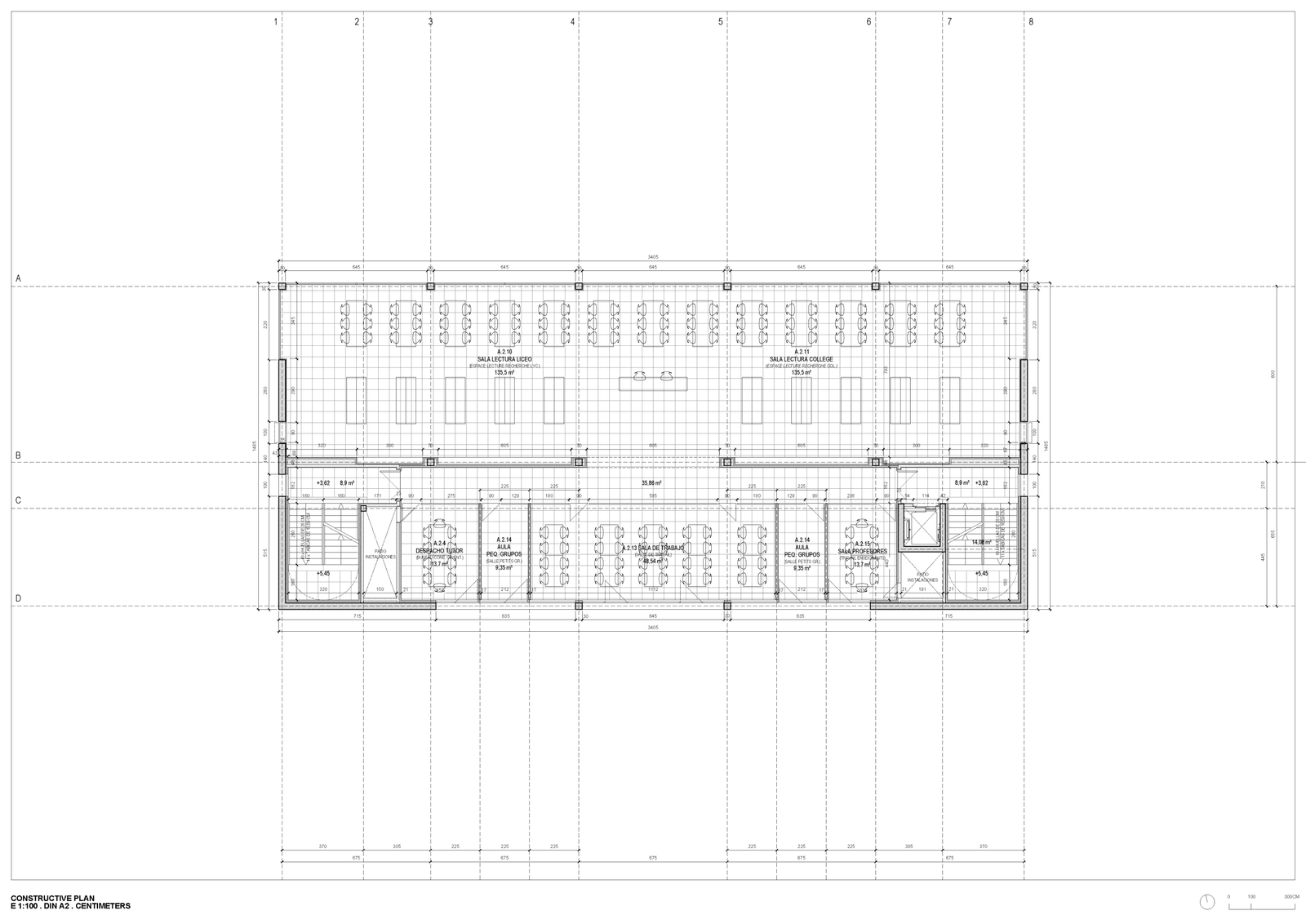
La Biblioteca del Liceo Francés de Madrid, obra del arquitecto Alberto Campo Baeza, se presenta como la pieza más singular del proyecto de extensión del centro educativo, resultado de un concurso internacional ganado en 2018.
Concebida como un espacio icónico y esencial para la vida académica, la nueva biblioteca responde a la idea de crear un volumen rotundo que, a la vez, se abre a la luz y al conocimiento.

El edificio se materializa en una caja de 34 x 15 x 12 metros, de hormigón visto al exterior y completamente blanca en su interior. La claridad domina el espacio gracias a un gesto arquitectónico contundente: una gran fachada norte totalmente acristalada que se prolonga en las esquinas, llegando incluso a transformar parte de la cubierta en un plano de vidrio. Este recurso conforma un triedro de luz que otorga al espacio una atmósfera única y transparente.




En el corazón del proyecto se encuentra la sala de lectura, concebida como un espacio de doble altura. Desde allí, los demás recintos que dan servicio a la biblioteca se vuelcan visualmente al interior, estableciendo un diálogo continuo entre los distintos ámbitos.
El resultado es una auténtica boîte à lumière, una caja de luz donde el protagonismo absoluto recae en la experiencia espacial y sensorial que genera la iluminación natural.

Tal como define el propio estudio: “La nueva Biblioteca es la pieza más singular de nuestro proyecto de Extensión del Liceo Francés de Madrid, resultado de un concurso internacional que ganamos en 2018… Creemos que nuestra caja-biblioteca, de hormigón visto por fuera y llena de luz blanquísima por dentro, será no sólo muy útil sino también muy hermosa”. Una declaración que resume la esencia de esta obra, capaz de combinar rigor arquitectónico, utilidad y belleza en un gesto arquitectónico preciso y contundente.






























































