Ubicado en una tranquila esquina detrás de un distrito escolar, el Apartamento n.º 1 da a un parque y se conecta lateralmente con estrechos callejones. Las condiciones del terreno son atractivas: espacios verdes abiertos al frente y casas adosadas a ambos lados, lo que ofrece una trama urbana íntima y definida.
Mediante la secuencia espacial de la llegada a casa y la disposición de balcones compartidos, el proyecto busca crear un estilo de vida de barrio dentro de un contexto urbano compacto.

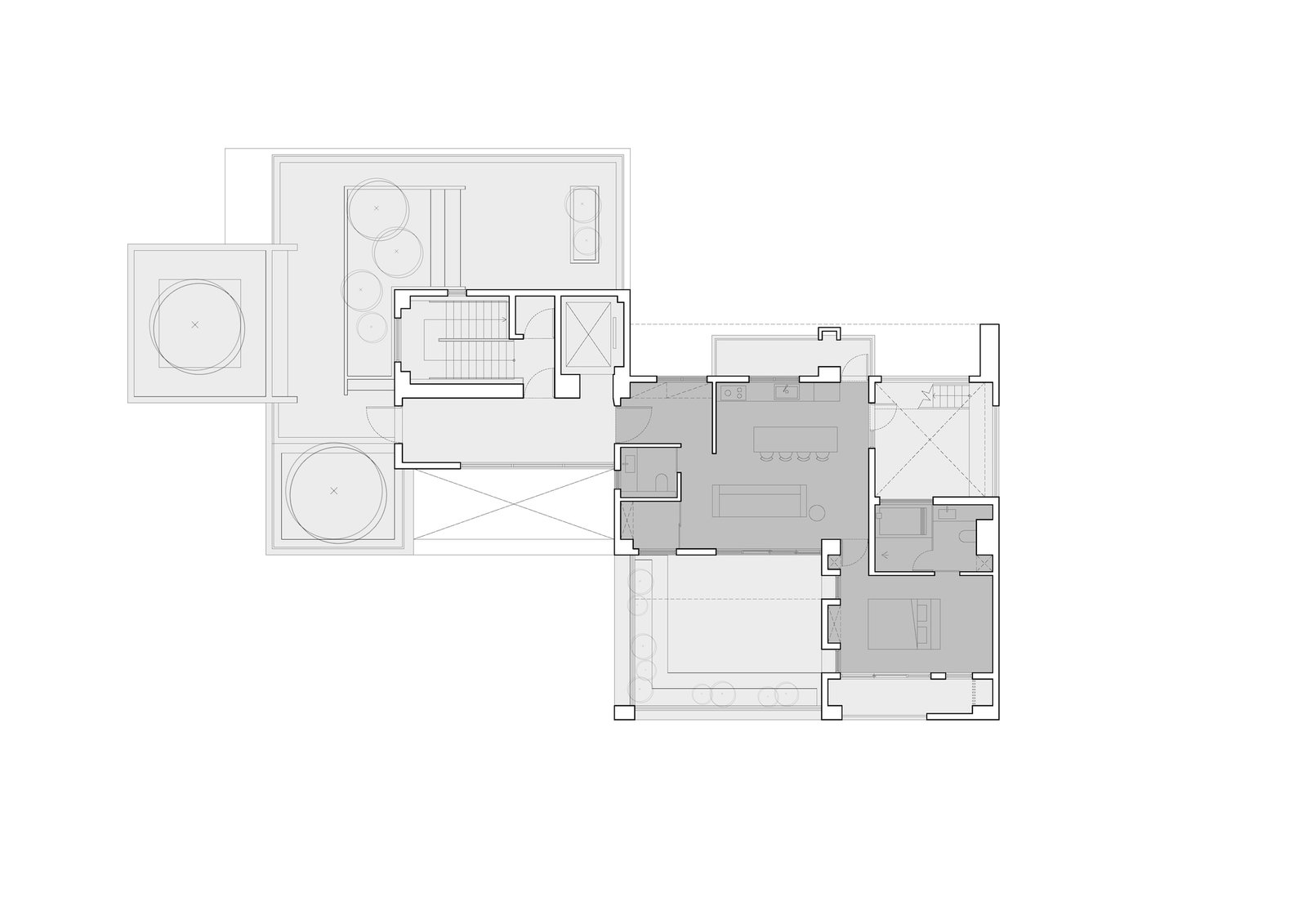
El edificio consta de un sótano y seis plantas sobre rasante, compuesto por dos volúmenes, un tipo de uso mixto típico de las ciudades del sur de Taiwán. Las unidades frontales son locales comerciales de dos plantas con vistas a la calle y al parque, mientras que la entrada residencial se encuentra en la parte trasera, a lo largo de un callejón lateral más tranquilo, lo que permite separar las zonas comerciales de las residenciales.




Los residentes acceden desde el callejón a un vestíbulo ajardinado en la planta baja. Desde allí, ascienden por un núcleo de circulación vertical (una escalera y un ascensor rodeados de vegetación y orientados al parque) para llegar a la tercera planta y superiores, donde se ubican las unidades residenciales.
Para maximizar la eficiencia en el compacto terreno, el sótano cuenta con una rampa inclinada para el estacionamiento. A nivel del suelo, la masa edificada se extiende completamente hasta la calle, a la vez que se retrae ligeramente del límite trasero de la propiedad para crear distancia con los edificios adyacentes. En la planta superior, las dos alas residenciales se escalonan verticalmente. Este sutil desnivel introduce cierta separación entre las unidades, permitiendo tanto la privacidad como un diálogo espacial fluido entre los vecinos.

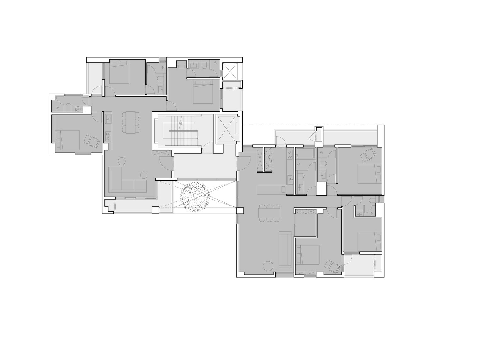
El diseño distingue dos niveles de «espacio compartido». En el nivel comunitario, el primero comienza con el callejón verde que conduce al vestíbulo, ofreciendo una entrada suave y acogedora. En el nivel residencial, las escaleras compartidas, los balcones y las zonas verdes intermedias sirven como extensiones verticales de la vida vecinal.
Se plantan árboles en los espacios entre las unidades residenciales pareadas, creando una barrera natural. Estos espacios intermedios permiten que los balcones y las salas de estar y comedor se abran hacia la escalera y entre sí, estableciendo un diálogo entre el hogar y la comunidad, tanto horizontal como vertical, tanto público como privado.

Del tercer al sexto piso, cada unidad presenta una configuración única, en lugar de basarse en una distribución estandarizada. La escalera compartida se encuentra en el centro, mientras que las habitaciones privadas se ubican en ambos extremos, con vistas a la calle o al callejón trasero, lo que permite que cada vivienda se integre con su entorno urbano de una forma ligeramente diferente.
Este diseño surge de los recuerdos de la vida en una ciudad pequeña: calles modestas y patios ajardinados, una vida urbana marcada por la rutina y la proximidad. La ciudad de Chiayi , aunque no es grande, tiene una escala de barrio distintiva. En mi infancia, el camino a casa nunca terminaba en la calle principal. Continuaba a través de callejones, pasando cercas, plantas y jardines vecinos.

La arquitectura residencial refleja cómo viven las personas en sus ciudades. Un edificio de apartamentos, como forma de vivienda colectiva, debe traducir los hábitos de vida individuales en sistemas espaciales compartidos. En este proyecto, los recuerdos de la vida unifamiliar —de jardines, callejones y umbrales estratificados— se convierten en el punto de partida para el diseño de apartamentos.

























































