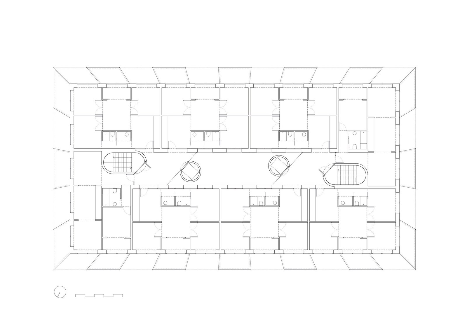
Ubicado en Sant Feliu de Llobregat, el proyecto de viviendas de cinco plantas desarrolla varias estrategias sociales que tienen como objetivo mejorar la conectividad urbana, la equidad social y la sostenibilidad. Albergará 40 viviendas sociales compuestas por espacios genéricos, no jerárquicos, flexibles y adaptables a los cambios en las necesidades vitales de sus habitantes.
Los apartamentos están contenidos en un paralelepípedo compacto y ortogonal y organizados alrededor de un patio que regula pasivamente la temperatura interior y la ventilación reduciendo consumos y dependencias económicas.

El solar, ubicado en un barrio de extrarradio, tiene una superficie rectangular de 923,34 m² delimitado al noreste con naves industriales, al noroeste con la calle Anselm Clavé y al sureste y suroeste con espacios verdes y zonas comunes de un edificio de apartamentos vecino.
La planta baja define un pasaje interior que comunica la calle y el parque proporcionando conectividad e integración entre las dos áreas urbanas al mismo tiempo que divide el espacio en dos espacios cerrados para uso comercial y público. Su forma sigue la naturaleza de su entorno para una mejor integración y sus acabados de base dura facilitan la accesibilidad y el mantenimiento.




A su vez, las fachadas están definidas por balcones que ocupan la superficie máxima permitida por la normativa local, que limita su presencia al 50% de la fachada. Siguiendo estrictamente una forma de abanico, el proyecto extiende la superficie exterior de los apartamentos al máximo permitido, definiendo grandes espacios exteriores.
Se ha dado prioridad a la construcción en seco, la industrialización y el premontaje. La sencillez y la repetición permitieron reducir costes. Los materiales son económicos y al mismo tiempo duraderos y rápidos de ejecutar.

El edificio ha sido diseñado respondiendo a los retos de sostenibilidad y para reducir costes y consumo. Todos los apartamentos disponen de ventilación cruzada, y todas las estancias son exteriores, dando a fachada o patio.
En invierno, el patio central capta el calor mediante el efecto invernadero y en verano ayuda a regular la temperatura gracias al efecto chimenea natural.

El sistema constructivo de fachada incorpora aislamiento continuo que elimina posibles puentes térmicos. La fachada incorpora además una estructura ligera que permite instalar el sistema de protección solar.
Otra estrategia climática ha sido el uso de aerotermia con paneles fotovoltaicos para la climatización, un sistema sostenible, de alta eficiencia y bajo mantenimiento, que minimiza el consumo.































