Innovación estructural y habitar mediterráneo.
Este bloque de viviendas con protección oficial busca consolidar una esquina de la ciudad y ofrecer una vivencia de calidad a sus habitantes.
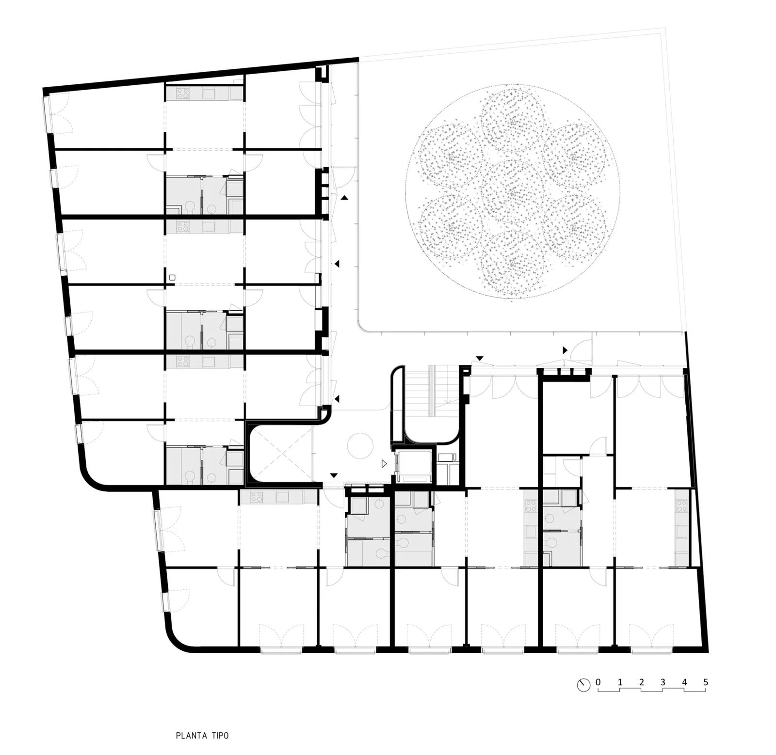
El edificio articula el cruce entre una avenida de nuevo trazado y una calle de edificaciones de baja altura, reforzando la transición entre ambas gracias a una composición en dos volúmenes unidos por una geometría curvilínea.

El conjunto, de aspecto neutro, se integra en el contexto y deja a su vez entrever la singularidad de su interior: unos espacios comunitarios que se abren orgánicamente a un jardín entorno al cual se ordenan las 22 viviendas gracias al sistema de pasarelas al aire libre.






De base modular, diáfanas y luminosas gracias a la doble orientación y con la cocina como centro de la vida doméstica, estas viviendas propician un modo de habitar mediterráneo. La posibilidad de graduar la luz y el grado de relación interior-exterior mediante elementos tradicionales como la persiana alicantina en la fachada de calle y de otros más contemporáneos como membranas microperforadas en la fachada a jardín, ofrecen diversos matices a lo largo del día.

Además de una apuesta tipológica que potencia la convivencia comunitaria, el proyecto destaca por alta prefabricabilidad gracias a la innovadora implementación de un sistema estructural de prefabricados de hormigón pretensado para luces de 12 metros, que además de las ventajas de ejecución propias de la prefabricación, ofrece una gran flexibilidad de distribución.









































